Purplebricks says ..
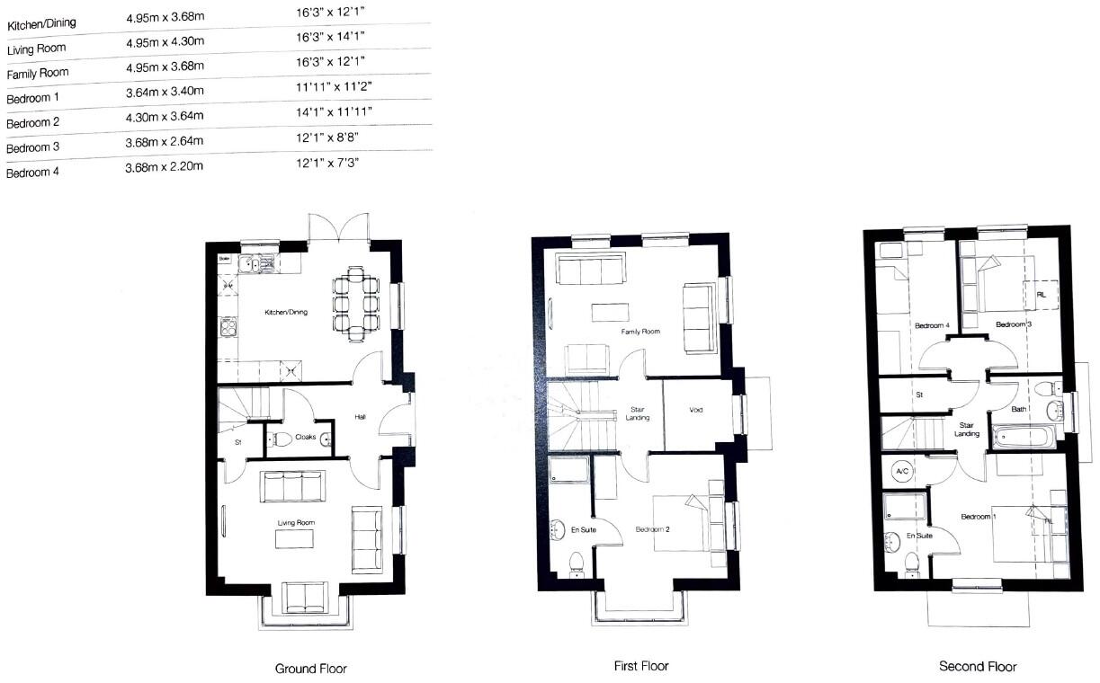
* A SUPERB, LARGE AND VERSATILE FAMILY HOME LOCATED JUST A 10 MINUTE WALK FROM RUGBY MAINLINE RAIL STATION - AN EASY COMMUTE TO LONDON OR BIRMINGHAM * Benefits include 4/5 bedrooms, a large and high specification fitted kitchen/dining room, main and guest bedrooms with en-suite shower rooms, gr...
Property Oracle says ..
This five-bedroom, three-bathroom property in Rugby, Warwickshire, is presented in good condition based on the available photographs. The interior appears modern and well-maintained, with a spacious layout. The property benefits from a convenient location near Rugby train station and several well-regarded schools, making it potentially attractive to families. The inclusion of a garden, although seemingly modest in size, adds to its appeal. The list price appears reasonable in relation to other properties in the area, although a lack of detailed comparable data prevents a definitive assessment of its value. Further information on local amenities and precise comparable property details would enhance the overall assessment. The property’s size and features suggest it could be suitable for a family or those seeking a larger home with good transport links and access to local schools. The absence of plot size data is a notable omission. Potential buyers should conduct thorough research into local council tax bands, utility costs, and any potential planning restrictions before making an offer.
Therefore, we give this property 6 / 10. *Disclaimer: This is our option and does constitute a recommendation or financial advice. Do your own research. *
- Price
- 7
- Condition
- 8
- Location
- 7
- Land
- 4
- Bedrooms
- 5
- Bathrooms
- 3
- Sqft (est)
- 1,374.23
The heatmap indicates the level of crime in the area. The color of the heatmap indicates the crime severity and recency.
Metrics Year-on-Year
- Average area value
- 226,238.00 £Decreased by 7.63 %
- Est sale value
- 283,091.38 £Decreased by 39.41 %
- Average area rental value
- 2,550.00 £/moIncreased by 137.43 %
- Est letting value
- 2,748.46 £/moIncreased by 100.00 %
- Est rental Yield
- 13.53 %Increased by 157.22 %
- Crime Rate
- 1.00 %Unchanged by 0.00 %
Agent Activity
Purplebricks created the listing.
Nearby Schools
| Name | Type | Ofsted | Distance |
|---|---|---|---|
| Claremont Children'S Centre (Formerly Rugby Parents Centre) | Children's Centre | 0.74 KM | |
| Northlands Primary School | Community School | Good | 0.85 KM |
| St Andrew'S Benn Cofe (Voluntary Aided) Primary School | Voluntary Aided School | Good | 0.93 KM |
| Boughton Leigh Junior School | Community School | Good | 1.10 KM |
| Boughton Leigh Infant School | Community School | Good | 1.10 KM |
Images
Nearby Streets
| Name | Average Price | Average Sqft | Distance |
|---|---|---|---|
| Parsons Close | £ 0 | 0 | 0.00 KM |
| Barter Place | £ 0 | 0 | 0.00 KM |
| Gavel Drive | £ 0 | 0 | 0.00 KM |
| Craven Road | £ 200,000 | 0 | 0.00 KM |
| Hughes Close | £ 350,000 | 0 | 0.00 KM |
Nearby Transport
| Name | NLC | TLC | Distance |
|---|---|---|---|
| Rugby | 1087 | RUG | 0.34 KM |
Nearby Listings
| Address | Price | Type | Score | Distance |
|---|---|---|---|---|
| Edison Drive, Rugby, CV21 | £ 425,000 | BUY | 6 / 10 | 0.00 KM |
| Edison Drive, Rugby | £ 180,000 | BUY | 7 / 10 | 0.03 KM |
| Edison Drive, Rugby, CV21 | £ 315,000 | BUY | 7 / 10 | 0.07 KM |
| Edison Drive, Rugby, CV21 | £ 300,000 | BUY | 7 / 10 | 0.17 KM |
| Edison Drive, RUGBY | £ 300,000 | BUY | Unknown | 0.18 KM |
Nearby Properties
| Address | Price | Distance |
|---|---|---|
| 26 Edison Drive | £ 174,000 | 0.05 KM |
| 22 Edison Drive | £ 333,000 | 0.05 KM |
| 12 Laing Close | £ 300,000 | 0.07 KM |
| 38 Edison Drive | £ 321,000 | 0.07 KM |
| 5 Parsons Close | £ 225,995 | 0.08 KM |