Bishops Hill, Ipswich, IP3 8EW
By Cornerstone Residential
£ 425,000
Reviews
3 out of 5 stars
Cornerstone Residential says ..
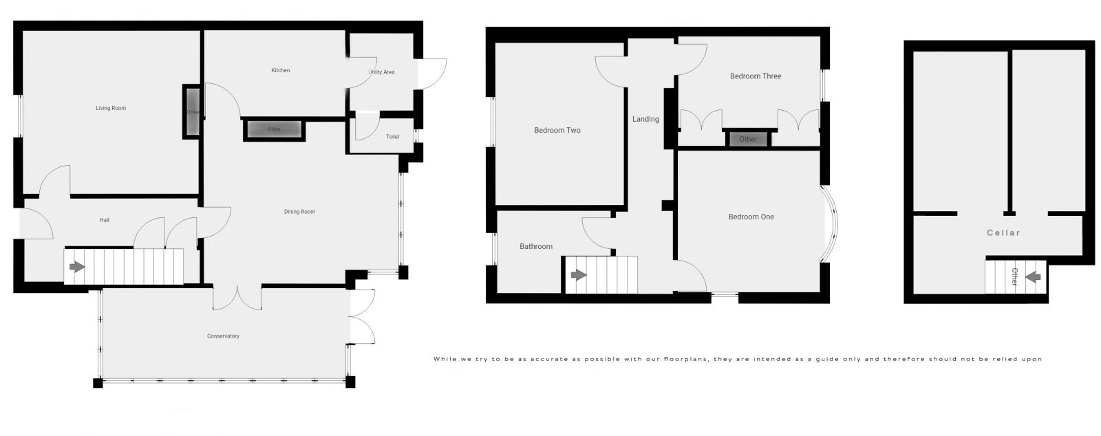
A beautifully presented Victorian semi-detached cottage of considerable charm and character on the eastern side of Ipswich within easy reach of the town centre and the superb riverside hub. The spacious accommodation comprises an entrance hall, two reception rooms, conservatory, kitchen, utilit...
Property Oracle says ..
This three-bedroom property in Bishops Hill, Ipswich, presents a blend of character and potential. The interior features period details, including wood flooring and fireplaces, giving it a charming atmosphere. The rooms appear spacious and well-lit. The kitchen is traditional in style with wooden cabinets; the bathroom is clean and functional. The property benefits from a garden, adding to its appeal. However, a more detailed description of the plot size would be beneficial for a complete assessment. The listing price is notable, given the limited comparative data; however, this might reflect the character and charm of the property. It is a suitable home for those looking for a property with character within reasonable distance of local schools and transport. Prospective buyers should consider that some modernisation may be desirable to bring the property fully up to date.
Therefore, we give this property 6 / 10. *Disclaimer: This is our option and does constitute a recommendation or financial advice. Do your own research. *
- Price
- 7
- Condition
- 7
- Location
- 7
- Land
- 6
- Bedrooms
- 3
- Bathrooms
- 1
- Sqft (est)
- 1,320.17
The heatmap indicates the level of crime in the area. The color of the heatmap indicates the crime severity and recency.
Metrics Year-on-Year
- Average area value
- 234,999.00 £Increased by 17.66 %
- Est sale value
- 332,682.84 £Increased by 7.69 %
- Average area rental value
- 1,012.00 £/moDecreased by 0.49 %
- Est letting value
- 1,320.17 £/moUnchanged by 0.00 %
- Est rental Yield
- 5.17 %Decreased by 15.38 %
- Crime Rate
- 3.00 %Unchanged by 0.00 %
Agent Activity
Cornerstone Residential created the listing.
Nearby Schools
| Name | Type | Ofsted | Distance |
|---|---|---|---|
| Cliff Lane Primary School | Academy Converter | Requires improvement | 0.67 KM |
| Clifford Road Primary School & Nursery | Community School | Good | 0.80 KM |
| Suffolk New College | Further Education | Requires improvement | 0.82 KM |
| University Of Suffolk | Higher Education Institutions | Requires improvement | 0.83 KM |
| St Helen'S Primary School | Academy Converter | Good | 1.00 KM |
Images
Nearby Streets
| Name | Average Price | Average Sqft | Distance |
|---|---|---|---|
| Gladstone Road | £ 190,000 | 0 | 0.00 KM |
| Nursery Gardens | £ 235,000 | 0 | 0.00 KM |
| St. Helens Street | £ 0 | 0 | 0.00 KM |
| Lee Road | £ 495,000 | 0 | 0.00 KM |
| Warwick Road | £ 240,000 | 0 | 0.00 KM |
Nearby Transport
| Name | NLC | TLC | Distance |
|---|---|---|---|
| Derby Road (Ipswich) | 7212 | DBR | 1.33 KM |
| Ipswich | 7217 | IPS | 2.89 KM |
| Westerfield | 7226 | WFI | 3.47 KM |
Nearby Listings
| Address | Price | Type | Score | Distance |
|---|---|---|---|---|
| Bishops Hill, Ipswich, IP3 8EW | £ 425,000 | BUY | 6 / 10 | 0.00 KM |
| Myrtle Road, Ipswich, Suffolk, UK, IP3 | £ 179,995 | BUY | 5 / 10 | 0.06 KM |
| Mitre Way, Ipswich, IP3 | £ 225,000 | BUY | 6 / 10 | 0.07 KM |
| Bishops Hill, Ipswich, IP3 | £ 280,000 | BUY | 6 / 10 | 0.07 KM |
| Myrtle Road, Ipswich | £ 175,000 | BUY | 5 / 10 | 0.17 KM |
Nearby Properties
| Address | Price | Distance |
|---|---|---|
| 4 Mitre Way | £ 185,000 | 0.05 KM |
| 23 Mitre Way | £ 200,000 | 0.05 KM |
| 14 Mitre Way | £ 111,000 | 0.05 KM |
| 20 Mitre Way | £ 215,000 | 0.05 KM |
| 18 Mitre Way | £ 104,000 | 0.05 KM |