EV
Amport Park Mews, Furzedown Lane, Amport, Andover, Hampshire, SP11
By Evans & Partridge
£ 395,000
Reviews
3 out of 5 stars
Evans & Partridge says ..
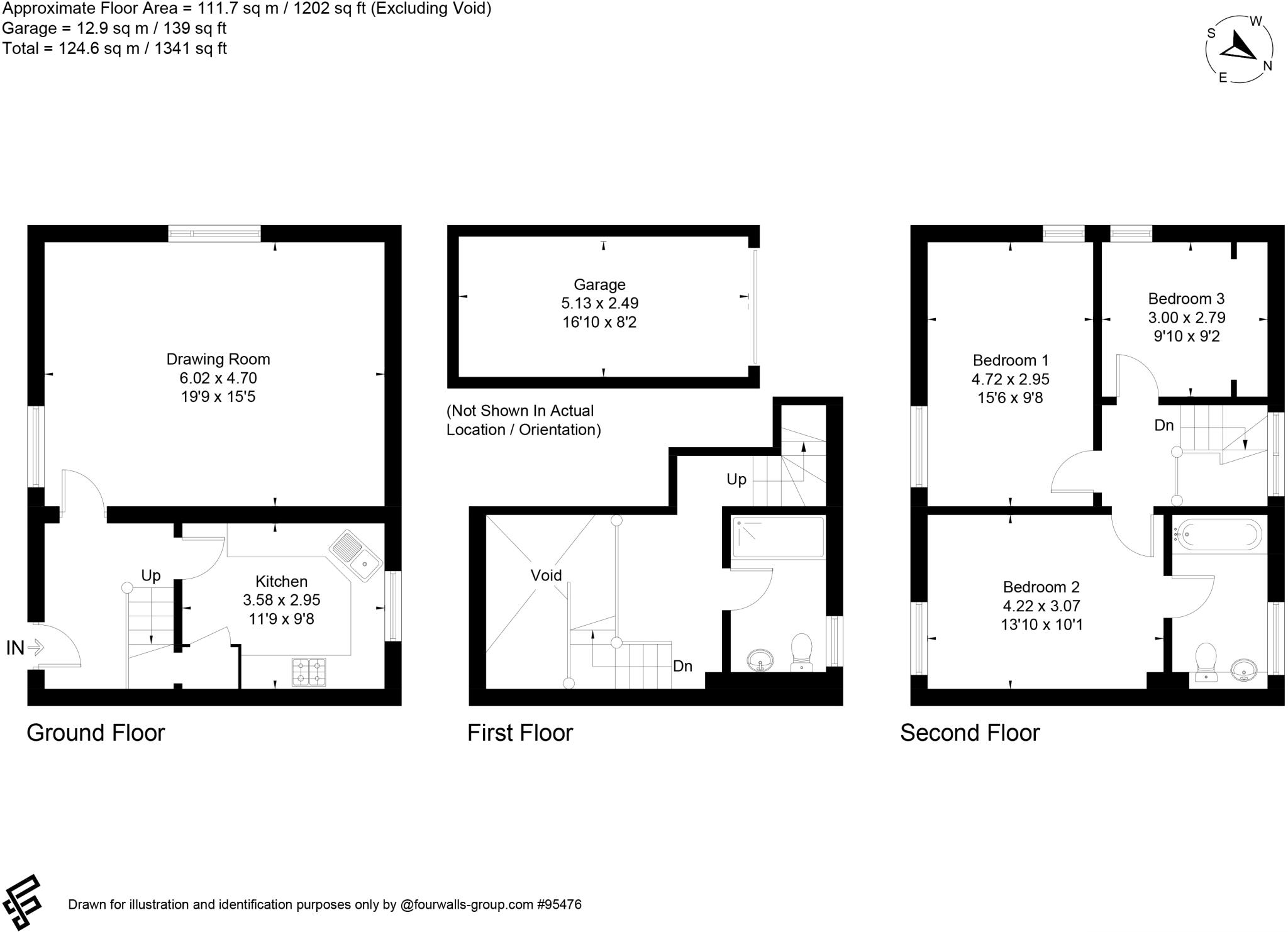
Located within a Grade II Listed courtyard formerly serving as stables for Amport House, this mews-style end-of-terrace house features high ceilings, a dual-aspect reception room, three bedrooms including one with an en suite, a shower room, and benefits from a private parking space and garage.
Property Oracle says ..
Therefore, we give this property 6 / 10. *Disclaimer: This is our option and does constitute a recommendation or financial advice. Do your own research. *
- Price
- 8
- Condition
- 6
- Location
- 7
- Land
- 5
- Bedrooms
- 3
- Bathrooms
- 2
- Sqft (est)
- 937.02
The heatmap indicates the level of crime in the area. The color of the heatmap indicates the crime severity and recency.
Metrics Year-on-Year
- Average area value
- 782,499.00 £Increased by 26.53 %
- Est sale value
- 371,059.92 £Increased by 7.32 %
- Average area rental value
- 2,151.00 £/moDecreased by 39.05 %
- Est letting value
- 937.02 £/moDecreased by 50.00 %
- Est rental Yield
- 3.30 %Decreased by 51.82 %
- Crime Rate
- 6.00 %Unchanged by 0.00 %
from 618,413.00 £
from 345,760.38 £
from 3,529.00 £/mo
from 1,874.04 £/mo
from 6.85 %
from 6.00 %
Agent Activity
Evans & Partridge created the listing.
Nearby Schools
| Name | Type | Ofsted | Distance |
|---|---|---|---|
| Amport Church Of England Primary School | Voluntary Aided School | Good | 0.77 KM |
| Kimpton, Thruxton And Fyfield Church Of England Primary School | Voluntary Aided School | Good | 2.74 KM |
| Grateley Primary School | Community School | Good | 3.98 KM |
| Grateley House School | Other Independent Special School | Inadequate | 4.04 KM |
| Abbotts Ann Church Of England Primary School | Voluntary Controlled School | Good | 5.13 KM |
Images
Nearby Streets
| Name | Average Price | Average Sqft | Distance |
|---|---|---|---|
| Furzedown Lane (Track) | £ 0 | 0 | 0.00 KM |
| Roman Road | £ 0 | 0 | 0.00 KM |
| Haydown Farm Access | £ 0 | 0 | 0.00 KM |
| Beech Close | £ 475,000 | 0 | 0.00 KM |
| A303 | £ 0 | 0 | 0.00 KM |
Nearby Transport
| Name | NLC | TLC | Distance |
|---|---|---|---|
| Grateley | 5514 | GRT | 5.82 KM |
| Andover | 5510 | ADV | 9.32 KM |
Nearby Listings
| Address | Price | Type | Score | Distance |
|---|---|---|---|---|
| Amport Park Mews, Furzedown Lane, Amport, Andover, Hampshire, SP11 | £ 395,000 | BUY | 6 / 10 | 0.00 KM |
| Amport, Andover, Hampshire, SP11 | £ 1,500,000 | BUY | 7 / 10 | 0.20 KM |
| East Cholderton, Andover, Hampshire | £ 1,500,000 | BUY | Unknown | 0.90 KM |
| Long Barn, Amport, SP11 8JB | £ 1,250,000 | BUY | 7 / 10 | 1.12 KM |
| East Cholderton, Andover, Hampshire, SP11 | £ 795,000 | BUY | 7 / 10 | 1.22 KM |
Nearby Properties
| Address | Price | Distance |
|---|---|---|
| Park House | £ 910,000 | 0.18 KM |
| Sandleford House | £ 945,000 | 0.18 KM |
| 1 Woodside Cottages | £ 475,000 | 0.73 KM |
| Victoria Cottage | £ 375,000 | 0.91 KM |
| 39 The Green | £ 337,500 | 0.91 KM |