Morris and Bott says ..
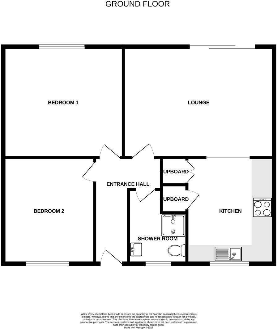
Nestled along the quiet and tucked-away Brennacott Road in Bideford, this charming two-bedroom terraced bungalow offers the perfect blend of comfort, and modern living. Step inside to discover a beautifully finished interior that immediately feels warm and inviting. The spacious living areas crea...
Property Oracle says ..
This two-bedroom terraced bungalow on Brennacott Road in Bideford offers a blend of modern interior living with an exterior that presents an opportunity for improvement. The interior has been updated, featuring a contemporary kitchen and bathroom. While the garden needs attention, it provides valuable outdoor space. The property’s location in Bideford South offers convenient access to local amenities and schools, making it a potentially attractive option for first-time buyers, small families, or those looking to downsize. The price appears to be fair, considering the property’s condition, size, and location within the Bideford market. The property is located in a residential area, with a mix of property types and values. The nearest school, Bideford College, is less than a kilometer away, but its Ofsted rating requires improvement. Other schools are slightly further away, but still accessible. The property includes a garden, which is a desirable feature. While the garden requires some work, it offers outdoor space for recreation and relaxation.
Therefore, we give this property 6 / 10. *Disclaimer: This is our option and does constitute a recommendation or financial advice. Do your own research. *
- Price
- 8
- Condition
- 7
- Location
- 6
- Land
- 6
- Bedrooms
- 2
- Bathrooms
- 1
- Sqft (est)
- 510.00
The heatmap indicates the level of crime in the area. The color of the heatmap indicates the crime severity and recency.
Metrics Year-on-Year
- Average area value
- 320,749.00 £Increased by 14.47 %
- Est sale value
- 212,670.00 £Increased by 43.30 %
- Average area rental value
- 825.00 £/moIncreased by 40.78 %
- Est letting value
- 510.00 £/mo
- Est rental Yield
- 3.09 %Increased by 23.11 %
- Crime Rate
- 37.00 %Unchanged by 0.00 %
Agent Activity
Morris and Bott created the listing.
Nearby Schools
| Name | Type | Ofsted | Distance |
|---|---|---|---|
| Bideford College | Academy Sponsor Led | Requires improvement | 0.84 KM |
| Kingsley School | Other Independent School | 1.32 KM | |
| West Croft School | Community School | Requires improvement | 1.48 KM |
| St Helen'S Church Of England School | Academy Converter | 2.45 KM | |
| St Mary'S Church Of England Primary School | Voluntary Controlled School | Good | 2.66 KM |
Images
Nearby Streets
| Name | Average Price | Average Sqft | Distance |
|---|---|---|---|
| Grenville Estate Crescent | £ 195,000 | 0 | 0.00 KM |
| Ash Plants Close | £ 350,000 | 0 | 0.00 KM |
| Ferndown Close | £ 285,000 | 0 | 0.00 KM |
| Quarry Close | £ 304,438 | 0 | 0.00 KM |
| High View | £ 0 | 0 | 0.00 KM |
Nearby Listings
| Address | Price | Type | Score | Distance |
|---|---|---|---|---|
| Brennacott Road, Bideford | £ 249,950 | BUY | 7 / 10 | 0.00 KM |
| Brennacott Road, Bideford | £ 229,950 | BUY | 6 / 10 | 0.00 KM |
| Brennacott Road, Bideford | £ 195,000 | BUY | 5 / 10 | 0.06 KM |
| Bideford, Devon | £ 12,000 | BUY | Unknown | 0.07 KM |
| Pridham Place, Bideford, Devon, EX39 | £ 275,000 | BUY | 8 / 10 | 0.08 KM |
Nearby Properties
| Address | Price | Distance |
|---|---|---|
| 17 Brennacott Road | £ 129,000 | 0.02 KM |
| 26 Brennacott Road | £ 129,000 | 0.02 KM |
| 23 Brennacott Road | £ 138,000 | 0.02 KM |
| 9 Brennacott Road | £ 126,000 | 0.02 KM |
| 14 Brennacott Road | £ 250,000 | 0.02 KM |