Pedder says ..
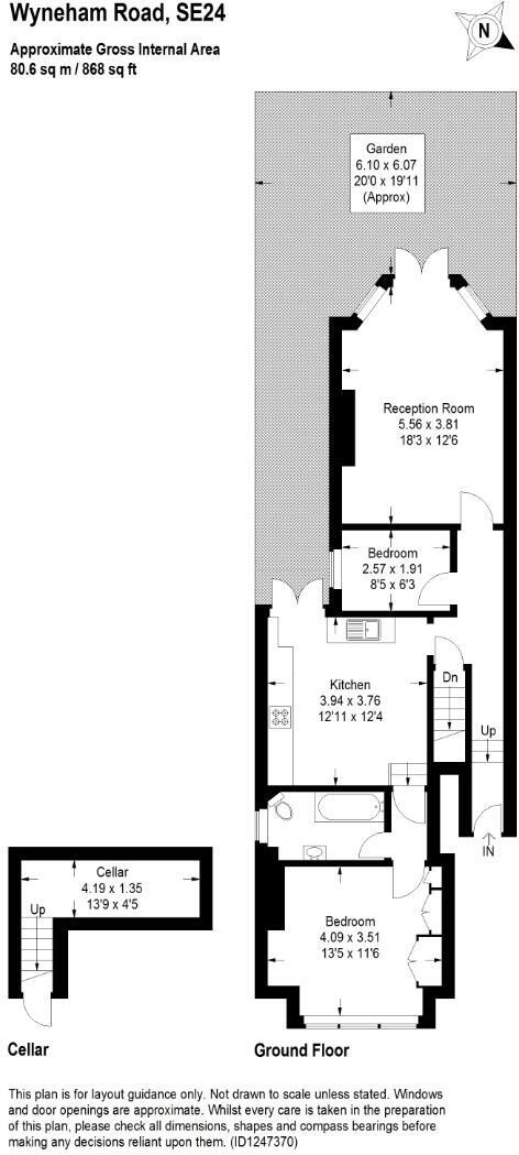
A wonderful opportunity to acquire a lovely two bedroom garden flat nestled within the 'North Dulwich Triangle' area of Herne Hill. Situated in a quiet, tree-lined road, the property is in close proximity to the amenities of Sunray Gardens. The property is offered to the market Chain Fre...
Property Oracle says ..
This is a 2-bedroom apartment located on Wyneham Road in Herne Hill, Southwark. The property benefits from a modern kitchen and bathroom, and it also has a garden. The location is desirable, with good access to schools and transportation. The price seems reasonable compared to other properties in the area.
Therefore, we give this property 7 / 10. *Disclaimer: This is our option and does constitute a recommendation or financial advice. Do your own research. *
- Price
- 7
- Condition
- 7
- Location
- 8
- Land
- 6
- Bedrooms
- 2
- Bathrooms
- 1
- Sqft (est)
- 1,053.68
The heatmap indicates the level of crime in the area. The color of the heatmap indicates the crime severity and recency.
Metrics Year-on-Year
- Average area value
- 1,158,333.00 £Decreased by 5.42 %
- Est sale value
- 1,022,069.60 £Increased by 15.48 %
- Average area rental value
- 2,794.00 £/moDecreased by 10.39 %
- Est letting value
- 2,107.36 £/moUnchanged by 0.00 %
- Est rental Yield
- 2.89 %Decreased by 5.25 %
- Crime Rate
- 2.00 %Unchanged by 0.00 %
Agent Activity
Pedder created the listing.
Nearby Schools
| Name | Type | Ofsted | Distance |
|---|---|---|---|
| Judith Kerr Primary School | Free Schools | Good | 0.22 KM |
| The Charter School North Dulwich | Academy Converter | 0.41 KM | |
| Herne Hill School | Other Independent School | 0.68 KM | |
| Bessemer Grange Primary School & Children'S Centre | Children's Centre | 0.70 KM | |
| Dulwich Village Church Of England Infants' School | Voluntary Aided School | Outstanding | 0.73 KM |
Images
Nearby Streets
| Name | Average Price | Average Sqft | Distance |
|---|---|---|---|
| Red Post Hill | £ 0 | 0 | 0.00 KM |
| Deepdene Road | £ 0 | 0 | 0.00 KM |
| Half Moon Lane | £ 0 | 0 | 0.00 KM |
| Croxted Close | £ 0 | 0 | 0.00 KM |
| Ruskin Park House | £ 0 | 0 | 0.00 KM |
Nearby Transport
| Name | NLC | TLC | Distance |
|---|---|---|---|
| North Dulwich | 5429 | NDL | 0.54 KM |
| Herne Hill | 5066 | HNH | 1.07 KM |
| Denmark Hill | 5421 | DMK | 1.52 KM |
| East Dulwich | 5358 | EDW | 1.53 KM |
| West Dulwich | 5086 | WDU | 1.60 KM |
Nearby Listings
| Address | Price | Type | Score | Distance |
|---|---|---|---|---|
| Wyneham Road, Herne Hill, SE24 | £ 750,000 | BUY | 7 / 10 | 0.00 KM |
| Wyneham Road, Herne Hill, London, SE24 | £ 950,000 | BUY | 8 / 10 | 0.01 KM |
| Elmwood Road, London, SE24 | £ 420,000 | BUY | 6 / 10 | 0.05 KM |
| Elmwood Road, London, SE24 | £ 1,750,000 | BUY | 6 / 10 | 0.07 KM |
| Elmwood Road, London, SE24 | £ 795,000 | BUY | 7 / 10 | 0.07 KM |
Nearby Properties
| Address | Price | Distance |
|---|---|---|
| 7 Wyneham Road | £ 675,000 | 0.02 KM |
| 14b Wyneham Road | £ 785,000 | 0.02 KM |
| 17b Wyneham Road | £ 985,000 | 0.02 KM |
| 8 Wyneham Road | £ 1,373,150 | 0.02 KM |
| 13b Wyneham Road | £ 995,000 | 0.02 KM |