Quarry Lane, Thingwall, Wirral, CH61
BR

Quarry Lane, Thingwall, Wirral, CH61

By Bradshaw Farnham & Lea

£ 725,000

Reviews

3 out of 5 stars

Bradshaw Farnham & Lea says ..

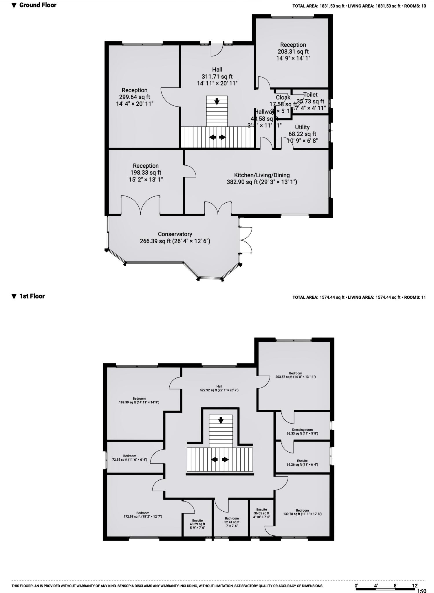
A rare opportunity to own a truly stunning family residence in a highly sought-after location. Set on a quiet road in the heart of Thingwall, this gorgeous and thoughtfully designed five-bedroom detached home offers exceptional space, style and privacy. With a gated driveway, double garage and ge...

Property Oracle says ..

This is a large detached property in good condition, located in a desirable area of Wirral. The house boasts five bedrooms and four bathrooms, making it suitable for a large family. The modern kitchen, well-maintained garden, and overall good condition of the property are attractive features. While the price is higher than some nearby listings, the property offers significantly more space at a lower price per square foot than the local average. The proximity to a well-rated primary school is a bonus for families with young children. The distance to the nearest train stations might be a drawback for some, but overall, this property presents a solid opportunity for prospective buyers looking for a spacious family home in a good location.

Therefore, we give this property 7 / 10. *Disclaimer: This is our option and does constitute a recommendation or financial advice. Do your own research. *

Price
6
Condition
8
Location
7
Land
7
Bedrooms
5
Bathrooms
4
Sqft (est)
3,407.62

The heatmap indicates the level of crime in the area. The color of the heatmap indicates the crime severity and recency.

Metrics Year-on-Year

Average area value
266,111.00 £
Decreased by 9.63 %
from 294,467.00 £
Est sale value
1,114,291.74 £
Increased by 28.74 %
from 865,535.48 £
Average area rental value
1,200.00 £/mo
Increased by 5.91 %
from 1,133.00 £/mo
Est letting value
3,407.62 £/mo
from 0.00 £/mo
Est rental Yield
5.41 %
Increased by 17.10 %
from 4.62 %
Crime Rate
4.00 %
Unchanged by 0.00 %
from 4.00 %

Agent Activity

  • Bradshaw Farnham & Lea created the listing.

Nearby Schools

NameTypeOfstedDistance
Thingwall Primary SchoolCommunity SchoolGood0.36 KM
Stanley SchoolCommunity Special SchoolGood1.49 KM
Pensby Primary SchoolCommunity SchoolGood1.57 KM
Ladymount Catholic Primary SchoolVoluntary Aided SchoolGood1.99 KM
South And West Hub - Pensby Children'S CentreChildren's Centre2.03 KM

Images

Picture No. 01 Picture No. 30 Picture No. 02 Picture No. 16 Picture No. 32 Picture No. 25 Picture No. 26 Picture No. 27 Picture No. 17 Picture No. 18 Picture No. 21 Picture No. 19 Picture No. 20 Picture No. 22 Picture No. 23 Picture No. 24 Picture No. 12 Picture No. 11 Picture No. 10 Picture No. 31 Picture No. 13 Picture No. 09 Picture No. 03 Picture No. 06 Picture No. 08 Picture No. 04 Picture No. 07 Picture No. 05 Picture No. 15 Picture No. 14 Picture No. 28 Picture No. 29

Nearby Streets

NameAverage PriceAverage SqftDistance
Quarry Lane £ 000.00 KM
Sunningdale Drive £ 000.00 KM
Parkway £ 000.00 KM
Woodlands Drive £ 625,00000.00 KM
Dirty Lane £ 000.00 KM

Nearby Transport

NameNLCTLCDistance
Heswall2138HSW3.28 KM
Upton (Merseyside)2141UPT3.73 KM
Leasowe2237LSW6.12 KM
Bidston2136BID6.32 KM
Moreton (Merseyside)2151MRT6.45 KM

Nearby Listings

AddressPriceTypeScoreDistance
Quarry Lane, Thingwall, Wirral, CH61 £ 725,000BUY7 / 100.00 KM
Axholme Road, Thingwall, Wirral, CH61 £ 285,000BUY6 / 100.06 KM
Pensby Road, Thingwall, Wirral £ 475,000BUY7 / 100.12 KM
Regents Close, Wirral, CH61 £ 395,000BUYUnknown0.15 KM
The Foxes, Thingwall, Wirral £ 475,000BUYUnknown0.17 KM

Nearby Properties

AddressPriceDistance
70 Sparks Lane £ 168,8000.01 KM
62 Sparks Lane £ 480,0000.01 KM
52 Sparks Lane £ 78,0000.01 KM
80 Sparks Lane £ 170,0000.01 KM
66 Sparks Lane £ 365,0000.03 KM