Hoopers says ..
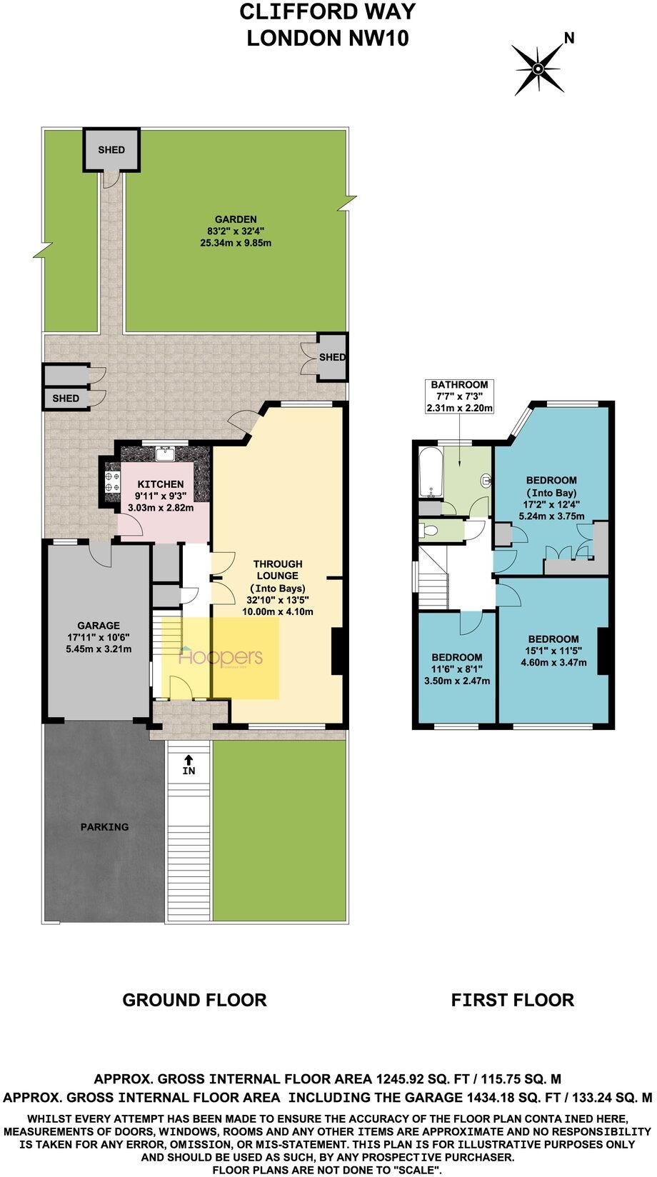
We are delighted to bring to the market this semi-detached house offering larger than average room sizes for the area.The property is situated in a residential street just off Dudden Hill Lane parallel to Dollis Hill Lane and is therefore situated within a few hundred yards of the magni...
Property Oracle says ..
This three-bedroom, one-bathroom property in London’s NW10 postcode offers a blend of advantages and areas for improvement. The house benefits from a convenient location near well-regarded schools and public transport, making it suitable for families. The presence of a garden further enhances its appeal. The interior, however, reflects a more dated aesthetic. While the property appears structurally sound, cosmetic updates such as modernizing the kitchen and bathrooms would significantly enhance its market value and appeal to a wider range of potential buyers. The relatively modest garden adds to the property’s functionality but not significantly to its luxurious appeal. The list price falls within the expected range for properties of a comparable size and location, allowing for negotiation depending on the buyer’s priorities and the seller’s willingness to compromise. Overall, this property presents a solid investment opportunity, especially for buyers willing to undertake minor renovations to update the interior. The scarcity of detailed pricing data for nearby comparable properties somewhat restricts an absolute definitive assessment of its value. However, the provided evidence suggests the list price is reasonably placed within the current market conditions in the surrounding area. More precise comparables may allow for a more fine-tuned valuation.
Therefore, we give this property 6 / 10. *Disclaimer: This is our option and does constitute a recommendation or financial advice. Do your own research. *
- Price
- 7
- Condition
- 6
- Location
- 7
- Land
- 4
- Bedrooms
- 3
- Bathrooms
- 1
- Sqft (est)
- 1,434.18
The heatmap indicates the level of crime in the area. The color of the heatmap indicates the crime severity and recency.
Metrics Year-on-Year
- Average area value
- 601,250.00 £Decreased by 12.11 %
- Est sale value
- 599,487.24 £Decreased by 27.18 %
- Average area rental value
- 2,507.00 £/moIncreased by 10.78 %
- Est letting value
- 1,434.18 £/moUnchanged by 0.00 %
- Est rental Yield
- 5.00 %Increased by 25.94 %
- Crime Rate
- 5.00 %Unchanged by 0.00 %
Agent Activity
Hoopers created the listing.
Nearby Schools
| Name | Type | Ofsted | Distance |
|---|---|---|---|
| Northview Junior And Infant School | Community School | Good | 0.40 KM |
| Braintcroft E-Act Primary Academy | Academy Sponsor Led | 0.68 KM | |
| E-Act Crest Academy | Academy Sponsor Led | Good | 0.70 KM |
| Menorah High School For Girls | Voluntary Aided School | Good | 0.76 KM |
| Unity Girls High School | Other Independent School | Good | 1.06 KM |
Images
Nearby Streets
| Name | Average Price | Average Sqft | Distance |
|---|---|---|---|
| Prout Grove | £ 570,000 | 0 | 0.00 KM |
| Northview Crescent | £ 0 | 0 | 0.00 KM |
| A4088 | £ 0 | 0 | 0.00 KM |
| Links Road | £ 0 | 0 | 0.00 KM |
| Chartley Avenue | £ 0 | 0 | 0.00 KM |
Nearby Transport
| Name | NLC | TLC | Distance |
|---|---|---|---|
| Hendon | 1522 | HEN | 2.51 KM |
| Harlesden | 1521 | HDN | 2.83 KM |
| Willesden Junction | 1457 | WIJ | 2.89 KM |
| Cricklewood | 1519 | CRI | 3.59 KM |
| Stonebridge Park | 1454 | SBP | 3.75 KM |
Nearby Listings
| Address | Price | Type | Score | Distance |
|---|---|---|---|---|
| Clifford Way, London, NW10 | £ 620,000 | BUY | 6 / 10 | 0.00 KM |
| Clifford Way, London, NW10 | £ 699,950 | BUY | 6 / 10 | 0.00 KM |
| Clifford Way, London, NW10 | £ 725,000 | BUY | 6 / 10 | 0.00 KM |
| Clifford Way, London, NW10 | £ 365,000 | BUY | 6 / 10 | 0.02 KM |
| Clifford Way, Dollis Hill, London, NW10 | £ 700,000 | BUY | 6 / 10 | 0.03 KM |
Nearby Properties
| Address | Price | Distance |
|---|---|---|
| 46a Clifford Way | £ 330,000 | 0.00 KM |
| 42 Clifford Way | £ 370,000 | 0.00 KM |
| 10 Clifford Way | £ 405,000 | 0.00 KM |
| 16 Clifford Way | £ 530,000 | 0.00 KM |
| 54a Clifford Way | £ 330,000 | 0.00 KM |