Iconic says ..
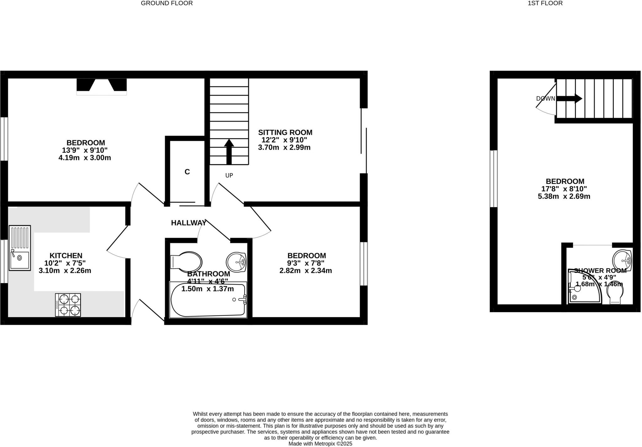
***GUIDE PRICE £240,000 - £250,000***Attractive Three-Bedroom Link-Detached Chalet in HellesdonThis well-presented three-bedroom link-detached chalet is located in the highly sought-after suburb of Hellesdon and enjoys a generous rear garden backing directly onto a park—early viewin...
Property Oracle says ..
This is a detached property located in Hellesdon, Norwich. It features three bedrooms and two bathrooms. The property is situated in a location that offers convenient access to local schools and transportation links. While the property appears to be in generally good condition, some areas could benefit from modernisation. The property includes a garden with a shed, providing outdoor space. Considering the location, condition, and available land, the list price of £240,000 seems reasonable, despite being above the average price per square foot for the area.
Therefore, we give this property 7 / 10. *Disclaimer: This is our option and does constitute a recommendation or financial advice. Do your own research. *
- Price
- 8
- Condition
- 6
- Location
- 7
- Land
- 7
- Bedrooms
- 3
- Bathrooms
- 2
- Sqft (est)
- 240.79
The heatmap indicates the level of crime in the area. The color of the heatmap indicates the crime severity and recency.
Metrics Year-on-Year
- Average area value
- 357,500.00 £Increased by 17.20 %
- Est sale value
- 85,962.03 £Increased by 12.26 %
- Average area rental value
- 1,250.00 £/moIncreased by 11.11 %
- Est letting value
- 240.79 £/moUnchanged by 0.00 %
- Est rental Yield
- 4.20 %Decreased by 5.19 %
- Crime Rate
- 7.00 %Unchanged by 0.00 %
Agent Activity
Iconic created the listing.
Nearby Schools
| Name | Type | Ofsted | Distance |
|---|---|---|---|
| Firside Junior School | Academy Converter | Good | 0.30 KM |
| Heather Avenue Infant School | Academy Converter | 0.62 KM | |
| Kinsale Infant School | Community School | Good | 1.39 KM |
| Kinsale Junior School | Academy Converter | 1.39 KM | |
| Mile Cross Primary School | Community School | Outstanding | 1.59 KM |
Images
Nearby Streets
| Name | Average Price | Average Sqft | Distance |
|---|---|---|---|
| Heath Close | £ 325,000 | 0 | 0.00 KM |
| Holt Road | £ 0 | 0 | 0.00 KM |
| Shrub Lane | £ 290,000 | 0 | 0.00 KM |
| Elder Close | £ 0 | 0 | 0.00 KM |
| Oak Tree Lane | £ 0 | 0 | 0.00 KM |
Nearby Transport
| Name | NLC | TLC | Distance |
|---|---|---|---|
| Norwich | 7309 | NRW | 5.79 KM |
Nearby Listings
| Address | Price | Type | Score | Distance |
|---|---|---|---|---|
| Meadow Way, Hellesdon | £ 240,000 | BUY | 7 / 10 | 0.00 KM |
| Meadow Way, Hellesdon, Norwich, Norfolk, NR6 | £ 325,000 | BUY | 6 / 10 | 0.00 KM |
| Meadow Way, Hellesdon | £ 240,000 | BUY | 7 / 10 | 0.03 KM |
| Meadow Way, Hellesdon | £ 290,000 | BUY | Unknown | 0.08 KM |
| Meadow Way, Norwich | £ 300,000 | BUY | 7 / 10 | 0.09 KM |
Nearby Properties
| Address | Price | Distance |
|---|---|---|
| 103 Meadow Way | £ 200,000 | 0.01 KM |
| 102 Meadow Way | £ 140,000 | 0.01 KM |
| 101 Meadow Way | £ 147,000 | 0.01 KM |
| 62 Meadow Way | £ 185,000 | 0.01 KM |
| 135a Meadow Way | £ 175,000 | 0.01 KM |