Pearsons says ..
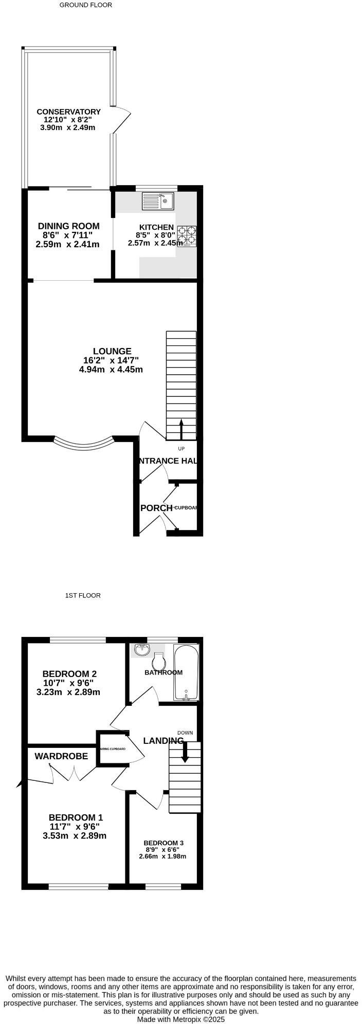
This well presented 3 bedroom home is situated in a quiet location within an easy walk of the local school. The property benefits from UPVC double glazing, gas central heating, a conservatory and garage. An internal viewing is highly recommended.
Property Oracle says ..
This is a well-presented terraced property in Holbury. The house benefits from a modern kitchen and bathroom, and a reasonable sized garden. The property is located in a residential area with good access to local schools and amenities. The price seems fair compared to other properties in the area.
Therefore, we give this property 7 / 10. *Disclaimer: This is our option and does constitute a recommendation or financial advice. Do your own research. *
- Price
- 8
- Condition
- 8
- Location
- 7
- Land
- 7
- Bedrooms
- 3
- Bathrooms
- 1
The heatmap indicates the level of crime in the area. The color of the heatmap indicates the crime severity and recency.
Metrics Year-on-Year
- Average area value
- 471,111.00 £Increased by 12.11 %
- Average area rental value
- 1,283.00 £/moDecreased by 19.91 %
- Est rental Yield
- 3.27 %Decreased by 28.45 %
- Crime Rate
- 11.00 %Unchanged by 0.00 %
Agent Activity
Pearsons created the listing.
Nearby Schools
| Name | Type | Ofsted | Distance |
|---|---|---|---|
| Manor Church Of England Infant School | Voluntary Controlled School | Good | 0.17 KM |
| The New Forest Academy | Academy Sponsor Led | Good | 0.57 KM |
| Cadland And Forest First Children'S Centre | Children's Centre | 0.65 KM | |
| Cadland Primary School | Community School | Good | 0.65 KM |
| Blackfield Primary School | Academy Converter | Good | 2.38 KM |
Images
Nearby Streets
| Name | Average Price | Average Sqft | Distance |
|---|---|---|---|
| Teachers Way | £ 270,000 | 0 | 0.00 KM |
| Harrier Way | £ 0 | 0 | 0.00 KM |
| Hunter Close | £ 400,000 | 0 | 0.00 KM |
| Main Road | £ 399,950 | 0 | 0.00 KM |
| Ashleycross Close | £ 0 | 0 | 0.00 KM |
Nearby Transport
| Name | NLC | TLC | Distance |
|---|---|---|---|
| Netley | 5911 | NTL | 7.16 KM |
| Woolston | 5925 | WLS | 7.57 KM |
| Sholing | 5930 | SHO | 7.71 KM |
| Hamble | 5947 | HME | 8.05 KM |
| Southampton Central | 5932 | SOU | 8.76 KM |
Nearby Listings
| Address | Price | Type | Score | Distance |
|---|---|---|---|---|
| Timberley Close, Holbury | £ 300,000 | BUY | 7 / 10 | 0.00 KM |
| Southbourne Avenue, Holbury, Southampton, Hampshire, SO45 | £ 375,000 | BUY | Unknown | 0.06 KM |
| Southbourne Avenue, SO45 | £ 335,000 | BUY | 6 / 10 | 0.06 KM |
| Southbourne Avenue, Holbury, SO45 | £ 335,000 | BUY | Unknown | 0.08 KM |
| Wedgewood Close, Holbury, Southampton, Hampshire, SO45 | £ 375,000 | BUY | 8 / 10 | 0.10 KM |
Nearby Properties
| Address | Price | Distance |
|---|---|---|
| 84 Southbourne Avenue | £ 166,000 | 0.05 KM |
| 82 Southbourne Avenue | £ 295,950 | 0.05 KM |
| 76 Southbourne Avenue | £ 280,000 | 0.05 KM |
| 52 Southbourne Avenue | £ 216,000 | 0.05 KM |
| 74 Southbourne Avenue | £ 140,000 | 0.05 KM |