Emslie & Tarrant says ..
Enviably situated within the much favoured village of East Dean, affording glorious far reaching panoramic views over surrounding downland towards Belle Tout Lighthouse and the sea - An outstanding 5 bedroom detached house set within good size beautifully established gardens backing onto the Downs.
Property Oracle says ..
This 5-bedroom detached house is situated in the sought-after village of East Dean, East Sussex, offering panoramic views of the South Downs and the sea. The property benefits from a spacious layout and a large garden that backs onto the Downs, which is a significant advantage. The interior, while well-maintained, features dated décor, which could be modernized to increase its market value. Nearby amenities, including schools and transportation links, are within a reasonable distance although car usage would be necessary for day to day travel. The lack of definitive property sizes (plot and house) hinders a detailed comparative market analysis; however, the asking price of £899,950 seems reasonably competitive for the location and views. Prospective buyers should factor in the potential cost of upgrading the interior to reflect current market preferences.
Therefore, we give this property 7 / 10. *Disclaimer: This is our option and does constitute a recommendation or financial advice. Do your own research. *
- Price
- 7
- Condition
- 6
- Location
- 8
- Land
- 7
- Bedrooms
- 5
- Bathrooms
- 1
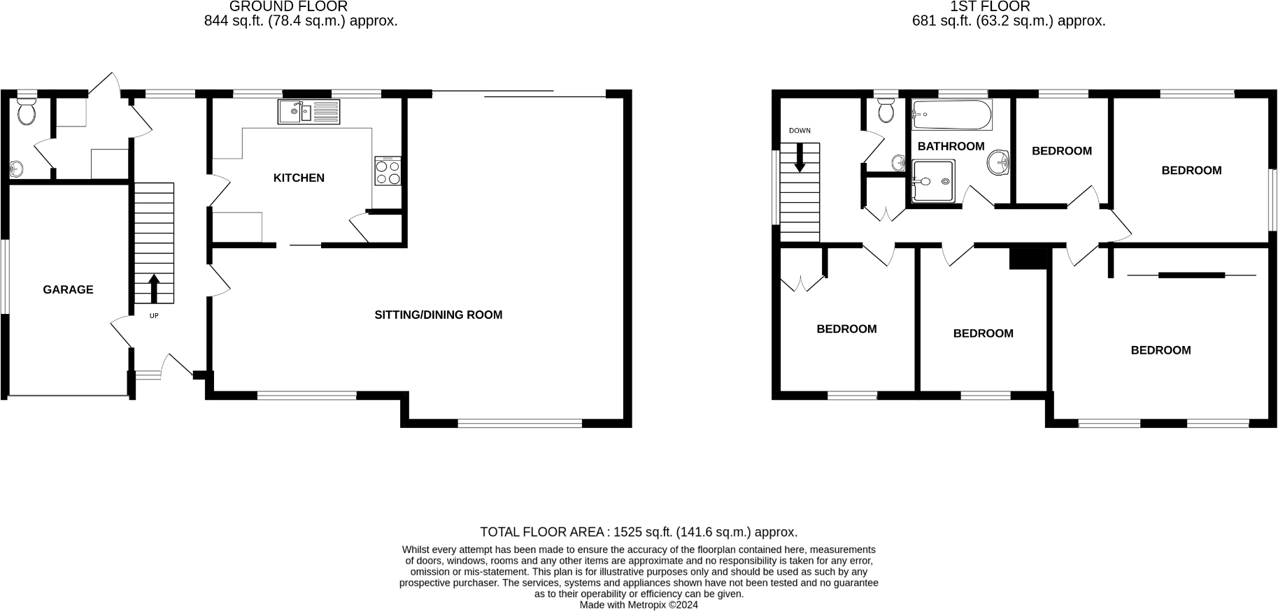
- Sqft (est)
- 1,525.00
The heatmap indicates the level of crime in the area. The color of the heatmap indicates the crime severity and recency.
Metrics Year-on-Year
- Average area value
- 1,332,494.00 £Increased by 19.68 %
- Est sale value
- 2,128,900.00 £Increased by 164.90 %
- Average area rental value
- 1,800.00 £/moDecreased by 54.11 %
- Est letting value
- 1,525.00 £/moUnchanged by 0.00 %
- Est rental Yield
- 1.62 %Decreased by 61.70 %
- Crime Rate
- 30.00 %Unchanged by 0.00 %
Agent Activity
Emslie & Tarrant created the listing.
Nearby Schools
| Name | Type | Ofsted | Distance |
|---|---|---|---|
| Pashley Down Infant School | Community School | Good | 4.14 KM |
| The South Downs School | Academy Special Converter | Outstanding | 4.35 KM |
| Ocklynge Junior School | Academy Sponsor Led | 5.04 KM | |
| Motcombe Infants' School | Community School | Good | 5.26 KM |
| The Cavendish School | Academy Converter | Good | 5.31 KM |
Images
Nearby Streets
| Name | Average Price | Average Sqft | Distance |
|---|---|---|---|
| Dene Close | £ 650,000 | 0 | 0.00 KM |
| Warren Close | £ 0 | 0 | 0.00 KM |
| Upper Street | £ 0 | 0 | 0.00 KM |
Nearby Transport
| Name | NLC | TLC | Distance |
|---|---|---|---|
| Polegate | 5455 | PLG | 6.97 KM |
| Eastbourne | 5448 | EBN | 7.37 KM |
| Hampden Park (Sussex) | 5450 | HMD | 7.89 KM |
| Berwick (Sussex) | 5323 | BRK | 9.83 KM |
Nearby Listings
| Address | Price | Type | Score | Distance |
|---|---|---|---|---|
| The Link, East Dean | £ 899,950 | BUY | 7 / 10 | 0.00 KM |
| Summerdown Lane, East Dean | £ 750,000 | BUY | 6 / 10 | 0.16 KM |
| Michel Dene Road, East Dean | £ 650,000 | BUY | 8 / 10 | 0.23 KM |
| Michel Dene Road, East Dean, BN20 0JZ | £ 530,000 | BUY | 6 / 10 | 0.23 KM |
| Michel Dene Road, East Dean | £ 575,000 | BUY | Unknown | 0.30 KM |
Nearby Properties
| Address | Price | Distance |
|---|---|---|
| 11 The Link | £ 620,000 | 0.01 KM |
| 9 The Link | £ 955,000 | 0.01 KM |
| 3 The Link | £ 410,000 | 0.01 KM |
| 19 The Link | £ 572,500 | 0.01 KM |
| 58 Michel Dene Road | £ 510,000 | 0.16 KM |