Chancellors says ..
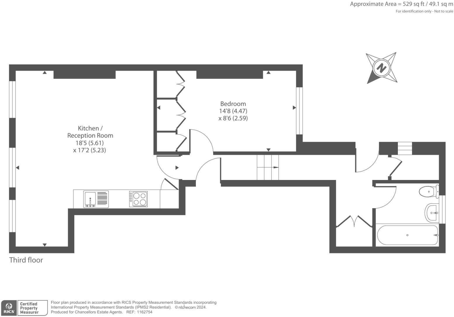
Located on the third floor and conveniently located for all local amenities and transport facilities with easy access to Central London,is this recently refurbished one double bedroom flat offering 530 sq ft of lateral living space.
Property Oracle says ..
This one bedroom flat is located on Finchley Road in Hampstead, a desirable area of North West London. The property benefits from being close to transport links, including Finchley Road and Frognal Overground station, and several highly-rated schools such as Holy Trinity Cofe Primary School. The flat itself appears to be in good condition, with a modern kitchen and bathroom. However, the lack of plot size is a significant drawback, and the price of £399,950 may be considered high compared to the average price per square foot in the area, which is £954. Further investigation into comparable properties in the immediate vicinity would be beneficial to determine a more accurate valuation.
Therefore, we give this property 5 / 10. *Disclaimer: This is our option and does constitute a recommendation or financial advice. Do your own research. *
- Price
- 4
- Condition
- 8
- Location
- 9
- Land
- 1
- Bedrooms
- 1
- Bathrooms
- 1
- Sqft (est)
- 529.00
The heatmap indicates the level of crime in the area. The color of the heatmap indicates the crime severity and recency.
Metrics Year-on-Year
- Average area value
- 652,917.00 £Decreased by 31.71 %
- Est sale value
- 464,462.00 £Decreased by 18.02 %
- Average area rental value
- 2,252.00 £/moDecreased by 7.29 %
- Est letting value
- 1,587.00 £/moIncreased by 50.00 %
- Est rental Yield
- 4.14 %Increased by 35.74 %
- Crime Rate
- 29.00 %Unchanged by 0.00 %
Agent Activity
Chancellors created the listing.
Nearby Schools
| Name | Type | Ofsted | Distance |
|---|---|---|---|
| North Bridge House Pre-Prep School | Other Independent School | 0.16 KM | |
| Holy Trinity Cofe Primary School, Nw3 | Voluntary Aided School | Good | 0.27 KM |
| Southbank International School Hampstead | Other Independent School | 0.27 KM | |
| Broadhurst School | Other Independent School | 0.32 KM | |
| South Hampstead High School | Other Independent School | 0.33 KM |
Images
Nearby Streets
| Name | Average Price | Average Sqft | Distance |
|---|---|---|---|
| The Grand Parade | £ 0 | 0 | 0.00 KM |
| Victoria Rise | £ 2,743,998 | 0 | 0.00 KM |
| Loudoun Road | £ 0 | 0 | 0.00 KM |
| College Crescent | £ 0 | 0 | 0.00 KM |
| Adelaide Road | £ 0 | 0 | 0.00 KM |
Nearby Transport
| Name | NLC | TLC | Distance |
|---|---|---|---|
| Finchley Road And Frognal | 1445 | FNY | 0.48 KM |
| South Hampstead | 1451 | SOH | 0.65 KM |
| West Hampstead | 1421 | WHD | 1.23 KM |
| West Hampstead Thameslink | 1525 | WHP | 1.31 KM |
| Kilburn High Road | 1415 | KBN | 1.74 KM |
Nearby Listings
| Address | Price | Type | Score | Distance |
|---|---|---|---|---|
| Finchley Road, Hampstead, NW3 | £ 399,950 | BUY | 5 / 10 | 0.00 KM |
| Sumpter Close, Finchley Road, London, NW3 5JR | £ 685,000 | BUY | 5 / 10 | 0.03 KM |
| Finchley Road, South Hampstead, London, NW3 | £ 375,000 | BUY | Unknown | 0.04 KM |
| Finchley Road, South Hampstead, London, NW3 | £ 450,000 | BUY | 5 / 10 | 0.04 KM |
| Canfield Gardens, South Hampstead, NW6 | £ 675,000 | BUY | Unknown | 0.05 KM |
Nearby Properties
| Address | Price | Distance |
|---|---|---|
| 27 Canfield Place | £ 478,000 | 0.13 KM |
| 7b Canfield Place | £ 315,000 | 0.15 KM |
| 25 Canfield Place | £ 435,000 | 0.15 KM |
| 7a Canfield Place | £ 320,000 | 0.15 KM |
| 13 Canfield Place | £ 292,560 | 0.15 KM |