Langford Russell says ..
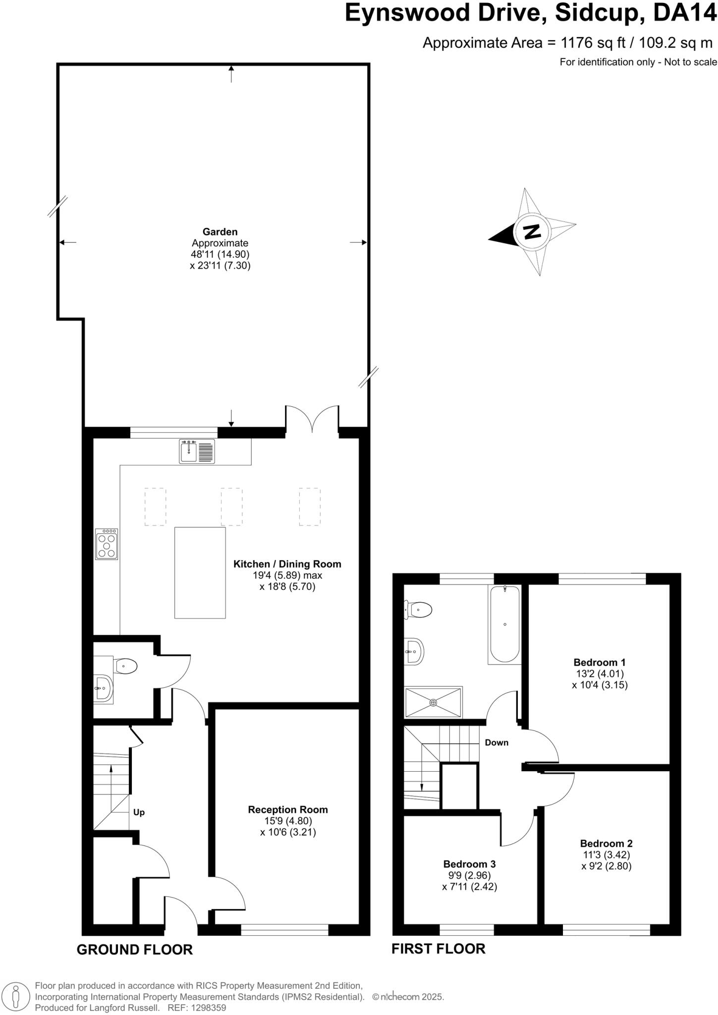
***Guide Price £625,000 - £650,000*** Presented to the marked with no onward chain, Langford Russell are delighted to present a newly built, three bedroom family home, situated in the residential cul-de-sac of Eynswood Drive in Sidcup. Internally the property co...
Property Oracle says ..
Therefore, we give this property 8 / 10. *Disclaimer: This is our option and does constitute a recommendation or financial advice. Do your own research. *
- Price
- 9
- Condition
- 9
- Location
- 7
- Land
- 7
- Bedrooms
- 3
- Bathrooms
- 1
- Sqft (est)
- 1,176.00
- Lot (est)
- 1,170.00
The heatmap indicates the level of crime in the area. The color of the heatmap indicates the crime severity and recency.
Metrics Year-on-Year
- Average area value
- 456,667.00 £Decreased by 3.43 %
- Est sale value
- 989,016.00 £Increased by 89.41 %
- Average area rental value
- 2,099.00 £/moIncreased by 30.13 %
- Est letting value
- 3,528.00 £/moIncreased by 200.00 %
- Est rental Yield
- 5.52 %Increased by 34.96 %
- Crime Rate
- 4.00 %Unchanged by 0.00 %
from 472,875.00 £
from 522,144.00 £
from 1,613.00 £/mo
from 1,176.00 £/mo
from 4.09 %
from 4.00 %
Agent Activity
Langford Russell created the listing.
Nearby Schools
| Name | Type | Ofsted | Distance |
|---|---|---|---|
| Merton Court School | Other Independent School | 0.34 KM | |
| St Peter Chanel Catholic Primary School | Voluntary Aided School | Good | 0.50 KM |
| Hope Community School | Free Schools | Requires improvement | 0.76 KM |
| Kemnal Technology College | Academy Converter | Serious Weaknesses | 1.02 KM |
| Cleeve Park School | Academy Converter | Requires improvement | 1.19 KM |
Images
Nearby Streets
| Name | Average Price | Average Sqft | Distance |
|---|---|---|---|
| Caerleon Close | £ 0 | 0 | 0.00 KM |
| Sedcombe Close | £ 799,999 | 0 | 0.00 KM |
| Warren Road | £ 625,000 | 0 | 0.00 KM |
| Penny Farthing Bridge | £ 0 | 0 | 0.00 KM |
| Aston Close | £ 0 | 0 | 0.00 KM |
Nearby Transport
| Name | NLC | TLC | Distance |
|---|---|---|---|
| Sidcup | 5125 | SID | 1.76 KM |
| Albany Park | 5132 | AYP | 2.19 KM |
| St Mary Cray | 5073 | SMY | 2.97 KM |
| Bexley | 5093 | BXY | 4.47 KM |
| New Eltham | 5119 | NEH | 5.04 KM |
Nearby Listings
| Address | Price | Type | Score | Distance |
|---|---|---|---|---|
| Eynswood Drive, Sidcup | £ 625,000 | BUY | 8 / 10 | 0.00 KM |
| Eynswood Drive, Sidcup, Kent, DA14 | £ 500,000 | BUY | 6 / 10 | 0.05 KM |
| Eynswood Drive, Sidcup | £ 500,000 | BUY | Unknown | 0.07 KM |
| Sidcup Hill, Sidcup, DA14 | £ 250,000 | BUY | 5 / 10 | 0.11 KM |
| Progressive Close, Sidcup, DA14 5HZ | £ 240,000 | BUY | 6 / 10 | 0.17 KM |
Nearby Properties
| Address | Price | Distance |
|---|---|---|
| 21 Eynswood Drive | £ 250,000 | 0.06 KM |
| 23 Eynswood Drive | £ 250,000 | 0.06 KM |
| 53 Eynswood Drive | £ 320,000 | 0.06 KM |
| 18 Eynswood Drive | £ 310,000 | 0.06 KM |
| 45 Eynswood Drive | £ 270,000 | 0.06 KM |