Gascoigne Halman says ..
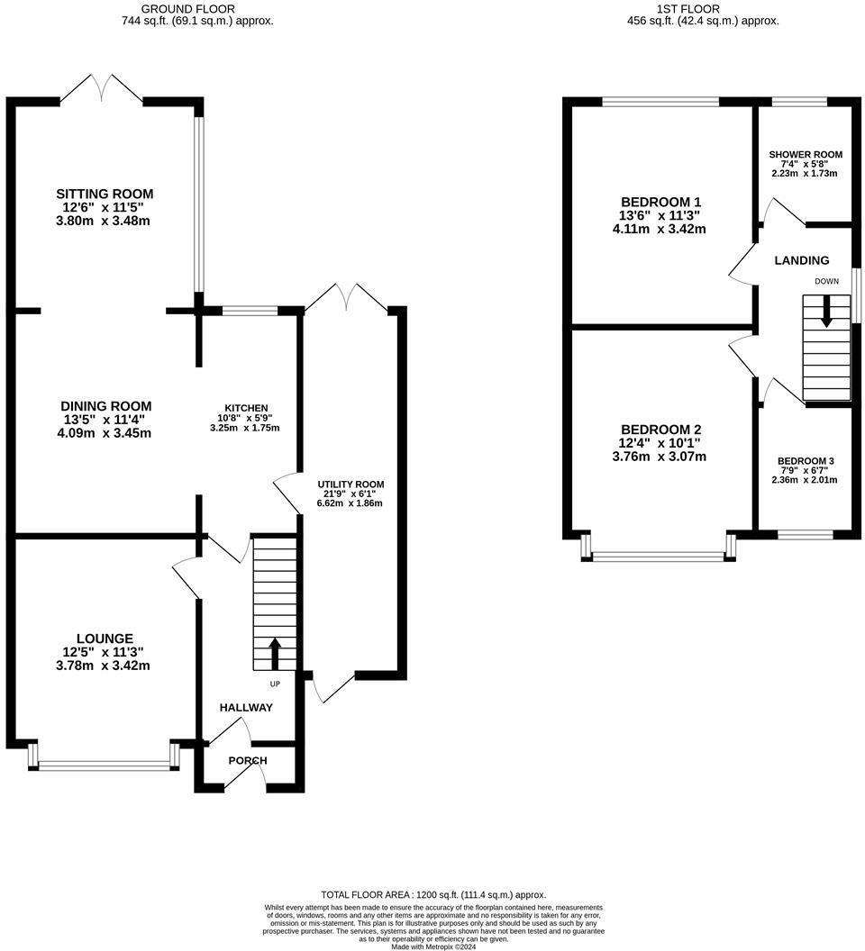
AN EXTENDED THREE BEDROOM BAY FRONTED SEMI DETACHED PROPERTY occupying a FAVOURABLE CUL-DE-SAC LOCATION within HIGHER POYNTON. IMMACULATELY PRESENTED THROUGHOUT. ENTRANCE PORCH, ENTRANCE HALL, LOUNGE, DINING ROOM, SITTING ROOM, KITCHEN, UTILITY ROOM, THREE WELL PROPORTIONED BEDROOMS and MODERN SH...
Property Oracle says ..
This three-bedroom semi-detached property located on Derbyshire Road in Poynton, Cheshire, is presented as a well-maintained family home. The photos reveal a property that has been well-looked after, with a recently updated kitchen featuring modern appliances and units. The bathroom also seems to have been updated with a contemporary shower and sink. The property boasts a good-sized garden which is pleasant and well-kept, complete with a shed and greenhouse, offering ample space for outdoor living and gardening. The interior photographs suggest a comfortable and spacious living environment, though some areas retain older features.
The location in Poynton is generally considered desirable. The property’s position on a cul-de-sac is a positive aspect, hinting at a tranquil living environment. While there is mention of nearby schools and railway stations, the specific distances aren’t explicitly stated, which makes it difficult to accurately assess the convenience of these amenities. More detail would provide greater clarity regarding the location’s accessibility to schools, shops, and other essential services.
The provided data is limited in terms of comparable properties’ square footage and prices, making an absolute assessment of value difficult. While the list price of £475,000 appears to be in line with similar properties on Derbyshire Road and in the wider Poynton area, the lack of detailed square footage information for these properties and the absence of an average price per square foot for the area prevents a conclusive judgement. This property would be ideal for a family or a buyer looking for a comfortable home in a peaceful setting within a sought-after location.
Therefore, we give this property 6 / 10. *Disclaimer: This is our option and does constitute a recommendation or financial advice. Do your own research. *
- Price
- 7
- Condition
- 7
- Location
- 7
- Land
- 6
- Bedrooms
- 3
- Bathrooms
- 1
- Sqft (est)
- 1,200.00
The heatmap indicates the level of crime in the area. The color of the heatmap indicates the crime severity and recency.
Metrics Year-on-Year
- Average area value
- 562,143.00 £Decreased by 0.87 %
- Est sale value
- 568,800.00 £Increased by 37.39 %
- Average area rental value
- 1,050.00 £/moDecreased by 21.88 %
- Est letting value
- 0.00 £/mo
- Est rental Yield
- 2.24 %Decreased by 21.13 %
- Crime Rate
- 29.00 %Unchanged by 0.00 %
Agent Activity
Gascoigne Halman marked this listing as sold.
Gascoigne Halman created the listing.
Nearby Schools
| Name | Type | Ofsted | Distance |
|---|---|---|---|
| Brookside Primary School | Community School | Good | 1.66 KM |
| High Lane Primary School | Community School | Good | 1.99 KM |
| Worth Primary School | Academy Converter | 3.01 KM | |
| Torkington Primary School | Community School | Good | 3.08 KM |
| Poynton High School | Academy Converter | 3.35 KM |
Images
Nearby Streets
| Name | Average Price | Average Sqft | Distance |
|---|---|---|---|
| Derbyshire Road | £ 475,000 | 0 | 0.00 KM |
| St. Elmo Park | £ 650,000 | 0 | 0.00 KM |
| Lyme Road | £ 0 | 0 | 0.00 KM |
| Cornwall Close | £ 312,500 | 0 | 0.00 KM |
| Sheldon Road | £ 0 | 0 | 0.00 KM |
Nearby Transport
| Name | NLC | TLC | Distance |
|---|---|---|---|
| Middlewood | 2971 | MDL | 0.37 KM |
| Rose Hill Marple | 2873 | RSH | 4.47 KM |
| Disley | 2765 | DSL | 4.62 KM |
| Hazel Grove | 2768 | HAZ | 4.78 KM |
| Poynton | 2874 | PYT | 5.59 KM |
Nearby Listings
| Address | Price | Type | Score | Distance |
|---|---|---|---|---|
| Derbyshire Road, Poynton | £ 475,000 | BUY | 6 / 10 | 0.00 KM |
| Pool House Road, Poynton | £ 550,000 | BUY | Unknown | 0.03 KM |
| Melrose Crescent, Higher Poynton | £ 795,000 | BUY | 8 / 10 | 0.22 KM |
| Hilton Road, Poynton | £ 575,000 | BUY | 7 / 10 | 0.35 KM |
| Prince Road, Poynton | £ 800,000 | BUY | 7 / 10 | 0.45 KM |
Nearby Properties
| Address | Price | Distance |
|---|---|---|
| 3 Derbyshire Road | £ 215,000 | 0.01 KM |
| 9 Derbyshire Road | £ 203,000 | 0.01 KM |
| 1 Derbyshire Road | £ 480,000 | 0.01 KM |
| 7 Derbyshire Road | £ 380,000 | 0.01 KM |
| 11 Pool House Road | £ 460,000 | 0.08 KM |