holland & odam says ..
A well maintained semi-detached bungalow, occupying a wonderful position in this established cul-de-sac and complemented by a low maintenance south-westerly facing garden. Offered for sale with no onward chain and vacant possession.
Property Oracle says ..
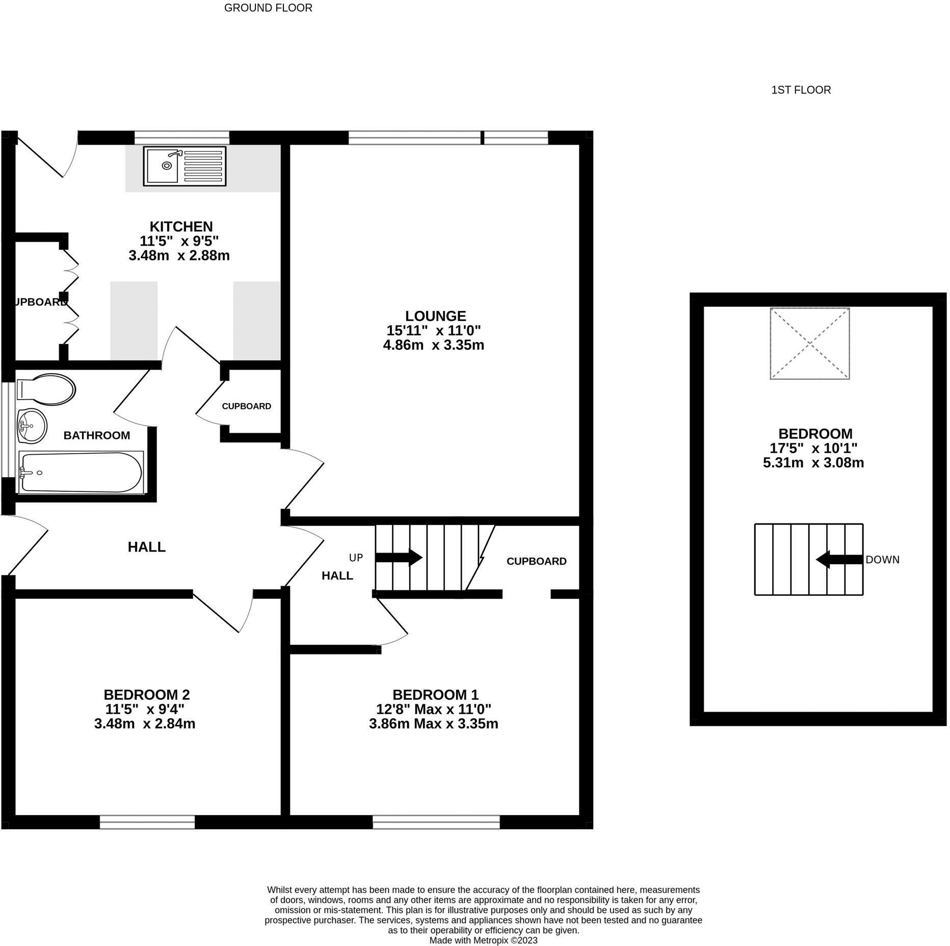
This three-bedroom semi-detached bungalow located in Street, Somerset is presented in a reasonably good condition. The photos reveal a recently modernised interior with new kitchen units, flooring, and bathroom fixtures. This suggests recent investment and improved usability for prospective buyers. The property benefits from a garden, albeit of a size that is not exceptionally large. The location is positive, with several good primary schools nearby, although further information regarding secondary schools and access to public transportation would be beneficial. The price appears competitive when compared to similar properties in the area (though precise price per sq ft analysis is hampered by the lack of precise plot size). Overall, this property would appeal to families searching for a relatively well-maintained home in a convenient location, albeit the modest garden and lack of detailed transportation information are points to be considered.
Therefore, we give this property 6 / 10. *Disclaimer: This is our option and does constitute a recommendation or financial advice. Do your own research. *
- Price
- 7
- Condition
- 8
- Location
- 7
- Land
- 4
- Bedrooms
- 3
- Bathrooms
- 1
- Sqft (est)
- 914.50
The heatmap indicates the level of crime in the area. The color of the heatmap indicates the crime severity and recency.
Metrics Year-on-Year
- Average area value
- 211,990.00 £Decreased by 57.21 %
- Est sale value
- 268,863.00 £Decreased by 9.82 %
- Average area rental value
- 1,750.00 £/moIncreased by 95.75 %
- Est letting value
- 1,829.00 £/mo
- Est rental Yield
- 9.91 %Increased by 356.68 %
- Crime Rate
- 11.00 %Unchanged by 0.00 %
Agent Activity
holland & odam created the listing.
Nearby Schools
| Name | Type | Ofsted | Distance |
|---|---|---|---|
| Street Building | Children's Centre Linked Site | 0.53 KM | |
| Brookside Community Primary School | Academy Converter | Good | 0.59 KM |
| Avalon School | Community Special School | Good | 0.68 KM |
| Hindhayes Infant School | Community School | Good | 1.04 KM |
| Elmhurst Junior School | Community School | Requires improvement | 1.57 KM |
Images
Nearby Streets
| Name | Average Price | Average Sqft | Distance |
|---|---|---|---|
| Springfield | £ 0 | 0 | 0.00 KM |
| Park Road | £ 0 | 0 | 0.00 KM |
| Elgin Close | £ 0 | 0 | 0.00 KM |
| Queens Road | £ 335,000 | 0 | 0.00 KM |
| Meadow Close | £ 425,000 | 0 | 0.00 KM |
Nearby Listings
| Address | Price | Type | Score | Distance |
|---|---|---|---|---|
| Leigh Furlong Road, Street | £ 279,950 | BUY | 6 / 10 | 0.00 KM |
| Leigh Furlong Road, Street | £ 250,000 | BUY | 5 / 10 | 0.03 KM |
| Leigh Furlong Road, Street | £ 269,950 | BUY | 6 / 10 | 0.03 KM |
| Isaacs Close, Street | £ 279,950 | BUY | 7 / 10 | 0.03 KM |
| Street, Somerset | £ 275,000 | BUY | 6 / 10 | 0.04 KM |
Nearby Properties
| Address | Price | Distance |
|---|---|---|
| 4 Leigh Furlong Road | £ 219,950 | 0.05 KM |
| Redcliffe | £ 278,000 | 0.05 KM |
| 16 Leigh Furlong Road | £ 84,000 | 0.05 KM |
| 3 Leigh Furlong Road | £ 200,000 | 0.05 KM |
| 10 Leigh Furlong Road | £ 176,000 | 0.05 KM |