Apartment 2 Verve, Spire Court, Tunbridge Wells
By RPC Land and New Homes
£ 515,000
Reviews
3 out of 5 stars
RPC Land and New Homes says ..
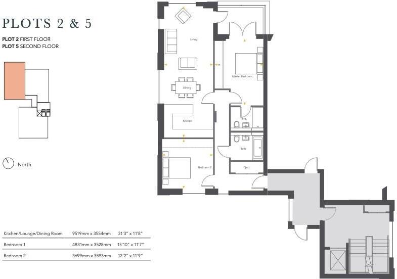
Apartment 2 is one of the most spacious properties for sale at Verve, located in one of Tunbridge Wells' most central locations. This full suite of accommodation is equal to that of a small house, set across 941 sq ft. Viewing is essential to appreciate the space and luxury.
Property Oracle says ..
The property is a modern two bedroom apartment located in the desirable Park area of Tunbridge Wells. The apartment is part of a new development and benefits from a high-quality finish and modern design. The location is excellent, with easy access to local amenities, transport links and highly-rated schools. Given the property is in a new development, it is in excellent condition. There is no outdoor space. The price of £515,000 seems high compared to the average price per sqft in the area, however, similar properties in the development have sold for prices exceeding this. Therefore, the price may be justified by the location and quality of the build and finish.
Therefore, we give this property 7 / 10. *Disclaimer: This is our option and does constitute a recommendation or financial advice. Do your own research. *
- Price
- 7
- Condition
- 10
- Location
- 10
- Land
- 1
- Bedrooms
- 2
- Bathrooms
- 2
- Sqft (est)
- 690.40
The heatmap indicates the level of crime in the area. The color of the heatmap indicates the crime severity and recency.
Metrics Year-on-Year
- Average area value
- 339,299.00 £Increased by 1.34 %
- Est sale value
- 251,305.60 £Increased by 25.52 %
- Average area rental value
- 1,364.00 £/moIncreased by 34.92 %
- Est letting value
- 690.40 £/mo
- Est rental Yield
- 4.82 %Increased by 33.15 %
- Crime Rate
- 7.00 %Unchanged by 0.00 %
Agent Activity
RPC Land and New Homes created the listing.
Nearby Schools
| Name | Type | Ofsted | Distance |
|---|---|---|---|
| St Peter'S Church Of England Primary School | Voluntary Controlled School | Outstanding | 0.06 KM |
| St James' Church Of England Voluntary Aided Primary School | Voluntary Aided School | Outstanding | 0.48 KM |
| Claremont Primary School | Community School | Outstanding | 0.62 KM |
| St Barnabas Cofe Va Primary School | Voluntary Aided School | Good | 1.17 KM |
| Beechwood School | Other Independent School | 1.48 KM |
Images
Nearby Streets
| Name | Average Price | Average Sqft | Distance |
|---|---|---|---|
| Princes Street | £ 495,000 | 0 | 0.00 KM |
| The Chase | £ 0 | 0 | 0.00 KM |
| Grove Hill Gardens | £ 460,000 | 0 | 0.00 KM |
| Hilbert Road | £ 0 | 0 | 0.00 KM |
| Victoria Road | £ 0 | 0 | 0.00 KM |
Nearby Transport
| Name | NLC | TLC | Distance |
|---|---|---|---|
| Tunbridge Wells | 5230 | TBW | 1.31 KM |
| High Brooms | 5235 | HIB | 2.14 KM |
| Frant | 5218 | FRT | 3.66 KM |
| Tonbridge | 5229 | TON | 6.81 KM |
| Wadhurst | 5231 | WAD | 7.63 KM |
Nearby Listings
| Address | Price | Type | Score | Distance |
|---|---|---|---|---|
| Apartment 2 Verve, Spire Court, Tunbridge Wells | £ 515,000 | BUY | 7 / 10 | 0.00 KM |
| Apartment 6 Verve, Spire Court, Tunbridge Wells | £ 475,000 | BUY | Unknown | 0.01 KM |
| “Verve” Royal Tunbridge Wells | £ 475,000 | BUY | 7 / 10 | 0.02 KM |
| Windmill Street, Tunbridge Wells, Kent, TN2 | £ 595,000 | BUY | 6 / 10 | 0.03 KM |
| Apartment 5 Verve, Spire Court, Tunbridge Wells | £ 525,000 | BUY | 7 / 10 | 0.03 KM |
Nearby Properties
| Address | Price | Distance |
|---|---|---|
| 19 Windmill Street | £ 485,000 | 0.06 KM |
| 20b Windmill Street | £ 400,000 | 0.06 KM |
| 33 Windmill Street | £ 300,000 | 0.06 KM |
| 47 Windmill Street | £ 335,000 | 0.06 KM |
| 7 Windmill Street | £ 115,000 | 0.06 KM |