Nags Head Road, Enfield
TO

Nags Head Road, Enfield

By Tower Estates

£ 850,000

Reviews

3 out of 5 stars

Tower Estates says ..

*potential to extend* This 4 bedroom end of terrace house dates back to the late 1800's and in its original build of a three storey property. Sitting on a large plot on the road boasting a very impressive 150' rear garden and the added benefit of 12' of room to side housing a double garage offeri...

Property Oracle says ..

This property located on Nags Head Road in Ponders End, Enfield presents a compelling investment opportunity, though with caveats. It’s a four-bedroom house with two bathrooms situated on a generous plot and boasting a substantial rear garden. The property’s age is indicated by its original build dating back to the late 1800’s which gives it character but also highlights that it requires modernisation. The current internal finishes are outdated, and a renovation is strongly suggested. The presence of a double garage and significant plot size provides considerable potential to create a larger, more modern living space. The photos reveal that the property needs updating both internally and externally but shows good underlying structure. The location provides reasonable access to transport links and schools, while the large garden and plot are particularly attractive features. The price point requires consideration given the current condition. However, the potential for expansion and modernisation makes the property appealing to a buyer with the resources and desire to undertake a renovation project. This property offers potential but its value rests heavily on its future development potential.

Therefore, we give this property 6 / 10. *Disclaimer: This is our option and does constitute a recommendation or financial advice. Do your own research. *

Price
7
Condition
5
Location
6
Land
8
Bedrooms
4
Bathrooms
2
Sqft (est)
2,459.55

The heatmap indicates the level of crime in the area. The color of the heatmap indicates the crime severity and recency.

Metrics Year-on-Year

Average area value
240,000.00 £
Decreased by 38.64 %
from 391,129.00 £
Est sale value
1,192,881.75 £
Increased by 29.33 %
from 922,331.25 £
Average area rental value
1,713.00 £/mo
Decreased by 9.46 %
from 1,892.00 £/mo
Est letting value
7,378.65 £/mo
Increased by 200.00 %
from 2,459.55 £/mo
Est rental Yield
8.57 %
Increased by 47.76 %
from 5.80 %
Crime Rate
6.00 %
Unchanged by 0.00 %
from 6.00 %

Agent Activity

  • Tower Estates created the listing.

Nearby Schools

NameTypeOfstedDistance
St Mary'S Catholic Primary SchoolVoluntary Aided SchoolGood0.21 KM
Waverley SchoolCommunity Special SchoolOutstanding0.53 KM
St Matthew'S Cofe Primary SchoolVoluntary Aided SchoolGood0.56 KM
Kingfisher Hall Primary AcademyFree SchoolsOutstanding0.59 KM
Alma Primary SchoolAcademy Converter0.67 KM

Images

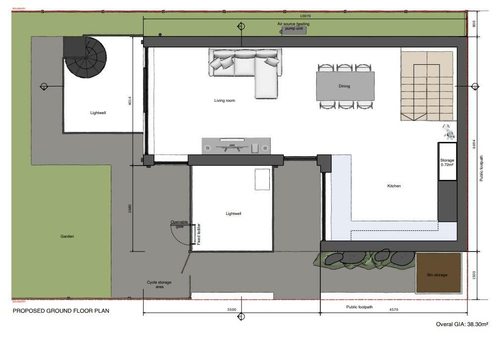
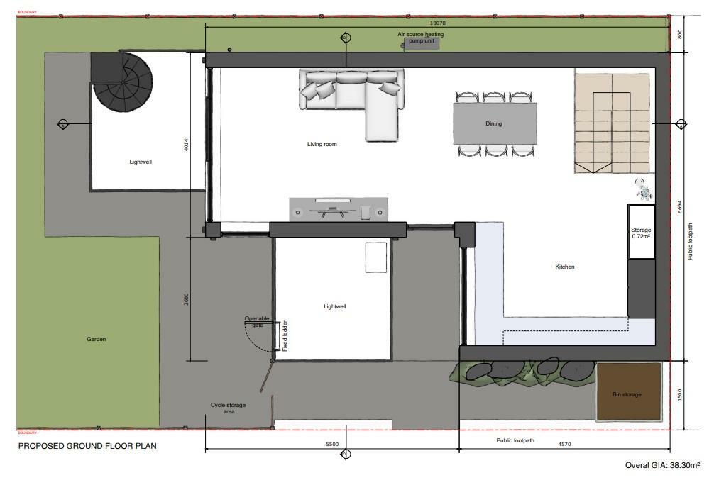
Front.JPG Dining Room.JPG bedroom 3.JPG image10.jpeg 128 Nags head road.JPG Bedroom 2.JPG Bathroom.JPG Rear Garden.JPG Conservatory.JPG Rear Garden 2.JPG Rear Garden 3.JPG Render.jpg Aerial View.jpg Ground Floor.jpg 2.jpg 3.jpg Rear Garden 4.JPG Aerial.jpg Side.jpg Section.jpg Basement Floor.jpg Proposed Site Plan.jpg Plan.jpg 1.jpg Rear - Render.jpg Rear - Ground Floor.jpg Rear - Aerial View.jpg Rear - Side.jpg Rear - First Floor.jpg 128 Nags Head Front-Side.jpg

Nearby Streets

NameAverage PriceAverage SqftDistance
Moat Side £ 000.00 KM
Exeter Road £ 465,00000.00 KM
Scotland Green Road North £ 375,00000.00 KM
Burncroft Avenue £ 370,00000.00 KM
Brecon Road £ 450,00000.00 KM

Nearby Transport

NameNLCTLCDistance
Ponders End6819PON0.91 KM
Southbury6947SBU1.26 KM
Brimsdown6810BMD1.43 KM
Turkey Street6952TUR2.84 KM
Enfield Lock6815ENL2.92 KM

Nearby Listings

AddressPriceTypeScoreDistance
Nags Head Road, Enfield £ 850,000BUY6 / 100.00 KM
Clydesdale, Enfield, EN3 £ 675,000BUY7 / 100.14 KM
Durants Road, Enfield £ 430,000BUYUnknown0.14 KM
Durants Road, Enfield £ 425,000BUY6 / 100.14 KM
Durants Road, Enfield £ 430,000BUY6 / 100.14 KM

Nearby Properties

AddressPriceDistance
159 Nags Head Road £ 38,0000.05 KM
129 Nags Head Road £ 350,0000.05 KM
139a Nags Head Road £ 205,0000.05 KM
119a Nags Head Road £ 160,0000.05 KM
107 Nags Head Road £ 400,0000.05 KM