Melvyn Danes says ..
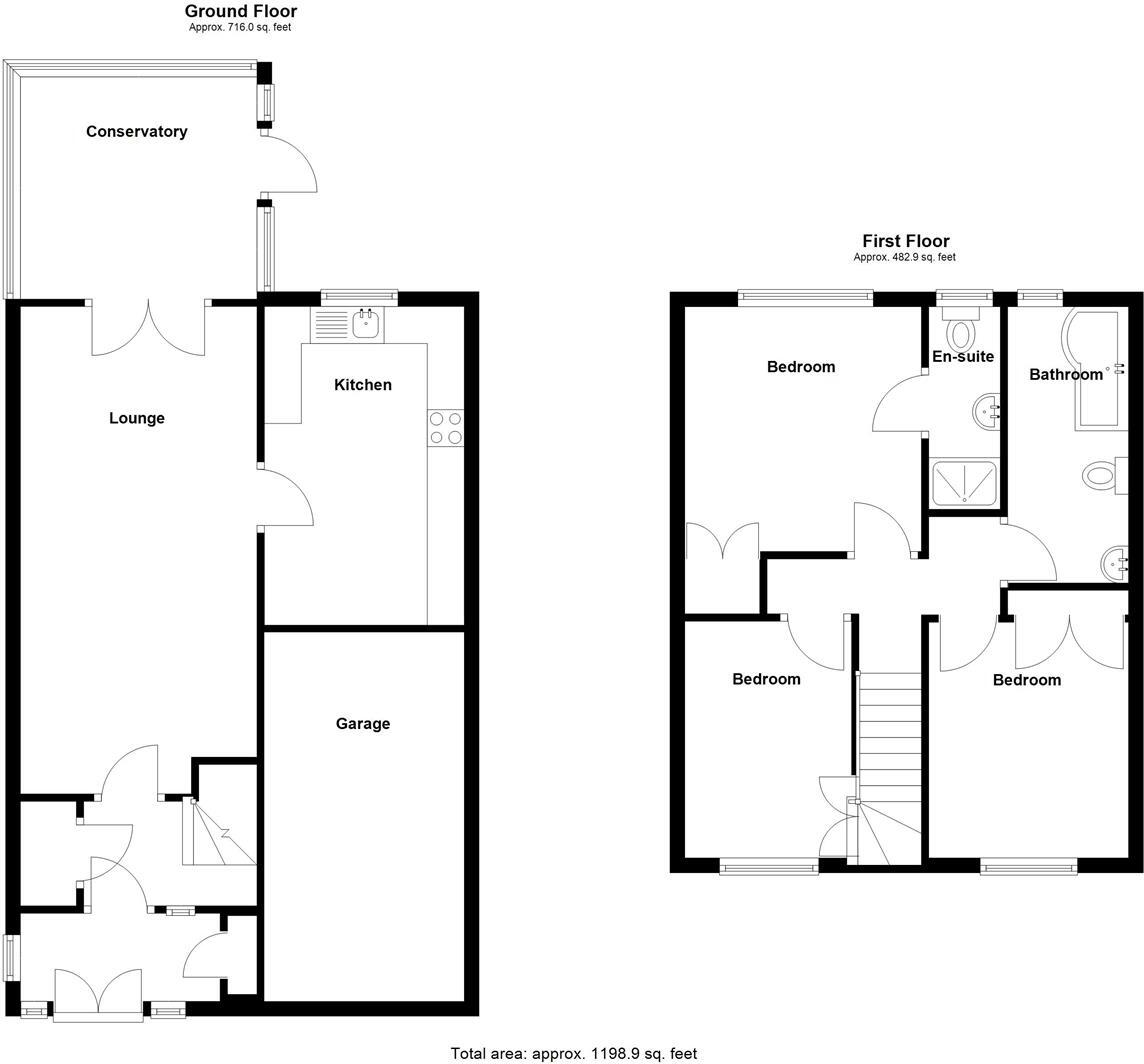
A well presented and stylish three bedroomed semi detached property in a sought after location. Offering an open plan lounge dining area, conservatory, good sized bedrooms and a private rear garden, good size driveway and a garage.
Property Oracle says ..
Therefore, we give this property 7 / 10. *Disclaimer: This is our option and does constitute a recommendation or financial advice. Do your own research. *
- Price
- 8
- Condition
- 7
- Location
- 7
- Land
- 7
- Bedrooms
- 3
- Bathrooms
- 2
- Sqft (est)
- 1,198.90
The heatmap indicates the level of crime in the area. The color of the heatmap indicates the crime severity and recency.
Metrics Year-on-Year
- Average area value
- 358,333.00 £Increased by 6.25 %
- Est sale value
- 387,244.70 £Increased by 10.62 %
- Average area rental value
- 1,283.00 £/moDecreased by 3.24 %
- Est letting value
- 1,198.90 £/moUnchanged by 0.00 %
- Est rental Yield
- 4.30 %Decreased by 8.90 %
- Crime Rate
- 7.00 %Unchanged by 0.00 %
from 337,265.00 £
from 350,078.80 £
from 1,326.00 £/mo
from 1,198.90 £/mo
from 4.72 %
from 7.00 %
Agent Activity
Melvyn Danes created the listing.
Nearby Schools
| Name | Type | Ofsted | Distance |
|---|---|---|---|
| Coppice Junior School | Community School | Requires improvement | 0.26 KM |
| Damson Wood Nursery And Infant School | Academy Sponsor Led | Good | 0.53 KM |
| Tudor Grange Primary Academy Yew Tree | Academy Converter | 1.02 KM | |
| Triple Crown Centre | Pupil Referral Unit | Good | 1.89 KM |
| Lode Heath School | Academy Converter | Good | 2.00 KM |
Images
Nearby Streets
| Name | Average Price | Average Sqft | Distance |
|---|---|---|---|
| Wheatley Close | £ 0 | 0 | 0.00 KM |
| Eastfield Drive | £ 0 | 0 | 0.00 KM |
| Heath Road | £ 350,000 | 0 | 0.00 KM |
| Damson Parkway | £ 0 | 0 | 0.00 KM |
| Vulcan Road | £ 177,950 | 0 | 0.00 KM |
Nearby Transport
| Name | NLC | TLC | Distance |
|---|---|---|---|
| Solihull | 4527 | SOL | 3.49 KM |
| Marston Green | 1034 | MGN | 4.04 KM |
| Widney Manor | 4528 | WMR | 4.19 KM |
| Birmingham International | 1215 | BHI | 4.53 KM |
| Olton | 4533 | OLT | 4.75 KM |
Nearby Listings
| Address | Price | Type | Score | Distance |
|---|---|---|---|---|
| Wheatley Close, Solihull | £ 350,000 | BUY | 7 / 10 | 0.00 KM |
| Inchford Road, Solihull | £ 600,000 | BUY | 7 / 10 | 0.11 KM |
| Coppice Road, Solihull, West Midlands, B92 | £ 475,000 | BUY | 7 / 10 | 0.11 KM |
| Luddington Road, Solihull, West Midlands, B92 | £ 750,000 | BUY | 7 / 10 | 0.13 KM |
| Inchford Road, Solihull | £ 425,000 | BUY | 7 / 10 | 0.14 KM |
Nearby Properties
| Address | Price | Distance |
|---|---|---|
| 5 Wheatley Close | £ 213,000 | 0.05 KM |
| 11 Wheatley Close | £ 230,000 | 0.05 KM |
| 2 Wheatley Close | £ 545,000 | 0.05 KM |
| 9 Inchford Road | £ 405,000 | 0.08 KM |
| 14 Inchford Road | £ 265,000 | 0.08 KM |