Malixons says ..
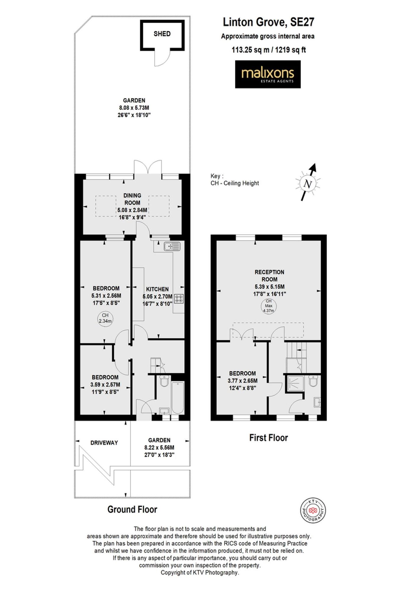
GUIDE PRICE £575,000 - £625,000 UNIQUE modern built mid terrace family home offering spacious reception room with a vaulted ceiling, two bathrooms,...
Property Oracle says ..
This property is a three-bedroom, two-bathroom terraced house located in Linton Grove, London, SE27. The list price is £575,000, and the property has a plot size of 1,219 sqft and an internal size of 1,869.56 sqft. The property benefits from being close to local schools such as St Luke’s Church of England Primary School (0.15km) and Park Campus Academy (0.38km), both with good Ofsted ratings. Transportation links are also convenient, with West Norwood station (0.59km) providing access to rail services. The property appears to be in need of some modernisation, as seen in the provided images. The garden is relatively small but provides some outdoor space. Compared to the average price per sqft in the area (£751), the list price seems slightly below average, considering the property’s condition and location. However, nearby comparable properties show a range of prices, making it difficult to definitively assess its value without further information.
Therefore, we give this property 6 / 10. *Disclaimer: This is our option and does constitute a recommendation or financial advice. Do your own research. *
- Price
- 7
- Condition
- 6
- Location
- 8
- Land
- 5
- Bedrooms
- 3
- Bathrooms
- 2
- Sqft (est)
- 1,869.56
- Lot (est)
- 1,219.00
The heatmap indicates the level of crime in the area. The color of the heatmap indicates the crime severity and recency.
Metrics Year-on-Year
- Average area value
- 696,167.00 £Decreased by 17.95 %
- Est sale value
- 1,164,735.88 £Decreased by 14.42 %
- Average area rental value
- 2,133.00 £/moDecreased by 1.25 %
- Est letting value
- 1,869.56 £/moUnchanged by 0.00 %
- Est rental Yield
- 3.68 %Increased by 20.26 %
- Crime Rate
- 9.00 %Unchanged by 0.00 %
Agent Activity
Malixons created the listing.
Nearby Schools
| Name | Type | Ofsted | Distance |
|---|---|---|---|
| St Luke'S Church Of England Primary School | Academy Converter | 0.15 KM | |
| Park Campus Academy | Academy Alternative Provision Converter | Good | 0.38 KM |
| Norwood School | Community School | Good | 0.47 KM |
| Kingswood Primary School & Children'S Centre | Children's Centre | 0.51 KM | |
| St Joseph'S Rc Infant School | Voluntary Aided School | Good | 0.60 KM |
Images
Nearby Streets
| Name | Average Price | Average Sqft | Distance |
|---|---|---|---|
| Eden Road | £ 0 | 0 | 0.00 KM |
| Unity Close | £ 0 | 0 | 0.00 KM |
| Auckland Hill | £ 0 | 0 | 0.00 KM |
| Church Road | £ 0 | 0 | 0.00 KM |
| Tredwell Road | £ 0 | 0 | 0.00 KM |
Nearby Transport
| Name | NLC | TLC | Distance |
|---|---|---|---|
| West Norwood | 5438 | WNW | 0.59 KM |
| Tulse Hill | 5390 | TUH | 1.48 KM |
| West Dulwich | 5086 | WDU | 1.87 KM |
| Gipsy Hill | 5363 | GIP | 1.95 KM |
| Sydenham Hill | 5085 | SYH | 2.40 KM |
Nearby Listings
| Address | Price | Type | Score | Distance |
|---|---|---|---|---|
| Linton Grove, London, SE27 | £ 575,000 | BUY | 6 / 10 | 0.00 KM |
| Chapel Road, London | £ 600,000 | BUY | 7 / 10 | 0.06 KM |
| Linton Grove, London | £ 550,000 | BUY | 7 / 10 | 0.08 KM |
| Ladas Road, West Norwood, London, SE27 | £ 600,000 | BUY | 6 / 10 | 0.09 KM |
| The Pavement, Chapel Road | £ 475,000 | BUY | 6 / 10 | 0.11 KM |
Nearby Properties
| Address | Price | Distance |
|---|---|---|
| 25 Linton Grove | £ 719,000 | 0.00 KM |
| 21 Linton Grove | £ 450,000 | 0.00 KM |
| 2 Curnicks Lane | £ 515,000 | 0.02 KM |
| 14 Curnicks Lane | £ 230,000 | 0.04 KM |
| 3 Curnicks Lane | £ 385,000 | 0.04 KM |