Acorn says ..
Victorian Era | Private Garden | Share of Freehold Unveiled to the SE23 market is this highly sought after ground floor Victorian, maisonette with a private garden situated on one of Forest Hill's quietest streets; Kilmorie Road. Located on a beautiful tree lined residential...
Property Oracle says ..
This property is located in Forest Hill, a popular area of South East London. The area benefits from excellent transport links with several train stations within walking distance providing easy access to central London. There are also a number of highly-rated primary schools nearby, making it an attractive location for families. The property itself is a two-bedroom house with a garden. The photos show that the property is in need of some modernisation and updating. Whilst the bathroom appears recently updated, the rest of the property shows signs of wear and tear. The list price is below the average price for the area, but given the condition of the property and the need for renovation, it may still represent reasonable value for money. The plot size is relatively small compared to other properties in the area.
Therefore, we give this property 6 / 10. *Disclaimer: This is our option and does constitute a recommendation or financial advice. Do your own research. *
- Price
- 7
- Condition
- 4
- Location
- 8
- Land
- 6
- Bedrooms
- 2
- Bathrooms
- 1
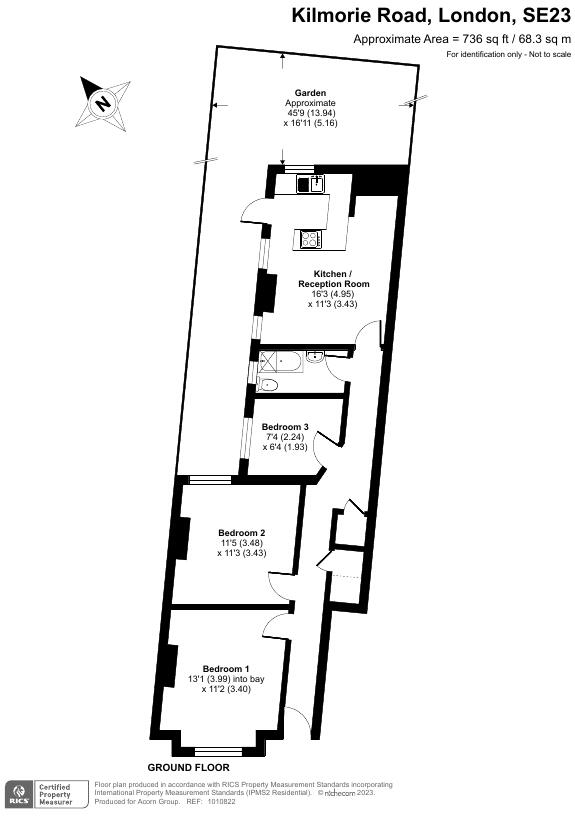
- Sqft (est)
- 1,300.00
- Lot (est)
- 736.00
The heatmap indicates the level of crime in the area. The color of the heatmap indicates the crime severity and recency.
Metrics Year-on-Year
- Average area value
- 552,857.00 £Decreased by 5.99 %
- Est sale value
- 989,300.00 £Increased by 29.42 %
- Average area rental value
- 1,921.00 £/moIncreased by 1.64 %
- Est letting value
- 2,600.00 £/moIncreased by 100.00 %
- Est rental Yield
- 4.17 %Increased by 8.03 %
- Crime Rate
- 5.00 %Unchanged by 0.00 %
Agent Activity
Acorn created the listing.
Nearby Schools
| Name | Type | Ofsted | Distance |
|---|---|---|---|
| Kilmorie Primary School | Community School | Outstanding | 0.21 KM |
| Greenvale School | Community Special School | Outstanding | 0.58 KM |
| Brent Knoll School | Foundation Special School | Good | 0.59 KM |
| Adamsrill Primary School | Community School | Good | 0.78 KM |
| St William Of York Catholic Primary School | Voluntary Aided School | Good | 0.78 KM |
Images
Nearby Streets
| Name | Average Price | Average Sqft | Distance |
|---|---|---|---|
| Carters Lane | £ 0 | 0 | 0.00 KM |
| Desmond Tutu Drive | £ 360,000 | 0 | 0.00 KM |
| Thomas Dean Road | £ 625,000 | 0 | 0.00 KM |
| Pool Court | £ 0 | 0 | 0.00 KM |
| Tibbenham Place | £ 400,000 | 0 | 0.00 KM |
Nearby Transport
| Name | NLC | TLC | Distance |
|---|---|---|---|
| Lower Sydenham | 5053 | LSY | 1.50 KM |
| Catford | 5077 | CTF | 1.57 KM |
| Honor Oak Park | 5418 | HPA | 1.60 KM |
| Forest Hill | 5362 | FOH | 1.62 KM |
| Catford Bridge | 5047 | CFB | 1.74 KM |
Nearby Listings
| Address | Price | Type | Score | Distance |
|---|---|---|---|---|
| Kilmorie Road, Forest Hill, London, SE23 | £ 550,000 | BUY | 5 / 10 | 0.00 KM |
| Kilmorie Road, Forest Hill, London | £ 450,000 | BUY | 6 / 10 | 0.00 KM |
| Kilmorie Road, Forest Hill, London, SE23 | £ 500,000 | BUY | Unknown | 0.00 KM |
| Woolstone Road, London | £ 1,000,000 | BUY | 7 / 10 | 0.04 KM |
| Woolstone Road, Forest Hill, London, SE23 | £ 600,000 | BUY | Unknown | 0.07 KM |
Nearby Properties
| Address | Price | Distance |
|---|---|---|
| 105 Woolstone Road | £ 150,000 | 0.08 KM |
| 89a Woolstone Road | £ 70,250 | 0.08 KM |
| 67 Woolstone Road | £ 395,000 | 0.08 KM |
| 93 Woolstone Road | £ 460,000 | 0.08 KM |
| 87b Woolstone Road | £ 375,000 | 0.08 KM |