Earls Close, Bridgwater, Somerset, TA6
British Homesellers logo

Earls Close, Bridgwater, Somerset, TA6

By British Homesellers

£ 310,000

Reviews

3 out of 5 stars

British Homesellers says ..

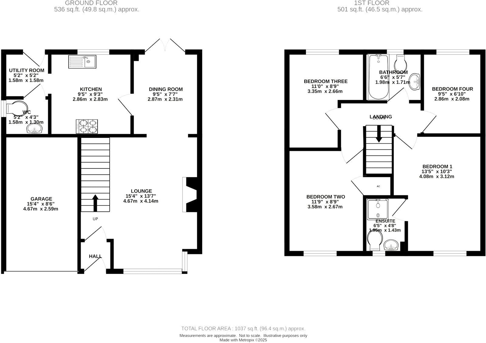
Spacious Four-Bedroom Detached Family Home — Earls Close, Bridgwater, Somerset, TA6 3TH Guide: Detached family home • Four bedrooms • En-suite to master • Generous driveway parking • Garage with electric car charge point • Private rear garden • Excel...

Property Oracle says ..

This is a detached property in Bridgwater, Somerset, featuring four bedrooms and three bathrooms, with a total area of 1,037 sqft. The house includes a garden with a patio and shed, and a garage. While the interior design could benefit from updating, the property appears to be in generally good condition. It is located in a residential area, close to schools and local amenities, with the train station a short distance away. The asking price of £310,000 is competitive, considering the average price of similar properties in the area.

Therefore, we give this property 7 / 10. *Disclaimer: This is our option and does constitute a recommendation or financial advice. Do your own research. *

Price
8
Condition
6
Location
7
Land
7
Bedrooms
4
Bathrooms
3
Sqft (est)
1,037.00

The heatmap indicates the level of crime in the area. The color of the heatmap indicates the crime severity and recency.

Metrics Year-on-Year

Average area value
185,989.00 £
Decreased by 10.61 %
from 208,070.00 £
Est sale value
225,029.00 £
Decreased by 13.20 %
from 259,250.00 £
Average area rental value
1,150.00 £/mo
Decreased by 0.86 %
from 1,160.00 £/mo
Est letting value
1,037.00 £/mo
Unchanged by 0.00 %
from 1,037.00 £/mo
Est rental Yield
7.42 %
Increased by 10.91 %
from 6.69 %
Crime Rate
3.00 %
Unchanged by 0.00 %
from 3.00 %

Agent Activity

  • British Homesellers created the listing.

Nearby Schools

NameTypeOfstedDistance
Chilton Trinity SchoolAcademy Converter0.31 KM
Northgate Primary SchoolFree Schools0.84 KM
Sedgemoor WestChildren's Centre0.90 KM
Westover Green Community School And Autism CentreAcademy Converter1.36 KM
The Bridge School SedgemoorPupil Referral UnitGood1.52 KM

Images

Picture No. 10 Picture No. 11 Picture No. 14 Picture No. 16 Picture No. 17 Picture No. 22 Picture No. 23 Picture No. 20 Picture No. 18 Picture No. 37 Picture No. 19 Picture No. 21 Picture No. 28 Picture No. 29 Picture No. 30 Picture No. 31 Picture No. 08 Picture No. 07 Picture No. 03 Picture No. 05 Picture No. 06

Nearby Streets

NameAverage PriceAverage SqftDistance
Wordsworth Avenue £ 199,99800.00 KM
Crown Mews £ 000.00 KM
Chilton Park £ 000.00 KM
Coleridge Square £ 175,00000.00 KM
Coleridge Road £ 217,00000.00 KM

Nearby Transport

NameNLCTLCDistance
Bridgwater3449BWT2.33 KM
Highbridge And Burnham3314HIG9.80 KM

Nearby Listings

AddressPriceTypeScoreDistance
Earls Close, Bridgwater, Somerset, TA6 £ 310,000BUY7 / 100.00 KM
Earls Close, Bridgwater, Somerset, TA6 £ 315,000BUY6 / 100.00 KM
17 Earls Close, Bridgwater £ 280,000BUYUnknown0.03 KM
3 Earls Close, Bridgwater £ 325,000BUY6 / 100.03 KM
Earls Close, Bridgwater £ 315,000BUY6 / 100.03 KM

Nearby Properties

AddressPriceDistance
14 Earls Close £ 245,0000.04 KM
18 Earls Close £ 184,9500.04 KM
4 Earls Close £ 182,0000.04 KM
15 Earls Close £ 185,0000.04 KM
9 Earls Close £ 205,0000.04 KM