Buttenhaugh Green, Elmswell
Sheridans logo

Buttenhaugh Green, Elmswell

By Sheridans

£ 625,000

Reviews

3 out of 5 stars

Sheridans says ..

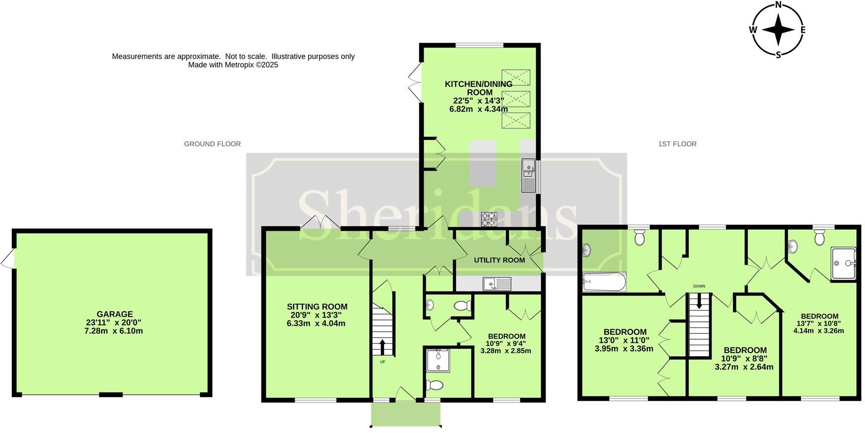
Forming part of a private mews is this extensive and immaculate Harthog Hutton detached house was built in 2021. It offers a perfect blend of modern efficient living and countryside charm. This immaculate high quality finish property boasts thoughtful living space. Most notable is the pr...

Property Oracle says ..

The property is a detached house built in 2021 by Harthog Huton, boasting high-quality fixtures and fittings. The photos reveal a modern, well-maintained interior and exterior. The kitchen is spacious and modern, with high-end appliances and ample storage. The bathrooms appear to be recently updated and in excellent condition. The bedrooms are well-proportioned and offer ample space. The property also benefits from a sizable rear garden, providing ample outdoor space. The location in Elmswell appears desirable, with proximity to Elmswell Community Primary School (rated ‘Good’ by Ofsted), and a train station (Elmswell, Greater Anglia) within a reasonable distance. The surrounding area seems peaceful and semi-rural, offering a tranquil lifestyle. Considering the property’s modern construction, high-quality finishes, desirable location, and good-sized garden, the list price of £625,000 seems relatively high compared to the average house price in the area (£329,417). However, nearby comparable properties are listed at similar or higher prices, suggesting the list price may be justified by the property’s superior condition, modern features, and desirable location. The average price per square foot in the area is £358, while the property’s price per square foot is significantly higher. This discrepancy is likely due to the property’s superior condition and modern features compared to the average property in the area. More information on the plot size would allow for a more precise analysis of the price per square foot.

Therefore, we give this property 7 / 10. *Disclaimer: This is our option and does constitute a recommendation or financial advice. Do your own research. *

Price
7
Condition
9
Location
8
Land
7
Bedrooms
4
Bathrooms
3
Sqft (est)
2,340.59

The heatmap indicates the level of crime in the area. The color of the heatmap indicates the crime severity and recency.

Metrics Year-on-Year

Average area value
446,563.00 £
Increased by 39.66 %
from 319,745.00 £
Est sale value
1,301,368.04 £
Increased by 77.07 %
from 734,945.26 £
Average area rental value
1,673.00 £/mo
Increased by 56.65 %
from 1,068.00 £/mo
Est letting value
4,681.18 £/mo
Increased by 100.00 %
from 2,340.59 £/mo
Est rental Yield
4.50 %
Increased by 12.22 %
from 4.01 %
Crime Rate
1.00 %
Unchanged by 0.00 %
from 1.00 %

Agent Activity

  • Sheridans created the listing.

Nearby Schools

NameTypeOfstedDistance
Elmswell Community Primary SchoolCommunity SchoolGood1.53 KM
Woolpit Primary AcademyAcademy ConverterRequires improvement4.09 KM
Crawford'S Church Of England Primary SchoolAcademy Converter5.71 KM
Thurston Church Of England Primary AcademyAcademy ConverterGood5.86 KM
Norton Cevc Primary SchoolVoluntary Controlled SchoolOutstanding5.94 KM

Images

IMG_2273 (1).jpg DCP_8656.jpg DCP_8667.jpg DCP_8677.jpg DCP_8621.jpg DCP_8651.jpg DCP_8672.jpg DCP_8661-2.jpg DCP_8646.jpg DCP_8606.jpg DCP_8599.jpg DCP_8616.jpg DCP_8589.jpg DJI_0180.jpg DCP_8687.jpg DCP_8686.jpg DCP_8685.jpg DJI_0182.jpg DCP_8626-2.jpg DCP_8636.jpg DCP_8611.jpg DCP_8594.jpg DCP_8604.jpg DCP_8605-2.jpg IMG_2302.jpg IMG_2277.jpg IMG_2294.jpg IMG_2303.jpg IMG_2309.jpg 2-DSC01231.jpg 22-DSC01209.jpg 4-DSC01221.jpg 7-DSC01243.jpg 10-DSC01173.jpg 12-DSC01177.jpg 13-DSC01179.jpg 18-DSC01195.jpg

Nearby Streets

NameAverage PriceAverage SqftDistance
Freedom Road £ 000.00 KM
Levant Close £ 000.00 KM
Boten drive £ 525,00000.00 KM
Gilbert's Crescent £ 000.00 KM
Gilbert's Road £ 000.00 KM

Nearby Transport

NameNLCTLCDistance
Elmswell7349ESW1.53 KM

Nearby Listings

AddressPriceTypeScoreDistance
Buttenhaugh Green, Elmswell £ 625,000BUY7 / 100.00 KM
Buttenhaugh Green, Elmswell £ 575,000BUY7 / 100.06 KM
Mulroy, Ashfield Road, Elmswell, Bury St Edmunds, Suffolk £ 550,000BUYUnknown0.16 KM
Rathmullen Elmswell Bury St Edmunds Suffolk, Ashfield Road, Bury St. Edmunds, Suffolk £ 550,000BUYUnknown0.18 KM
Ashfield Road, Elmswell £ 575,000BUYUnknown0.30 KM

Nearby Properties

AddressPriceDistance
1 Lyle Close £ 405,0000.27 KM
Hedgehogs £ 435,0000.28 KM
Tree View £ 420,0000.30 KM
Brent Knoll £ 362,5000.30 KM
Oriana £ 200,0000.30 KM