Holden Mill, Blackburn Road, Bolton
RE

Holden Mill, Blackburn Road, Bolton

By Redpath Leach Estate Agents

£ 152,000

Reviews

4 out of 5 stars

Redpath Leach Estate Agents says ..

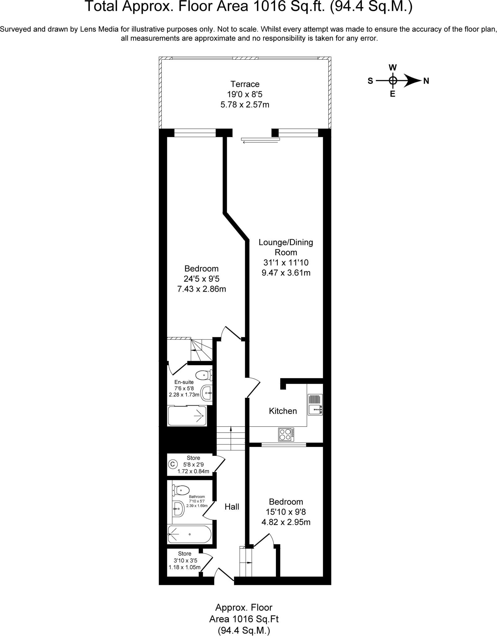
Exuding character and style in equal measure, this immaculately presented two bed, third floor apartment simply must be viewed to appreciate not only the generous levels of space, but also the thoughtful design, both of the property, but more generally, the development itself, forming part of an ...

Property Oracle says ..

The property is located in Astley Bridge, Bolton, and is an apartment in Holden Mill. Astley Bridge benefits from being relatively close to several primary schools with good Ofsted ratings, including St Paul’s Cofe Primary School (Outstanding) and The Oaks Primary School (Outstanding). There are also several train stations within a reasonable distance, providing access to the wider transport network. This contributes to a positive location score.

Based on the images provided, the apartment appears to be in excellent condition. It is modern, clean, and well-maintained. The fixtures and fittings look new or recently updated. There is no visible evidence of wear and tear or the need for repairs or renovations. This suggests a high condition score.

The listing does not provide information on the plot size or garden space. Therefore, no comment can be made on the land score.

The list price is £152,000. The average house price in the area is £193,979, and the average price per square foot is £230. While the provided data lacks the property’s square footage, the list price is significantly lower than the average price for the area. Considering the apparent excellent condition of the property and its convenient location, the list price could be considered reasonable, potentially representing good value for money. However, without the square footage, a definitive conclusion on price cannot be made.

Therefore, we give this property 8 / 10. *Disclaimer: This is our option and does constitute a recommendation or financial advice. Do your own research. *

Price
7
Condition
10
Location
8
Land
0
Bedrooms
2
Bathrooms
2
Sqft (est)
993.83
Lot (est)
1,016.00

The heatmap indicates the level of crime in the area. The color of the heatmap indicates the crime severity and recency.

Metrics Year-on-Year

Average area value
210,714.00 £
Decreased by 13.37 %
from 243,245.00 £
Est sale value
196,778.34 £
Increased by 8.20 %
from 181,870.89 £
Average area rental value
907.00 £/mo
Decreased by 9.21 %
from 999.00 £/mo
Est letting value
0.00 £/mo
from 0.00 £/mo
Est rental Yield
5.17 %
Increased by 4.87 %
from 4.93 %
Crime Rate
0.00 %
from 0.00 %

Agent Activity

  • Redpath Leach Estate Agents created the listing.

Nearby Schools

NameTypeOfstedDistance
High Lawn Primary SchoolCommunity SchoolGood0.45 KM
Holy Infant And St Anthony Rc Primary SchoolVoluntary Aided SchoolGood0.68 KM
St Paul'S Cofe Primary School, Astley BridgeAcademy ConverterOutstanding0.73 KM
The Oaks Primary SchoolCommunity SchoolOutstanding0.74 KM
Oldhams Start Well Link SiteChildren's Centre Linked Site0.74 KM

Images

Photo 1 Photo 2 Photo 3 Photo 4 Photo 5 Photo 6 Photo 7 Photo 8 Photo 9 Photo 10 Photo 11 Photo 12 Photo 13 Photo 14 Photo 15 Photo 16 Photo 17 Photo 18 Photo 19 Photo 20 Photo 21 Photo 22 Photo 23 Photo 24 Photo 25 Photo 26 Photo 27 Photo 28 Photo 29 Photo 30 Photo 31 Photo 32 Photo 33 Photo 34 Photo 35 Photo 36 Photo 37 Photo 38 Photo 39 Photo 40 Photo 41 Photo 42 Photo 43 Photo 44 Photo 45 Photo 46 Photo 47

Nearby Streets

NameAverage PriceAverage SqftDistance
Back Howarden Street £ 160,16700.00 KM
Durban Road £ 000.00 KM
Back Rainshaw Street £ 160,00000.00 KM
Back Primrose Street £ 000.00 KM
Back Ivy Bank Road £ 000.00 KM

Nearby Transport

NameNLCTLCDistance
Hall-I'-Th'-Wood2572HID2.22 KM
Bromley Cross (Lancs)2697BMC2.46 KM
Bolton2599BON3.55 KM
Entwistle2747ENT5.91 KM
Moses Gate2606MSS6.45 KM

Nearby Listings

AddressPriceTypeScoreDistance
Holden Mill, Blackburn Road, Bolton £ 152,000BUY8 / 100.00 KM
Holden Mill, Blackburn Road, Bolton £ 115,000BUY5 / 100.00 KM
Holden Mill, Blackburn Road, Bolton £ 170,000BUY8 / 100.00 KM
Holden Mill, Blackburn Road, Bolton £ 100,000BUY6 / 100.00 KM
Holden Mill, Blackburn Road, Bolton £ 150,000BUY7 / 100.00 KM

Nearby Properties

AddressPriceDistance
5 Hesketh Avenue £ 142,5000.09 KM
753 Blackburn Road £ 180,0000.13 KM
751 Blackburn Road £ 217,5000.13 KM
4 Ringley Grove £ 185,0000.15 KM
1 Ringley Grove £ 265,0000.15 KM