Kew Bridge Road, Brentford, TW8
By Stirling Ackroyd
£ 425,000
Reviews
3 out of 5 stars
Stirling Ackroyd says ..
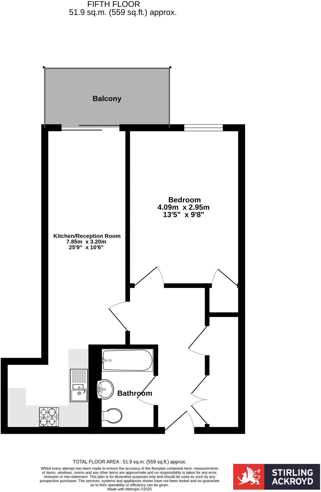
A spacious one bedroom apartment for sale positioned on the fifth floor of this sought-after riverside development located close to Kew Bridge. The apartment comprises a very bright semi open-plan kitchen/dining/living room with floor to ceiling double doors and access onto the private...
Property Oracle says ..
This one-bedroom apartment on Kew Bridge Road, Brentford, offers a convenient location with access to transportation, schools, and local amenities. The property is in reasonable condition, but some modernisation would enhance its appeal. While the apartment lacks a private garden, it benefits from communal gardens and a balcony with views. The price is competitive compared to other properties in the area, making it an attractive option for first-time buyers or investors. The building also offers a gym and sauna.
Therefore, we give this property 7 / 10. *Disclaimer: This is our option and does constitute a recommendation or financial advice. Do your own research. *
- Price
- 7
- Condition
- 6
- Location
- 8
- Land
- 7
- Bedrooms
- 1
- Bathrooms
- 1
The heatmap indicates the level of crime in the area. The color of the heatmap indicates the crime severity and recency.
Metrics Year-on-Year
- Average area value
- 457,259.00 £Decreased by 25.19 %
- Average area rental value
- 1,825.00 £/moDecreased by 10.23 %
- Est rental Yield
- 4.79 %Increased by 20.05 %
- Crime Rate
- 4.00 %Unchanged by 0.00 %
Agent Activity
Stirling Ackroyd created the listing.
Nearby Schools
| Name | Type | Ofsted | Distance |
|---|---|---|---|
| Kew Green Preparatory School | Other Independent School | 0.27 KM | |
| Kew House | Other Independent School | 0.49 KM | |
| Green Dragon Primary School | Community School | Good | 0.66 KM |
| Brentford Children'S Centre | Children's Centre | 0.70 KM | |
| Lionel Primary School | Community School | Outstanding | 0.84 KM |
Images
Nearby Streets
| Name | Average Price | Average Sqft | Distance |
|---|---|---|---|
| Platinum Jubilee Arch | £ 629,950 | 0 | 0.00 KM |
| Bush Road | £ 0 | 0 | 0.00 KM |
| High Street | £ 447,500 | 0 | 0.00 KM |
| Lionel Road South | £ 0 | 0 | 0.00 KM |
| Kew Road | £ 0 | 0 | 0.00 KM |
Nearby Transport
| Name | NLC | TLC | Distance |
|---|---|---|---|
| Kew Bridge | 5593 | KWB | 0.42 KM |
| Kew Gardens | 5594 | KWG | 1.38 KM |
| Gunnersbury | 5588 | GUN | 1.74 KM |
| Brentford | 5552 | BFD | 2.10 KM |
| North Sheen | 5601 | NSH | 2.58 KM |
Nearby Listings
| Address | Price | Type | Score | Distance |
|---|---|---|---|---|
| Kew Bridge Road, Brentford, TW8 | £ 425,000 | BUY | 7 / 10 | 0.00 KM |
| Kew Bridge Road, Brentford, TW8 | £ 375,000 | BUY | 7 / 10 | 0.00 KM |
| Regatta Point, 38 Kew Bridge Road, TW8 | £ 570,000 | BUY | 7 / 10 | 0.00 KM |
| Regatta Point, 38 Kew Bridge Road, TW8 | £ 1,250,000 | BUY | 5 / 10 | 0.00 KM |
| Kew Bridge Road, Brentford | £ 600,000 | BUY | 7 / 10 | 0.00 KM |
Nearby Properties
| Address | Price | Distance |
|---|---|---|
| 18 Temeraire Place | £ 370,000 | 0.21 KM |
| 9 Temeraire Place | £ 299,995 | 0.21 KM |
| 8 Temeraire Place | £ 435,000 | 0.21 KM |
| 10 Temeraire Place | £ 249,995 | 0.21 KM |
| 25 Temeraire Place | £ 275,000 | 0.21 KM |