Battle Road, Hailsham
Stevens & Carter logo

Battle Road, Hailsham

By Stevens & Carter

£ 450,000

Reviews

3 out of 5 stars

Stevens & Carter says ..

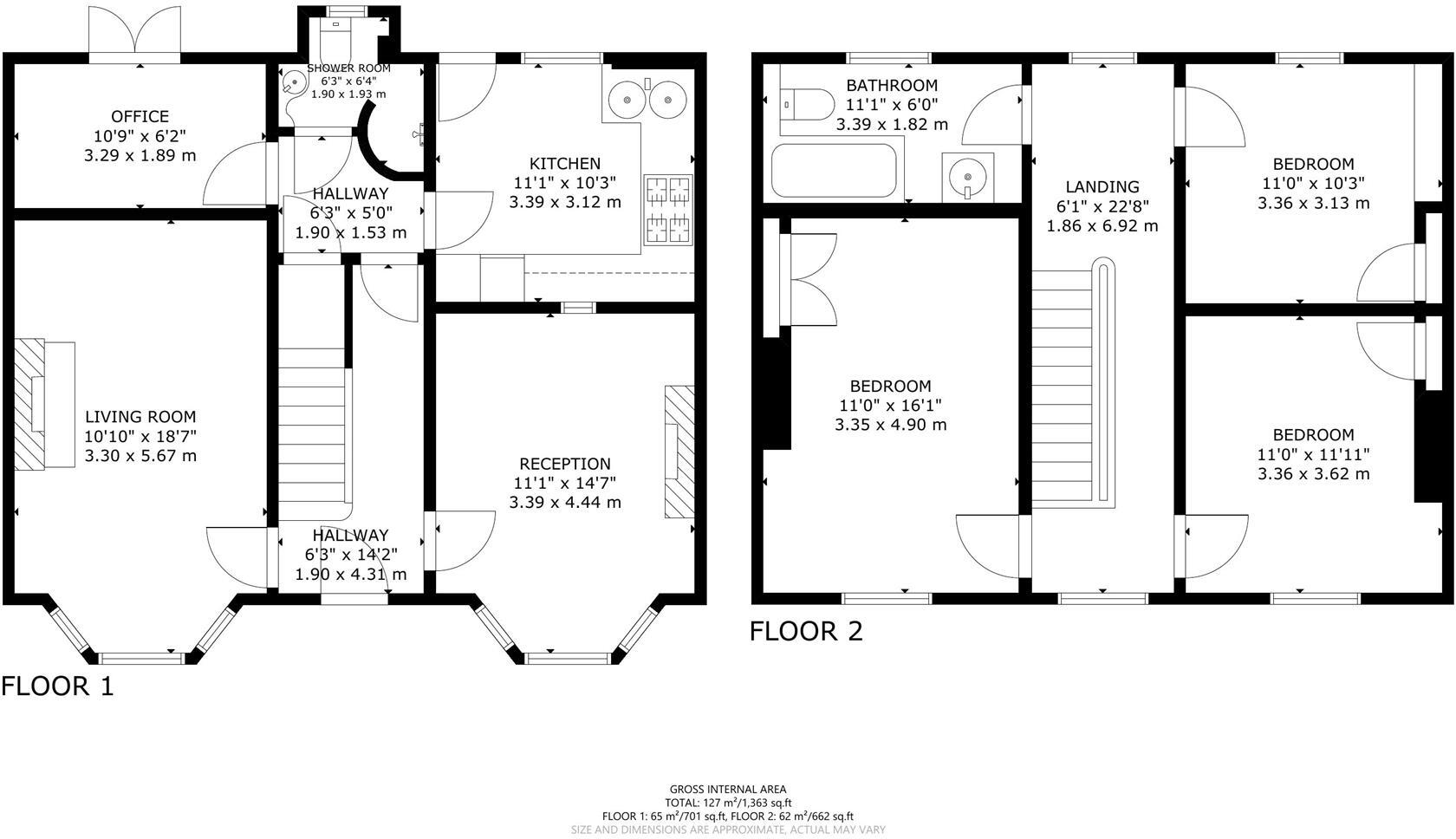
3D Tour I Detached Family Home I Popular Location I Carriage Driveway I Three Reception Rooms I Kitchen I Three Bedrooms I Two Bathrooms I Ample Off Road Parking I Garage I Front & Rear Gardens I Stevens and Carter are pleased to bring to the market this period double fronted family hom...

Property Oracle says ..

This three-bedroom, two-bathroom detached house located on Battle Road in Hailsham presents a mixed bag. The property’s biggest strengths lie in its location and relatively large garden. The location offers convenience being near schools including Hailsham Community College and what appears to be a good-sized garden adds significant appeal, especially to families. The property is a period home which will be of considerable appeal to many buyers. Internally the property appears in good structural order and has plenty of natural light but does show signs of needing modernisation. The kitchen appears relatively up to date but the remainder of the property is in need of modernisation. The property would greatly benefit from renovation and upgrading, potentially increasing its market value significantly. However, in its current state, it remains a habitable property. The asking price of £450,000 appears to be reasonably competitive with similarly sized properties in the surrounding area. However, further information would be required to confirm value. Buyers should budget for potential renovation costs if they wish to bring the property up to modern standards.

Therefore, we give this property 6 / 10. *Disclaimer: This is our option and does constitute a recommendation or financial advice. Do your own research. *

Price
7
Condition
6
Location
7
Land
7
Bedrooms
3
Bathrooms
2
Sqft (est)
1,363.00

The heatmap indicates the level of crime in the area. The color of the heatmap indicates the crime severity and recency.

Metrics Year-on-Year

Average area value
1,332,494.00 £
Increased by 19.68 %
from 1,113,335.00 £
Est sale value
1,902,748.00 £
Increased by 164.90 %
from 718,301.00 £
Average area rental value
1,800.00 £/mo
Decreased by 54.11 %
from 3,922.00 £/mo
Est letting value
1,363.00 £/mo
Unchanged by 0.00 %
from 1,363.00 £/mo
Est rental Yield
1.62 %
Decreased by 61.70 %
from 4.23 %
Crime Rate
4.00 %
Unchanged by 0.00 %
from 4.00 %

Agent Activity

  • Stevens & Carter created the listing.

Nearby Schools

NameTypeOfstedDistance
The Ropemakers' AcademyFree Schools Special0.32 KM
Hailsham Community CollegeAcademy ConverterGood0.33 KM
White House AcademyAcademy Sponsor LedGood0.67 KM
Hawkes Farm AcademyAcademy Sponsor LedGood1.03 KM
Grovelands Community Primary SchoolFoundation SchoolGood1.16 KM

Images

IMG_9531.jpg IMG_9439.jpg IMG_9399.jpg IMG_9424.jpg IMG_9469.jpg IMG_9519.jpg IMG_9489.jpg IMG_9384.jpg IMG_9434.jpg IMG_9524.jpg IMG_9449.jpg IMG_9444.jpg IMG_9504.jpg IMG_9419.jpg IMG_9459.jpg IMG_9429.jpg IMG_9454.jpg IMG_9530.jpg IMG_9494.jpg IMG_9409.jpg IMG_9528.jpg IMG_9389.jpg IMG_9394.jpg IMG_9404.jpg IMG_9525.jpg IMG_9414.jpg IMG_9474.jpg IMG_9499.jpg IMG_9509.jpg IMG_9523.jpg IMG_9532.jpg IMG_9479.jpg

Nearby Streets

NameAverage PriceAverage SqftDistance
A295 £ 000.00 KM
Carriers Path £ 000.00 KM
Vicarage Field £ 115,00000.00 KM
Nursery Close £ 000.00 KM
String Walk £ 115,00000.00 KM

Nearby Transport

NameNLCTLCDistance
Polegate5455PLG5.42 KM
Hampden Park (Sussex)5450HMD8.33 KM
Pevensey And Westham5461PEV9.40 KM

Nearby Listings

AddressPriceTypeScoreDistance
Battle Crescent, Hailsham, BN27 £ 350,000BUY6 / 100.09 KM
Battle Road, Hailsham, BN27 £ 485,000BUY7 / 100.10 KM
Battle Crescent, Hailsham £ 280,000BUYUnknown0.11 KM
Battle Crescent, Hailsham, BN27 £ 285,000BUYUnknown0.18 KM
Battle Crescent, Hailsham, BN27 £ 335,000BUY6 / 100.18 KM

Nearby Properties

AddressPriceDistance
17 Battle Road £ 240,0000.11 KM
60a Battle Road £ 150,0000.11 KM
Appleloft £ 245,0000.11 KM
60 Battle Road £ 345,0000.11 KM
11 Battle Road £ 245,0000.13 KM