The Briars, West Kingsdown, TN15
By Key Property Consultants
£ 585,000
Reviews
3 out of 5 stars
Key Property Consultants says ..
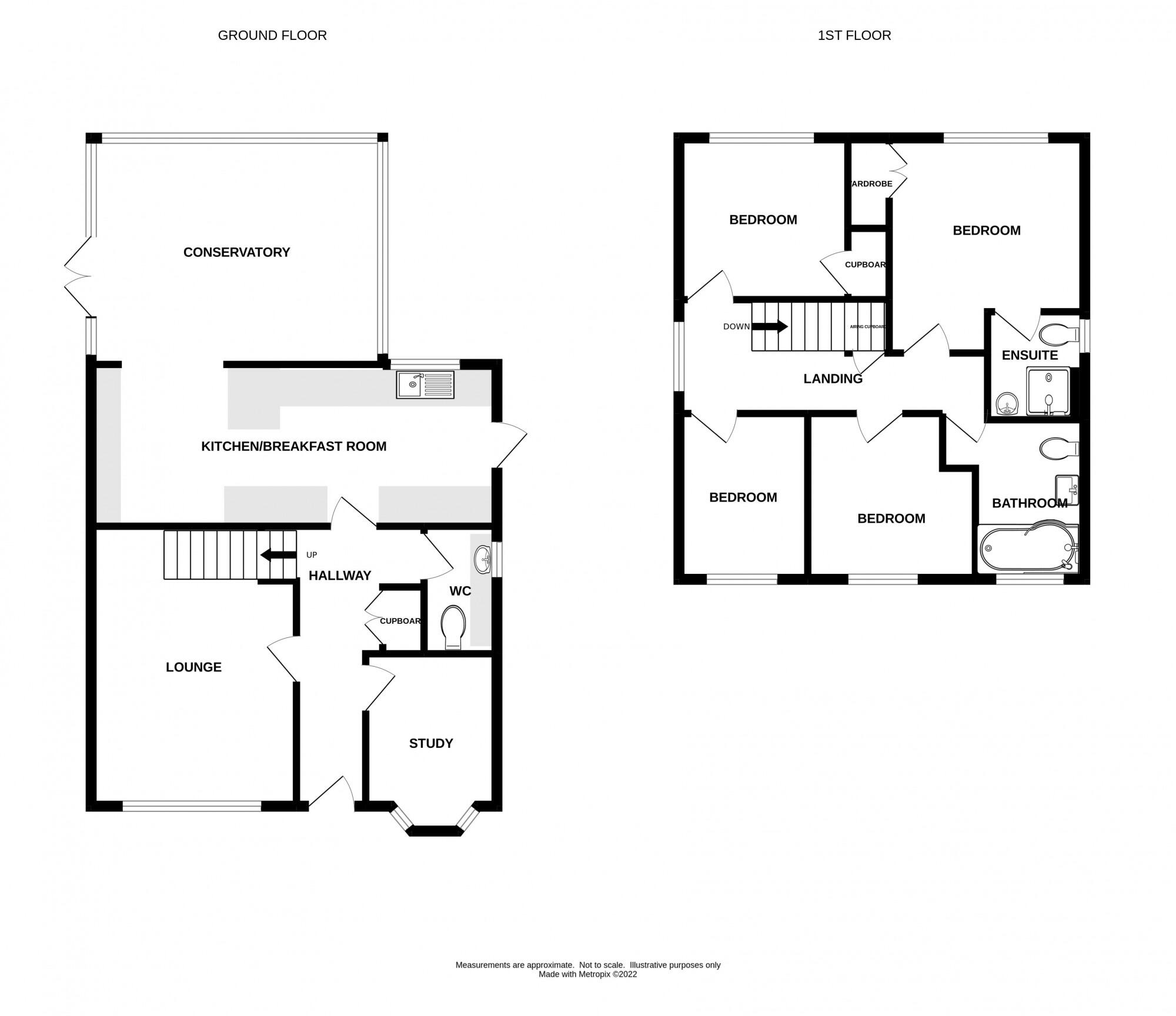
EXCLUSIVE OPPORTUNITY TO BUY A FOUR BEDROOM DETACHED FAMILY HOUSE WITH A GREAT SIZE REAR GARDEN AND SUMMERHOUSE/CHALET. THERE IS A DRIVEWAY & GARAGE - THE PROPERTY ALSO HAS PLANNIGN PERMISION FOR A REAR AND FIRST FLOOR EXTENTION. NO ONWARD CHAIN!
Property Oracle says ..
This is a detached property in West Kingsdown, Kent, featuring four bedrooms and two bathrooms. The interior is modern and well-maintained, with a recently updated kitchen and bathrooms. The property benefits from a garden with a shed, providing outdoor space. The location offers a balance of suburban tranquility and accessibility to nearby amenities and transportation. The asking price of £585,000 appears reasonable given the property’s size, condition, and location.
Therefore, we give this property 7 / 10. *Disclaimer: This is our option and does constitute a recommendation or financial advice. Do your own research. *
- Price
- 7
- Condition
- 8
- Location
- 7
- Land
- 7
- Bedrooms
- 4
- Bathrooms
- 2
- Sqft (est)
- 1,496.00
The heatmap indicates the level of crime in the area. The color of the heatmap indicates the crime severity and recency.
Metrics Year-on-Year
- Average area value
- 534,929.00 £Decreased by 0.63 %
- Est sale value
- 758,472.00 £Increased by 44.86 %
- Average area rental value
- 1,300.00 £/moDecreased by 48.68 %
- Est letting value
- 1,496.00 £/moUnchanged by 0.00 %
- Est rental Yield
- 2.92 %Decreased by 48.32 %
- Crime Rate
- 22.00 %Unchanged by 0.00 %
Agent Activity
Key Property Consultants created the listing.
Nearby Schools
| Name | Type | Ofsted | Distance |
|---|---|---|---|
| West Kingsdown Children'S Centre | Children's Centre | 1.95 KM | |
| West Kingsdown Cofe Vc Primary School | Voluntary Controlled School | Good | 1.95 KM |
| Birtley House Independent School | Other Independent Special School | Outstanding | 2.09 KM |
| Fawkham Church Of England Voluntary Controlled Primary School | Voluntary Controlled School | Good | 4.48 KM |
| The Anthony Roper Primary School | Foundation School | Good | 4.65 KM |
Images
Nearby Streets
| Name | Average Price | Average Sqft | Distance |
|---|---|---|---|
| Carter Avenue | £ 0 | 0 | 0.00 KM |
| Kaysland Park | £ 140,000 | 0 | 0.00 KM |
| Wood View Close | £ 575,000 | 0 | 0.00 KM |
| Blackthorn Close | £ 0 | 0 | 0.00 KM |
| The Grove | £ 863,500 | 0 | 0.00 KM |
Nearby Transport
| Name | NLC | TLC | Distance |
|---|---|---|---|
| Eynsford | 5065 | EYN | 5.45 KM |
| Kemsing | 5079 | KMS | 5.77 KM |
| Farningham Road | 5105 | FNR | 6.14 KM |
| Shoreham (Kent) | 5074 | SEH | 7.18 KM |
| Otford | 5071 | OTF | 7.25 KM |
Nearby Listings
| Address | Price | Type | Score | Distance |
|---|---|---|---|---|
| The Briars, West Kingsdown, TN15 | £ 585,000 | BUY | 7 / 10 | 0.00 KM |
| The Briars, West Kingsdown, Sevenoaks, Kent, TN15 | £ 300,000 | BUY | 7 / 10 | 0.01 KM |
| West Kingsdown, TN15 | £ 375,000 | BUY | 7 / 10 | 0.02 KM |
| The Briars, West Kingsdown, Sevenoaks | £ 600,000 | BUY | 7 / 10 | 0.04 KM |
| The Briars, West Kingsdown, Sevenoaks, Kent, TN15 | £ 325,000 | BUY | 7 / 10 | 0.04 KM |
Nearby Properties
| Address | Price | Distance |
|---|---|---|
| 23 The Briars | £ 310,000 | 0.03 KM |
| 22 The Briars | £ 320,000 | 0.03 KM |
| 16 The Briars | £ 355,000 | 0.03 KM |
| 61 The Briars | £ 400,000 | 0.03 KM |
| 51 The Briars | £ 285,000 | 0.03 KM |