Mooved says ..
Mooved are delighted to present this exceptionally spacious two-bedroom mid-terrace property located on Turner Street in Leigh, WN7
Property Oracle says ..
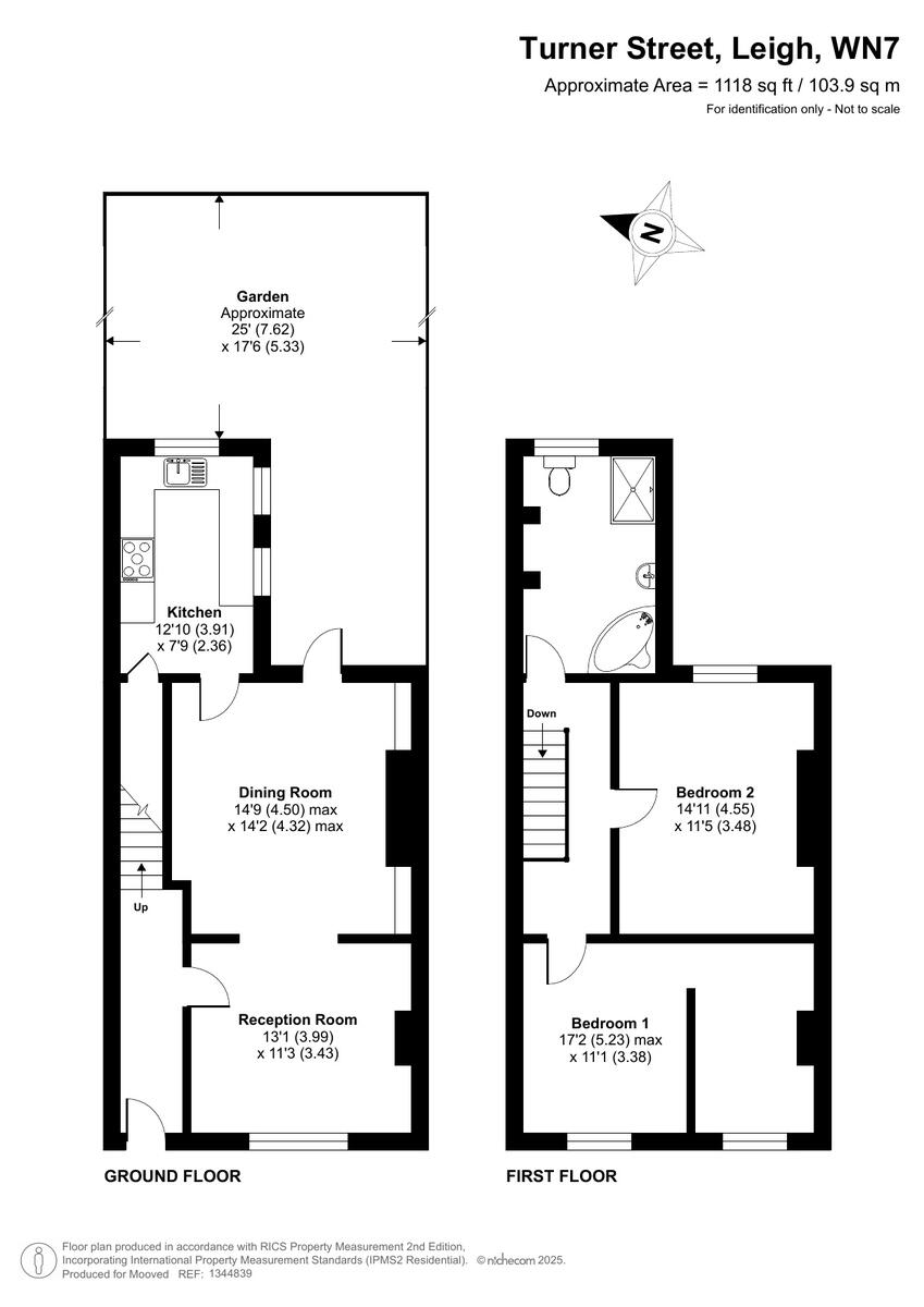
This is a two-bedroom terraced house located on Turner Street in Leigh South, Wigan. The property offers 1,256.79 sqft of living space and includes one bathroom. While the interior features some modern updates, other areas could benefit from cosmetic improvements. The property includes a rear garden, providing outdoor space. The location offers proximity to schools and transportation, making it suitable for families or commuters. The list price of £130,000 appears reasonable given the property’s size, location, and condition. The property is of traditional construction.
Therefore, we give this property 6 / 10. *Disclaimer: This is our option and does constitute a recommendation or financial advice. Do your own research. *
- Price
- 7
- Condition
- 5
- Location
- 6
- Land
- 6
- Bedrooms
- 2
- Bathrooms
- 1
- Sqft (est)
- 1,256.79
The heatmap indicates the level of crime in the area. The color of the heatmap indicates the crime severity and recency.
Metrics Year-on-Year
- Average area value
- 256,764.00 £Increased by 20.39 %
- Est sale value
- 428,565.39 £Increased by 67.16 %
- Average area rental value
- 848.00 £/moDecreased by 3.85 %
- Est letting value
- 1,256.79 £/mo
- Est rental Yield
- 3.96 %Decreased by 20.16 %
- Crime Rate
- 13.00 %Unchanged by 0.00 %
Agent Activity
Mooved created the listing.
Nearby Schools
| Name | Type | Ofsted | Distance |
|---|---|---|---|
| St Joseph'S Catholic Primary School Leigh | Voluntary Aided School | Good | 0.14 KM |
| Bedford And Higher Folds Children'S Centre | Children's Centre Linked Site | 0.76 KM | |
| St Thomas' Cofe Primary School, Leigh | Voluntary Aided School | Good | 0.79 KM |
| Leigh Cofe Primary School | Academy Sponsor Led | 1.22 KM | |
| Christ Church Cofe Primary School, Pennington | Voluntary Aided School | Good | 1.27 KM |
Images
Nearby Streets
| Name | Average Price | Average Sqft | Distance |
|---|---|---|---|
| Ramsey Street | £ 300,000 | 0 | 0.00 KM |
| Sidney Street | £ 190,000 | 0 | 0.00 KM |
| Tweed Street | £ 99,950 | 0 | 0.00 KM |
| Princess Street | £ 0 | 0 | 0.00 KM |
| Henry Street | £ 0 | 0 | 0.00 KM |
Nearby Transport
| Name | NLC | TLC | Distance |
|---|---|---|---|
| Hag Fold | 2585 | HGF | 4.64 KM |
| Atherton | 2584 | ATN | 5.04 KM |
| Daisy Hill | 2777 | DSY | 5.10 KM |
| Westhoughton | 2619 | WHG | 7.04 KM |
| Lostock | 2598 | LOT | 8.88 KM |
Nearby Listings
| Address | Price | Type | Score | Distance |
|---|---|---|---|---|
| Turner Street, Leigh, WN7 2 | £ 130,000 | BUY | 6 / 10 | 0.00 KM |
| Turner Street, Leigh, WN7 | £ 150,000 | BUY | 6 / 10 | 0.04 KM |
| Size House Place, Leigh | £ 170,000 | BUY | 7 / 10 | 0.10 KM |
| Duke Street, Leigh | £ 170,000 | BUY | 7 / 10 | 0.16 KM |
| Guest Street, Leigh, Greater Manchester, WN7 | £ 135,000 | BUY | 7 / 10 | 0.16 KM |
Nearby Properties
| Address | Price | Distance |
|---|---|---|
| 26 Turner Street | £ 94,950 | 0.04 KM |
| 23 Turner Street | £ 65,000 | 0.04 KM |
| 33 Turner Street | £ 6,136,000 | 0.04 KM |
| 34 Turner Street | £ 67,000 | 0.04 KM |
| 31 Turner Street | £ 60,000 | 0.04 KM |