The Waldrons, Rowplatt Lane, Felbridge, RH19
By Trilogy
£ 535,000
Reviews
3 out of 5 stars
Trilogy says ..
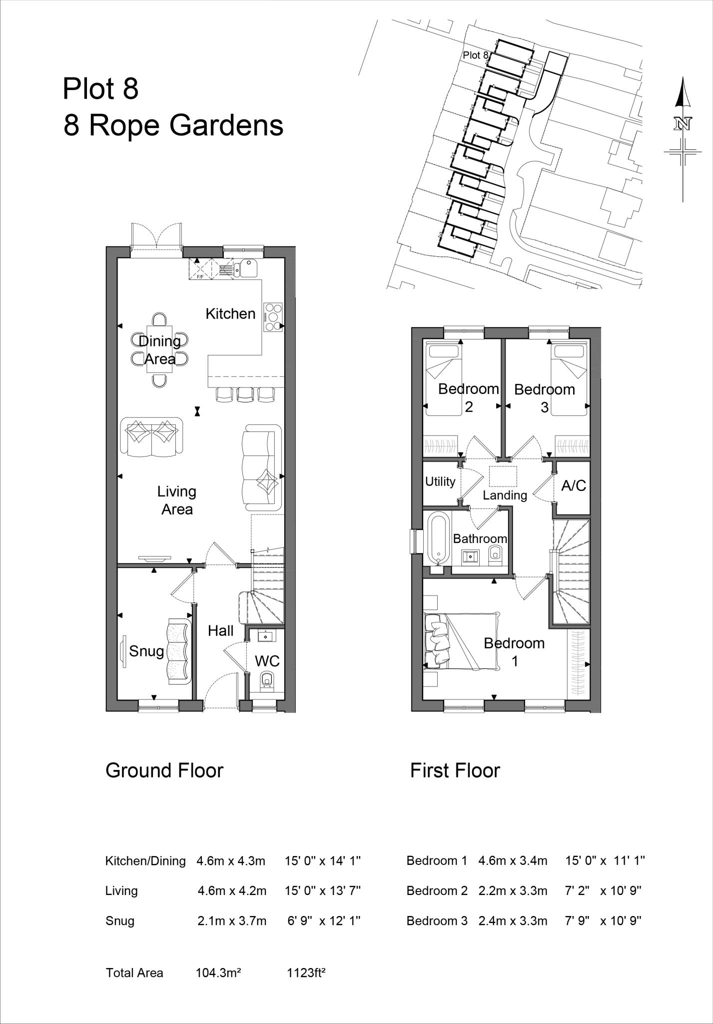
Coming Soon – Register Your Details in Advance of the Formal Launch! An exceptionally well designed and meticulously specified three bedroom, two bathroom semi-detached family home, located in a small and exclusive development. The house is currently under construction and due fo...
Property Oracle says ..
This 3-bedroom, 1-bathroom property in Felbridge, Surrey, presents a modern and well-finished interior. The images showcase a stylish and contemporary design with a focus on neutral tones and high-quality finishes. The kitchen and bathrooms are particularly impressive, exhibiting a clean, modern aesthetic that is likely to be appealing to a range of buyers. The location, while being in a village setting, offers relative proximity to good schools, with Felbridge Primary School being within walking distance. Public transportation is available but may require a short drive to East Grinstead railway station. A significant drawback is the lack of information regarding the property’s plot size which is listed as 0.00 sqft. This suggests the property may not have a substantial garden, a feature highly valued by some buyers in this market. The lack of detailed comparables makes it difficult to accurately assess the price per square foot and overall value for money. However, the presented price seems relatively competitive within the local market. Overall, the property represents a convenient and well-presented home that could be well-suited to a young family or individual without the need for a significant amount of outside space. The lack of details about plot size and garden are essential aspects requiring clarification. Potential buyers should be prepared to do more detailed research to ascertain the true value for money.
Therefore, we give this property 6 / 10. *Disclaimer: This is our option and does constitute a recommendation or financial advice. Do your own research. *
- Price
- 7
- Condition
- 9
- Location
- 7
- Land
- 2
- Bedrooms
- 3
- Bathrooms
- 1
- Sqft (est)
- 1,122.68
The heatmap indicates the level of crime in the area. The color of the heatmap indicates the crime severity and recency.
Metrics Year-on-Year
- Average area value
- 383,000.00 £Increased by 12.20 %
- Est sale value
- 387,324.60 £Increased by 30.19 %
- Average area rental value
- 764.00 £/moDecreased by 19.32 %
- Est letting value
- 0.00 £/mo
- Est rental Yield
- 2.39 %Decreased by 28.23 %
- Crime Rate
- 35.00 %Unchanged by 0.00 %
Agent Activity
Trilogy created the listing.
Nearby Schools
| Name | Type | Ofsted | Distance |
|---|---|---|---|
| Felbridge Primary School | Community School | Good | 0.82 KM |
| Imberhorne School | Community School | Good | 2.12 KM |
| Crawley Down Village Cofe | Voluntary Controlled School | Good | 2.85 KM |
| Halsford Park Primary School | Academy Converter | Good | 3.04 KM |
| St Peter'S Catholic Primary School | Voluntary Aided School | Good | 3.09 KM |
Images
Nearby Streets
| Name | Average Price | Average Sqft | Distance |
|---|---|---|---|
| Mortain Road | £ 425,000 | 0 | 0.00 KM |
| Birch Grove | £ 700,000 | 0 | 0.00 KM |
| Sinden Heath | £ 0 | 0 | 0.00 KM |
| Birches View | £ 925,000 | 0 | 0.00 KM |
| Whittington College | £ 0 | 0 | 0.00 KM |
Nearby Transport
| Name | NLC | TLC | Distance |
|---|---|---|---|
| East Grinstead | 5486 | EGR | 4.16 KM |
| Dormans | 5413 | DMS | 5.71 KM |
| Lingfield | 5369 | LFD | 6.57 KM |
| Godstone | 5474 | GDN | 8.80 KM |
Nearby Listings
| Address | Price | Type | Score | Distance |
|---|---|---|---|---|
| The Waldrons, Rowplatt Lane, Felbridge, RH19 | £ 665,000 | BUY | 7 / 10 | 0.00 KM |
| The Waldrons, Rowplatt Lane, Felbridge, RH19 | £ 535,000 | BUY | 6 / 10 | 0.00 KM |
| The Waldrons, Rowplatt Lane, Felbridge, RH19 | £ 650,000 | BUY | 7 / 10 | 0.00 KM |
| The Waldrons, Rowplatt Lane, Felbridge, RH19 | £ 699,950 | BUY | 7 / 10 | 0.00 KM |
| Rowplatt Lane, Felbridge, East Grinstead, RH19 2PA | £ 525,000 | BUY | 7 / 10 | 0.01 KM |
Nearby Properties
| Address | Price | Distance |
|---|---|---|
| 24a Rowplatt Lane | £ 360,000 | 0.01 KM |
| 12 Rowplatt Lane | £ 460,000 | 0.01 KM |
| Glentrool 23 Rowplatt Lane | £ 132,000 | 0.01 KM |
| 8 Rowplatt Lane | £ 390,000 | 0.01 KM |
| 27 Rowplatt Lane | £ 320,000 | 0.01 KM |