Mortemore Mackay says ..
Nestled in the serene surroundings of Newsholme Drive, London, this delightful first-floor retirement flat is designed for those aged 65 and over, offering a perfect blend of comfort and convenience. The property features two well-proportioned bedrooms, one of which boasts a spacious walk-in ward...
Property Oracle says ..
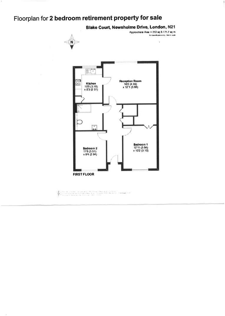
This property is a 2 bedroom retirement property located in Southgate, Enfield. The property benefits from being close to several highly-rated primary schools, including Eversley Primary School (Outstanding) and Highlands School (Outstanding), both within a 1km radius. There are also several train stations within a reasonable distance, providing good transport links. The property itself appears to be in good condition, with modern fixtures and fittings. However, it lacks outdoor space, which is a significant drawback. The list price of £450,000 is slightly below the average price for the area (£468,742), but the smaller size (772 sqft compared to the area average of 965 sqft) and lack of land should be considered. Nearby comparable properties show a range of prices, suggesting the list price is within the market range for similar properties in the area, although further analysis of the specific details of those properties would be needed to make a precise comparison.
Therefore, we give this property 6 / 10. *Disclaimer: This is our option and does constitute a recommendation or financial advice. Do your own research. *
- Price
- 7
- Condition
- 9
- Location
- 8
- Land
- 1
- Bedrooms
- 2
- Bathrooms
- 1
- Sqft (est)
- 772.00
The heatmap indicates the level of crime in the area. The color of the heatmap indicates the crime severity and recency.
Metrics Year-on-Year
- Average area value
- 488,748.00 £Decreased by 5.95 %
- Est sale value
- 384,456.00 £Decreased by 4.60 %
- Average area rental value
- 1,587.00 £/moDecreased by 5.76 %
- Est letting value
- 772.00 £/moUnchanged by 0.00 %
- Est rental Yield
- 3.90 %Increased by 0.26 %
- Crime Rate
- 13.00 %Unchanged by 0.00 %
Agent Activity
Mortemore Mackay created the listing.
Nearby Schools
| Name | Type | Ofsted | Distance |
|---|---|---|---|
| Eversley Primary School | Community School | Outstanding | 0.19 KM |
| Grange Park Primary School | Academy Converter | 0.59 KM | |
| Highlands School | Community School | Outstanding | 0.69 KM |
| Merryhills Primary School | Community School | Good | 0.86 KM |
| Keble Preparatory School | Other Independent School | 1.46 KM |
Images
Nearby Streets
| Name | Average Price | Average Sqft | Distance |
|---|---|---|---|
| Wynsmere Court | £ 0 | 0 | 0.00 KM |
| Tarn Bank | £ 785,000 | 0 | 0.00 KM |
| Springbank | £ 389,995 | 0 | 0.00 KM |
| Green Dragon Lane | £ 999,995 | 0 | 0.00 KM |
| Hadley Close | £ 950,000 | 0 | 0.00 KM |
Nearby Transport
| Name | NLC | TLC | Distance |
|---|---|---|---|
| Grange Park | 6029 | GPK | 1.72 KM |
| Winchmore Hill | 6024 | WIH | 1.77 KM |
| Enfield Chase | 6010 | ENC | 2.63 KM |
| Gordon Hill | 6028 | GDH | 2.90 KM |
| Palmers Green | 6021 | PAL | 2.93 KM |
Nearby Listings
| Address | Price | Type | Score | Distance |
|---|---|---|---|---|
| Newsholme Drive, London, UK, N21 1SQ | £ 270,000 | BUY | Unknown | 0.00 KM |
| Newsholme Drive, London, UK, N21 1SQ | £ 200,000 | BUY | Unknown | 0.00 KM |
| Newsholme Drive, London | £ 450,000 | BUY | 6 / 10 | 0.00 KM |
| Newsholme Drive, London | £ 350,000 | BUY | Unknown | 0.00 KM |
| Ballentyne Court, Winchmore Hill, N21 | £ 375,000 | BUY | 5 / 10 | 0.02 KM |
Nearby Properties
| Address | Price | Distance |
|---|---|---|
| 22 Treves Close | £ 312,000 | 0.10 KM |
| 16 Treves Close | £ 217,000 | 0.10 KM |
| 18 Treves Close | £ 54,000 | 0.10 KM |
| 20 Treves Close | £ 275,000 | 0.10 KM |
| 32 Treves Close | £ 134,950 | 0.10 KM |