50-52 Calverley Road, Royal Tunbridge Wells, Kent, TN1 2TD
By Auction House London
£ 375,000
Reviews
2 out of 5 stars
Auction House London says ..
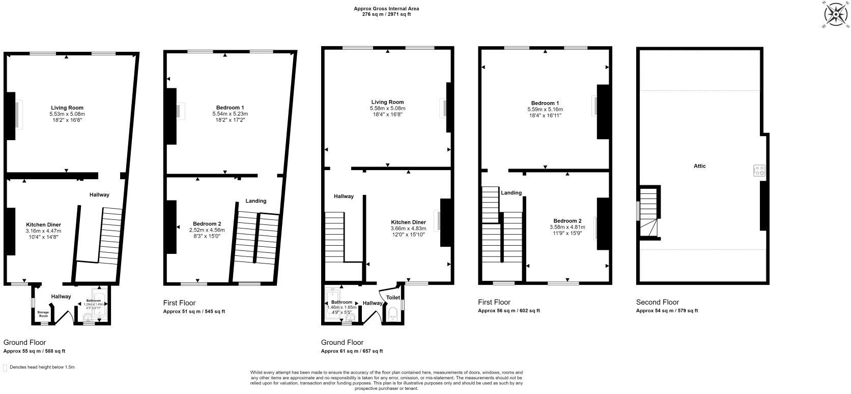
Withdrawn **For Sale By Public Auction 3rd July 2025 10:00 AM To inspect the legal documents for this property go to our website to download the legal pack** A Redevelopment Opportunity Comprising a Substantial Mid Terrace Building with a Ground Floor Retail Unit (...
Property Oracle says ..
Therefore, we give this property 5 / 10. *Disclaimer: This is our option and does constitute a recommendation or financial advice. Do your own research. *
- Price
- 7
- Condition
- 2
- Location
- 8
- Land
- 0
- Bedrooms
- 0
- Bathrooms
- 0
The heatmap indicates the level of crime in the area. The color of the heatmap indicates the crime severity and recency.
Metrics Year-on-Year
- Average area value
- 339,299.00 £Increased by 1.34 %
- Average area rental value
- 1,364.00 £/moIncreased by 34.92 %
- Est rental Yield
- 4.82 %Increased by 33.15 %
- Crime Rate
- 53.00 %Unchanged by 0.00 %
from 334,823.00 £
from 1,011.00 £/mo
from 3.62 %
from 53.00 %
Agent Activity
Auction House London created the listing.
Nearby Schools
| Name | Type | Ofsted | Distance |
|---|---|---|---|
| The Wells Free School | Free Schools | Good | 0.64 KM |
| St Barnabas Cofe Va Primary School | Voluntary Aided School | Good | 0.81 KM |
| Claremont Primary School | Community School | Outstanding | 0.92 KM |
| St James' Church Of England Voluntary Aided Primary School | Voluntary Aided School | Outstanding | 0.99 KM |
| St Peter'S Church Of England Primary School | Voluntary Controlled School | Outstanding | 1.05 KM |
Images
Nearby Streets
| Name | Average Price | Average Sqft | Distance |
|---|---|---|---|
| Meadow Road | £ 0 | 0 | 0.00 KM |
| Meadow Road | £ 0 | 0 | 0.00 KM |
| Victoria Road | £ 0 | 0 | 0.00 KM |
| Belgrave Road | £ 260,000 | 0 | 0.00 KM |
| Crescent Road | £ 516,250 | 0 | 0.00 KM |
Nearby Transport
| Name | NLC | TLC | Distance |
|---|---|---|---|
| Tunbridge Wells | 5230 | TBW | 0.51 KM |
| High Brooms | 5235 | HIB | 2.16 KM |
| Frant | 5218 | FRT | 4.61 KM |
| Tonbridge | 5229 | TON | 6.43 KM |
| Wadhurst | 5231 | WAD | 8.54 KM |
Nearby Listings
| Address | Price | Type | Score | Distance |
|---|---|---|---|---|
| 50-52 Calverley Road, Royal Tunbridge Wells, Kent, TN1 2TD | £ 375,000 | BUY | 5 / 10 | 0.00 KM |
| Newton Road, Tunbridge Wells, TN1 | £ 279,950 | BUY | Unknown | 0.04 KM |
| Newton Lofts, 46 Newton Road, Tunbridge Wells, Kent, TN1 | £ 399,000 | BUY | 6 / 10 | 0.04 KM |
| Monson Colonnade, Tunbridge Wells, TN1 | £ 150,000 | BUY | Unknown | 0.05 KM |
| Newton Road, Tunbridge Wells | £ 430,000 | BUY | Unknown | 0.07 KM |
Nearby Properties
| Address | Price | Distance |
|---|---|---|
| 24 Newton Road | £ 317,500 | 0.05 KM |
| 34 Newton Road | £ 322,500 | 0.05 KM |
| 18 Newton Road | £ 295,000 | 0.07 KM |
| 40 Newton Road | £ 67,000 | 0.07 KM |
| 26 Newton Road | £ 315,000 | 0.07 KM |