PL
Hoole Road, Hoole
By Platinum Independent Estate Agents
£ 425,000
Reviews
3 out of 5 stars
Platinum Independent Estate Agents says ..
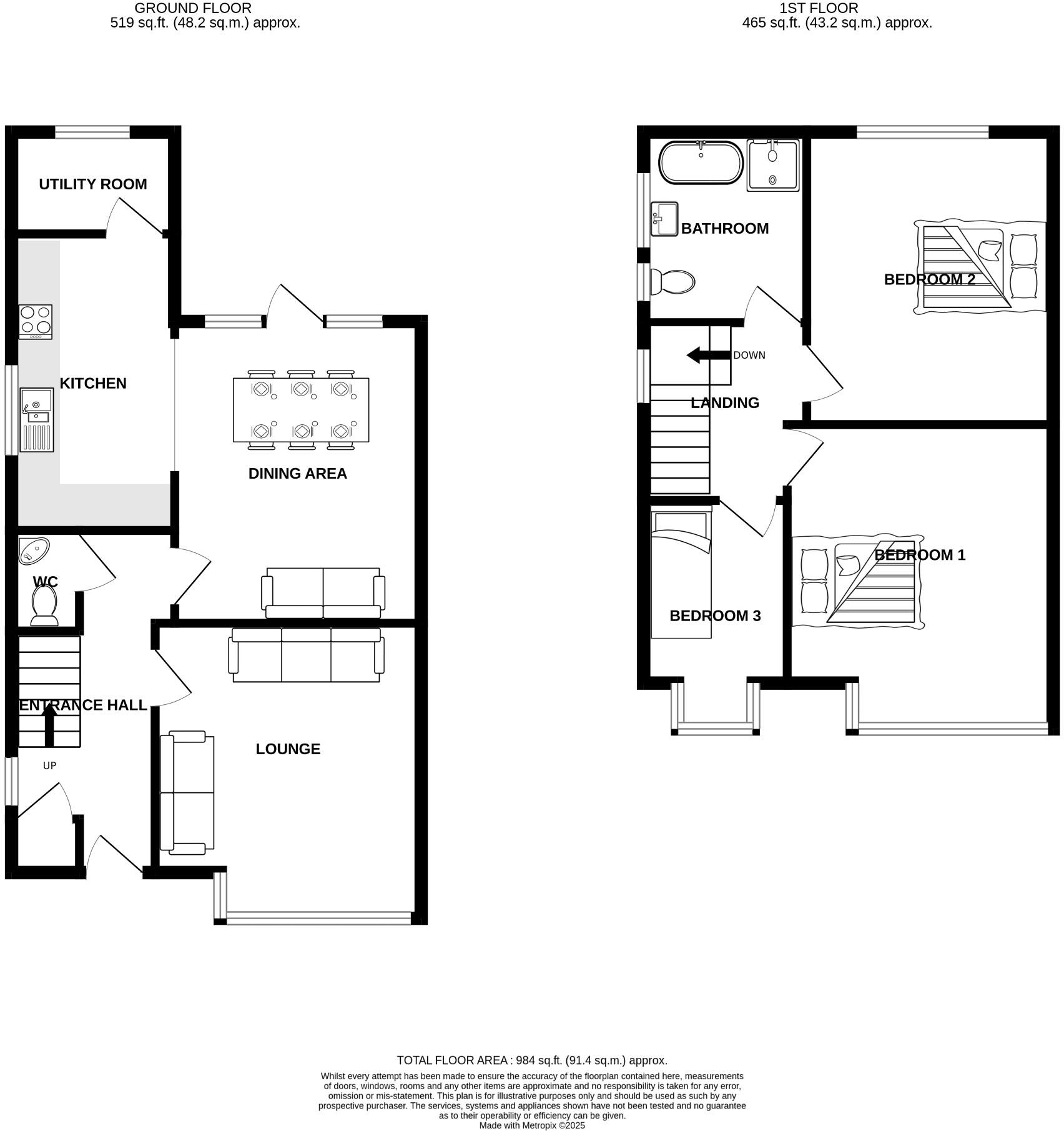
NO ONWARD CHAIN. Platinum are delighted to offer onto the market this outstanding three bedroom semi detached family home. The property can be found within the highly desirable location of Hoole, this recently renovated property boasts a modern kitchen/diner, downstairs cloakroom and benefits from
Property Oracle says ..
Therefore, we give this property 7 / 10. *Disclaimer: This is our option and does constitute a recommendation or financial advice. Do your own research. *
- Price
- 7
- Condition
- 9
- Location
- 8
- Land
- 7
- Bedrooms
- 3
- Bathrooms
- 1
- Sqft (est)
- 984.00
The heatmap indicates the level of crime in the area. The color of the heatmap indicates the crime severity and recency.
Metrics Year-on-Year
- Average area value
- 350,231.00 £Increased by 10.96 %
- Est sale value
- 430,008.00 £Increased by 21.05 %
- Average area rental value
- 1,215.00 £/moIncreased by 15.28 %
- Est letting value
- 984.00 £/moUnchanged by 0.00 %
- Est rental Yield
- 4.16 %Increased by 3.74 %
- Crime Rate
- 2.00 %Unchanged by 0.00 %
from 315,634.00 £
from 355,224.00 £
from 1,054.00 £/mo
from 984.00 £/mo
from 4.01 %
from 2.00 %
Agent Activity
Platinum Independent Estate Agents created the listing.
Nearby Schools
| Name | Type | Ofsted | Distance |
|---|---|---|---|
| The Hammond | Other Independent School | 1.06 KM | |
| Maple Grove School | Other Independent Special School | 1.14 KM | |
| Oldfield Primary School | Community School | Good | 1.26 KM |
| Hoole Church Of England Primary School | Voluntary Controlled School | Good | 1.26 KM |
| Upton-By-Chester High School | Foundation School | Good | 1.34 KM |
Images
Nearby Streets
| Name | Average Price | Average Sqft | Distance |
|---|---|---|---|
| Ring Road | £ 0 | 0 | 0.00 KM |
| Rutland Place | £ 0 | 0 | 0.00 KM |
| Surrey Road | £ 127,500 | 0 | 0.00 KM |
| Ennerdale Road | £ 98,000 | 0 | 0.00 KM |
| George Close | £ 0 | 0 | 0.00 KM |
Nearby Transport
| Name | NLC | TLC | Distance |
|---|---|---|---|
| Chester | 2412 | CTR | 2.39 KM |
| Bache | 2187 | BAC | 3.45 KM |
| Stanlow And Thornton | 2159 | SNT | 8.21 KM |
| Ince And Elton (Cheshire) | 2122 | INE | 9.16 KM |
| Ellesmere Port | 2121 | ELP | 9.27 KM |
Nearby Listings
| Address | Price | Type | Score | Distance |
|---|---|---|---|---|
| Hoole Road, Hoole | £ 425,000 | BUY | 7 / 10 | 0.00 KM |
| Woodfield Grove, Hoole, Chester | £ 370,000 | BUY | 6 / 10 | 0.08 KM |
| Pipers Lane, Hoole, CH2 | £ 375,000 | BUY | 6 / 10 | 0.13 KM |
| Willow Grove, Hoole, CH2 | £ 285,000 | BUY | Unknown | 0.20 KM |
| Willow Crescent, Hoole, Chester | £ 130,000 | BUY | 5 / 10 | 0.21 KM |
Nearby Properties
| Address | Price | Distance |
|---|---|---|
| 176 Hoole Road | £ 270,000 | 0.00 KM |
| 160 Hoole Road | £ 271,000 | 0.00 KM |
| 172 Hoole Road | £ 315,000 | 0.00 KM |
| 158 Hoole Road | £ 310,000 | 0.00 KM |
| 150 Hoole Road | £ 182,000 | 0.02 KM |