Station Road, Willesden Junction, London, NW10
By Daniels Estate Agents
£ 500,000
Reviews
4 out of 5 stars
Daniels Estate Agents says ..
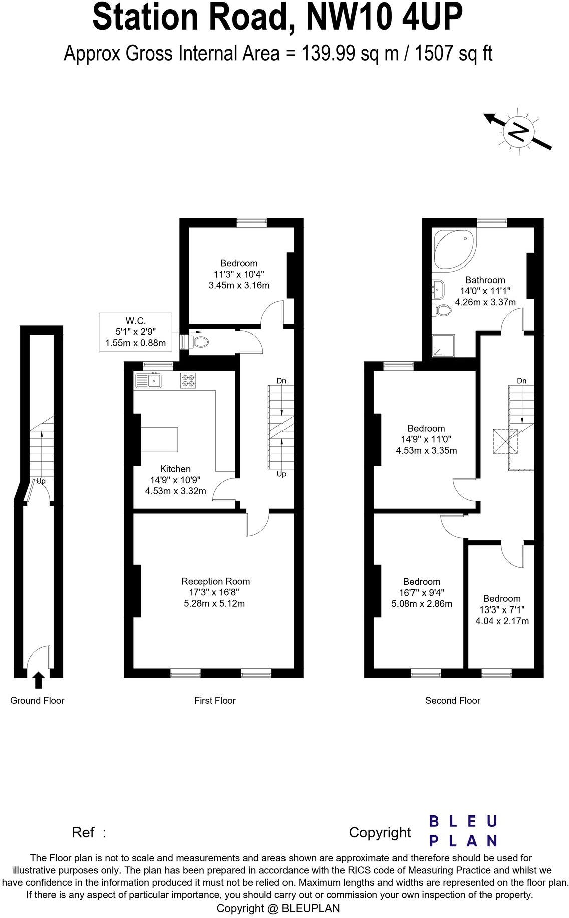
OVER 1500SQFT LIVING SPACE... Located within a few minutes walk to Willesden Junction bakerloo and overground station is this SPACIOUS and SPLIT LEVEL FOUR BEDROOM FLAT.The property benefits from PRIVATE ENTRANCE from the street with stairs up to the first floor level which ...
Property Oracle says ..
This property is a four-bedroom duplex located on Station Road in Willesden Junction, London. The area benefits from excellent transport links, with Willesden Junction station just a short walk away, providing access to the London Overground and National Rail services. Several primary schools with good Ofsted ratings are also within a reasonable distance. The property itself appears to be in reasonable condition, though some minor cosmetic updates might enhance its appeal. The kitchen and bathrooms seem functional but could benefit from some modernisation. The property has a good-sized plot, which is a definite advantage in a densely populated area like London. The list price of £500,000 is slightly below the average price for the area (£538,052), and considering its size (959.65 sq ft) and the presence of four bedrooms, it could be considered reasonably priced, particularly given the land size. However, a detailed survey would be recommended to assess the condition of the property fully and identify any potential maintenance needs.
Therefore, we give this property 8 / 10. *Disclaimer: This is our option and does constitute a recommendation or financial advice. Do your own research. *
- Price
- 8
- Condition
- 7
- Location
- 9
- Land
- 8
- Bedrooms
- 4
- Bathrooms
- 1
- Sqft (est)
- 959.65
- Lot (est)
- 1,507.00
The heatmap indicates the level of crime in the area. The color of the heatmap indicates the crime severity and recency.
Metrics Year-on-Year
- Average area value
- 602,363.00 £Decreased by 3.66 %
- Est sale value
- 732,212.95 £Increased by 25.49 %
- Average area rental value
- 2,309.00 £/moIncreased by 9.48 %
- Est letting value
- 1,919.30 £/moUnchanged by 0.00 %
- Est rental Yield
- 4.60 %Increased by 13.58 %
- Crime Rate
- 14.00 %Unchanged by 0.00 %
Agent Activity
Daniels Estate Agents marked this listing as sold.
Daniels Estate Agents created the listing.
Nearby Schools
| Name | Type | Ofsted | Distance |
|---|---|---|---|
| Harmony Children'S Centre | Children's Centre | 0.11 KM | |
| John Keble Cofe Primary School | Voluntary Aided School | Good | 0.46 KM |
| Saint Claudine'S Catholic School For Girls | Academy Converter | Good | 0.51 KM |
| Maple Walk School | Other Independent School | 0.62 KM | |
| Roundwood School And Community Centre | Free Schools Alternative Provision | 0.90 KM |
Images
Nearby Streets
| Name | Average Price | Average Sqft | Distance |
|---|---|---|---|
| Caple Road | £ 350,000 | 0 | 0.00 KM |
| Station Road | £ 0 | 0 | 0.00 KM |
| Harlesden Plaza | £ 3,350,000 | 0 | 0.00 KM |
| Rucklidge Passage | £ 0 | 0 | 0.00 KM |
| Channel Gate Road | £ 0 | 0 | 0.00 KM |
Nearby Transport
| Name | NLC | TLC | Distance |
|---|---|---|---|
| Willesden Junction | 1457 | WIJ | 0.34 KM |
| Harlesden | 1521 | HDN | 1.18 KM |
| Kensal Green | 1447 | KNL | 2.48 KM |
| Acton Main Line | 3000 | AML | 2.84 KM |
| Kensal Rise | 1448 | KNR | 3.02 KM |
Nearby Listings
| Address | Price | Type | Score | Distance |
|---|---|---|---|---|
| Station Road, Willesden Junction, London, NW10 | £ 500,000 | BUY | 8 / 10 | 0.00 KM |
| Raneleagh Road, Harlesden, London, NW10 | £ 450,000 | BUY | 6 / 10 | 0.05 KM |
| Raneleagh Road, Harlesden, London, NW10 | £ 420,000 | BUY | 6 / 10 | 0.05 KM |
| Raneleagh Road, Harlesden, London, NW10 | £ 400,000 | BUY | Unknown | 0.05 KM |
| 36 Ranelagh Road, London, NW10 4UR | £ 250,000 | BUY | 5 / 10 | 0.06 KM |
Nearby Properties
| Address | Price | Distance |
|---|---|---|
| 38 Ranelagh Road | £ 120,000 | 0.06 KM |
| 25 Ranelagh Road | £ 715,000 | 0.09 KM |
| 16 Ranelagh Road | £ 129,853 | 0.09 KM |
| 12 Ranelagh Road | £ 400,000 | 0.09 KM |
| 19 Ranelagh Road | £ 695,000 | 0.09 KM |