Hunters says ..
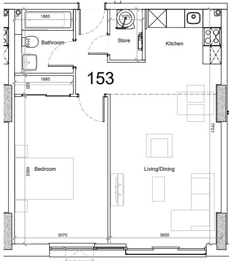
**NO ONWARD CHAIN COMPLICATIONS** Hunters Reading are pleased to offer this luxury one bedroom apartment located one the fourth floor in this newly built purpose block of apartments within walking distance of Bracknell Train Station & Lexicon Shopping Centre. The apartment has been fini...
Property Oracle says ..
Therefore, we give this property 6 / 10. *Disclaimer: This is our option and does constitute a recommendation or financial advice. Do your own research. *
- Price
- 7
- Condition
- 8
- Location
- 8
- Land
- 1
- Bedrooms
- 1
- Bathrooms
- 1
- Sqft (est)
- 600.41
The heatmap indicates the level of crime in the area. The color of the heatmap indicates the crime severity and recency.
Metrics Year-on-Year
- Average area value
- 335,000.00 £Increased by 5.62 %
- Est sale value
- 305,008.28 £Increased by 46.82 %
- Average area rental value
- 1,350.00 £/moIncreased by 2.12 %
- Est letting value
- 1,200.82 £/moIncreased by 100.00 %
- Est rental Yield
- 4.84 %Decreased by 3.20 %
- Crime Rate
- 12.00 %Unchanged by 0.00 %
from 317,177.00 £
from 207,741.86 £
from 1,322.00 £/mo
from 600.41 £/mo
from 5.00 %
from 12.00 %
Agent Activity
Hunters created the listing.
Nearby Schools
| Name | Type | Ofsted | Distance |
|---|---|---|---|
| Ranelagh School | Academy Converter | Outstanding | 0.83 KM |
| The Brakenhale School | Academy Sponsor Led | Good | 0.84 KM |
| Garth Hill College | Community School | Good | 0.84 KM |
| Sandy Lane Primary School | Community School | Good | 0.99 KM |
| Rowans And Sycamores Children'S Centre | Children's Centre | 1.22 KM |
Images
Nearby Streets
| Name | Average Price | Average Sqft | Distance |
|---|---|---|---|
| Crowthorne Road North | £ 0 | 0 | 0.00 KM |
| Western Roundabout | £ 400,000 | 0 | 0.00 KM |
| The Crescent | £ 350,000 | 0 | 0.00 KM |
| Weather Way | £ 0 | 0 | 0.00 KM |
| Willow Drive | £ 0 | 0 | 0.00 KM |
Nearby Transport
| Name | NLC | TLC | Distance |
|---|---|---|---|
| Bracknell | 5693 | BCE | 0.21 KM |
| Martins Heron | 5692 | MAO | 3.23 KM |
| Ascot (Berks) | 5666 | ACT | 8.55 KM |
| Camberley | 5682 | CAM | 8.77 KM |
| Bagshot | 5681 | BAG | 9.03 KM |
Nearby Listings
| Address | Price | Type | Score | Distance |
|---|---|---|---|---|
| Market Street, Bracknell | £ 300,000 | BUY | 6 / 10 | 0.00 KM |
| Market Street, Bracknell, Berkshire, RG12 | £ 210,000 | BUY | 6 / 10 | 0.03 KM |
| Gowring House, Market Street, Bracknell, RG12 1JG | £ 180,000 | BUY | 6 / 10 | 0.04 KM |
| Market Street, Bracknell, Berkshire, RG12 | £ 205,000 | BUY | 6 / 10 | 0.04 KM |
| Bracknell, Berkshire, RG12 | £ 180,000 | BUY | 5 / 10 | 0.04 KM |
Nearby Properties
| Address | Price | Distance |
|---|---|---|
| 17 Faircross | £ 220,000 | 0.31 KM |
| 12 Faircross | £ 274,950 | 0.31 KM |
| 15 Faircross | £ 180,000 | 0.31 KM |
| 20 Faircross | £ 282,500 | 0.32 KM |
| 10 Faircross | £ 175,000 | 0.32 KM |