Lawson Rose says ..
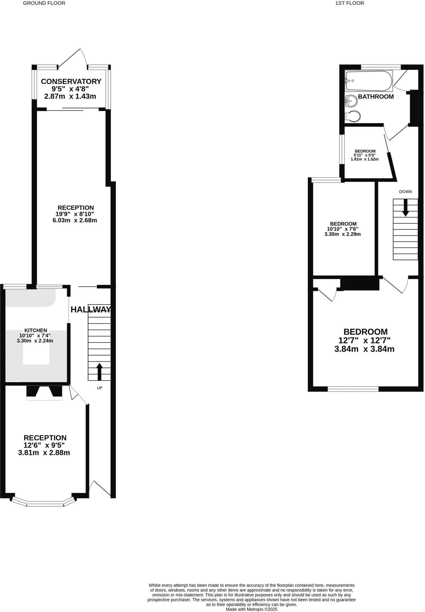
No Forward Chain! This three bedroom, bay & forecourt property in a popular residential area in PO4 is being offered with no forward chain! Situated on Westfield Road, the property, although in need of some modernsiation, it could be perfect for those looking to put their own stamp on a famil...
Property Oracle says ..
This terraced house on Westfield Road, Southsea, presents a promising opportunity for buyers willing to undertake a renovation project. The property’s location is a strong point, with proximity to schools and local amenities enhancing its appeal. While the interior requires modernisation, the presence of a garden with a shed adds to the property’s value. The competitive list price reflects the condition, making it an attractive investment for those looking to create a personalised home.
Therefore, we give this property 6 / 10. *Disclaimer: This is our option and does constitute a recommendation or financial advice. Do your own research. *
- Price
- 8
- Condition
- 4
- Location
- 7
- Land
- 6
- Bedrooms
- 3
- Bathrooms
- 1
The heatmap indicates the level of crime in the area. The color of the heatmap indicates the crime severity and recency.
Metrics Year-on-Year
- Average area value
- 328,606.00 £Increased by 5.04 %
- Average area rental value
- 1,137.00 £/moDecreased by 6.34 %
- Est rental Yield
- 4.15 %Decreased by 10.94 %
- Crime Rate
- 1.00 %Unchanged by 0.00 %
Agent Activity
Lawson Rose created the listing.
Nearby Schools
| Name | Type | Ofsted | Distance |
|---|---|---|---|
| Cumberland Children'S Centre | Children's Centre Linked Site | 0.10 KM | |
| Cumberland Infant School | Community School | Good | 0.18 KM |
| Wimborne Primary School | Community School | 0.23 KM | |
| Milton Park Primary School | Academy Converter | 0.73 KM | |
| Milton, Baffin'S And Cumberland Children'S Centre | Children's Centre | 0.83 KM |
Images
Nearby Streets
| Name | Average Price | Average Sqft | Distance |
|---|---|---|---|
| Clovelly Road | £ 0 | 0 | 0.00 KM |
| Morley Road | £ 0 | 0 | 0.00 KM |
| Church View | £ 0 | 0 | 0.00 KM |
| Fratton Way | £ 162,500 | 0 | 0.00 KM |
| Bransbury Road | £ 0 | 0 | 0.00 KM |
Nearby Transport
| Name | NLC | TLC | Distance |
|---|---|---|---|
| Fratton | 5509 | FTN | 1.53 KM |
| Portsmouth And Southsea | 5537 | PMS | 3.37 KM |
| Hilsea | 5539 | HLS | 4.30 KM |
| Portsmouth Harbour | 5540 | PMH | 5.16 KM |
| Cosham | 5896 | CSA | 5.84 KM |
Nearby Listings
| Address | Price | Type | Score | Distance |
|---|---|---|---|---|
| Westfield Road, Southsea | £ 240,000 | BUY | 6 / 10 | 0.00 KM |
| Westfield Road, Southsea | £ 275,000 | BUY | 7 / 10 | 0.00 KM |
| Westfield Road, Southsea | £ 225,000 | BUY | 6 / 10 | 0.00 KM |
| Westfield Road, Southsea, Hampshire | £ 280,000 | BUY | 7 / 10 | 0.03 KM |
| Eastfield Road, Southsea | £ 249,950 | BUY | 6 / 10 | 0.03 KM |
Nearby Properties
| Address | Price | Distance |
|---|---|---|
| 108 Westfield Road | £ 229,450 | 0.00 KM |
| 112 Westfield Road | £ 143,000 | 0.00 KM |
| 128 Westfield Road | £ 162,000 | 0.00 KM |
| 152 Westfield Road | £ 280,000 | 0.00 KM |
| 228 Westfield Road | £ 225,000 | 0.00 KM |