Pearsons says ..
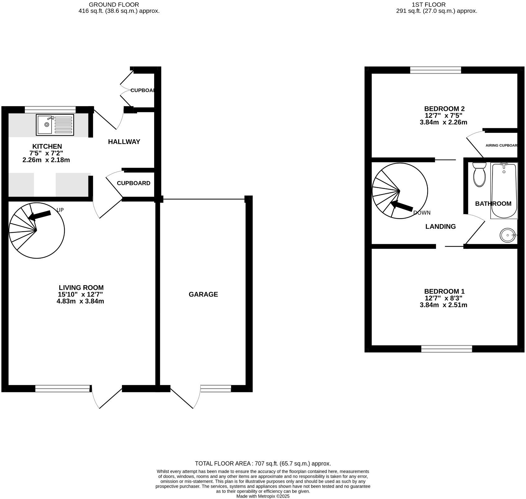
A two bedroom semi-detached house located in a small cul-de-sac set amongst similar style properties just to the east of Fareham town centre. The property's accommodation briefly comprises; entrance hall, kitchen, living room with double glazed doors leading to garden. On the first floor, two bed...
Property Oracle says ..
This is a semi-detached house located on Grebe Close, Fareham. The property features two bedrooms and one bathroom, with a total square footage of 707 sqft. It benefits from a garden and off-street parking. The house is situated in a convenient location, close to schools and transportation links, making it suitable for families and commuters. While the property is in generally good condition, some modernization could enhance its appeal. The asking price of £270,000 represents good value for money, considering the location and size of the property.
Therefore, we give this property 7 / 10. *Disclaimer: This is our option and does constitute a recommendation or financial advice. Do your own research. *
- Price
- 8
- Condition
- 7
- Location
- 7
- Land
- 7
- Bedrooms
- 2
- Bathrooms
- 1
- Sqft (est)
- 707.00
The heatmap indicates the level of crime in the area. The color of the heatmap indicates the crime severity and recency.
Metrics Year-on-Year
- Average area value
- 340,990.00 £Decreased by 19.38 %
- Est sale value
- 288,456.00 £Increased by 24.01 %
- Average area rental value
- 1,550.00 £/moIncreased by 14.31 %
- Est letting value
- 707.00 £/moUnchanged by 0.00 %
- Est rental Yield
- 5.45 %Increased by 41.56 %
- Crime Rate
- 14.00 %Unchanged by 0.00 %
Agent Activity
Pearsons created the listing.
Nearby Schools
| Name | Type | Ofsted | Distance |
|---|---|---|---|
| Cams Hill School | Academy Converter | Good | 0.91 KM |
| Wicor Primary School | Community School | Good | 1.08 KM |
| Red Barn Community Primary School | Community School | Outstanding | 1.86 KM |
| Keepsake Children'S Centre | Children's Centre | 2.00 KM | |
| Northern Infant School | Community School | Good | 2.24 KM |
Images
Nearby Streets
| Name | Average Price | Average Sqft | Distance |
|---|---|---|---|
| Teal Close | £ 0 | 0 | 0.00 KM |
| The Pines | £ 625,000 | 0 | 0.00 KM |
| Avon Walk | £ 0 | 0 | 0.00 KM |
| Tattershall Crescent | £ 0 | 0 | 0.00 KM |
| Central Road | £ 425,000 | 0 | 0.00 KM |
Nearby Transport
| Name | NLC | TLC | Distance |
|---|---|---|---|
| Portchester | 5928 | PTC | 2.95 KM |
| Fareham | 5900 | FRM | 4.58 KM |
| Portsmouth Harbour | 5540 | PMH | 7.45 KM |
| Portsmouth And Southsea | 5537 | PMS | 8.65 KM |
| Cosham | 5896 | CSA | 9.27 KM |
Nearby Listings
| Address | Price | Type | Score | Distance |
|---|---|---|---|---|
| GREBE CLOSE, FAREHAM | £ 270,000 | BUY | 7 / 10 | 0.00 KM |
| GREBE CLOSE, FAREHAM | £ 265,000 | BUY | 6 / 10 | 0.00 KM |
| Grebe Close, Portchester, | £ 300,000 | BUY | 7 / 10 | 0.00 KM |
| Grebe Close, Fareham | £ 325,000 | BUY | 6 / 10 | 0.01 KM |
| Widgeon Court, Portchester, Fareham, PO16 | £ 196,950 | BUY | 5 / 10 | 0.08 KM |
Nearby Properties
| Address | Price | Distance |
|---|---|---|
| 16 Grebe Close | £ 266,000 | 0.01 KM |
| 9 Grebe Close | £ 160,000 | 0.01 KM |
| 2 Grebe Close | £ 300,000 | 0.01 KM |
| 14 Grebe Close | £ 173,500 | 0.01 KM |
| 5 Grebe Close | £ 170,000 | 0.01 KM |