EL
Priory Road, Wolston, Coventry
By Ellis Brooke
£ 235,000
Reviews
3 out of 5 stars
Ellis Brooke says ..
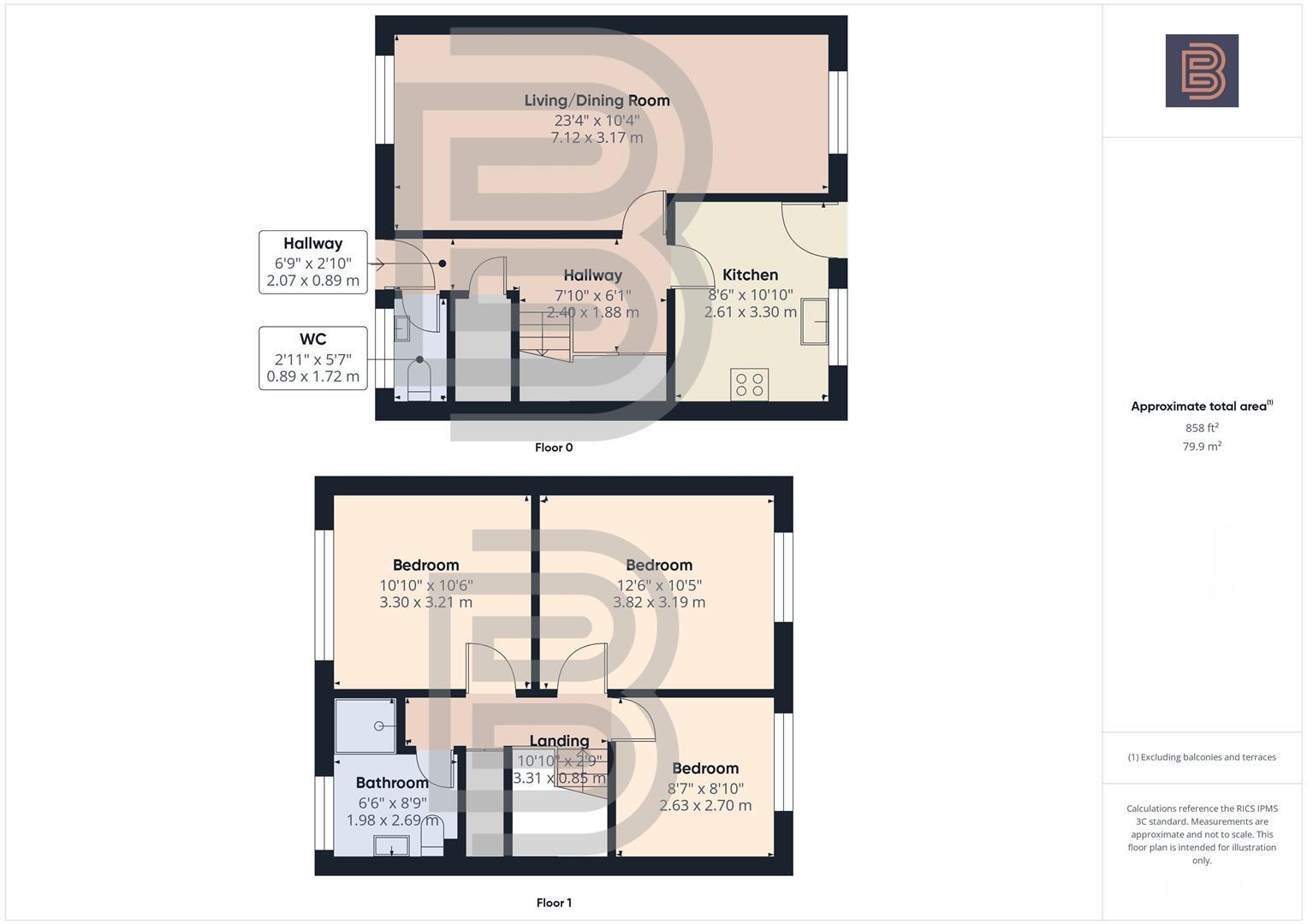
This well presented three bedroom mid-terraced home is offered to the market with NO ONWARD CHAIN and is located in the ever popular village of Wolston, which benefits from a range of local amenities all within walking distance. The property offers accommodation that is set over 2 floors and in b...
Property Oracle says ..
Therefore, we give this property 7 / 10. *Disclaimer: This is our option and does constitute a recommendation or financial advice. Do your own research. *
- Price
- 8
- Condition
- 6
- Location
- 7
- Land
- 7
- Bedrooms
- 3
- Bathrooms
- 1
- Sqft (est)
- 860.04
The heatmap indicates the level of crime in the area. The color of the heatmap indicates the crime severity and recency.
Metrics Year-on-Year
- Average area value
- 340,000.00 £Decreased by 6.52 %
- Est sale value
- 255,431.88 £Decreased by 10.00 %
- Average area rental value
- 950.00 £/moDecreased by 12.92 %
- Est letting value
- 0.00 £/mo
- Est rental Yield
- 3.35 %Decreased by 6.94 %
- Crime Rate
- 62.00 %Unchanged by 0.00 %
from 363,716.00 £
from 283,813.20 £
from 1,091.00 £/mo
from 0.00 £/mo
from 3.60 %
from 62.00 %
Agent Activity
Ellis Brooke created the listing.
Nearby Schools
| Name | Type | Ofsted | Distance |
|---|---|---|---|
| Wolston St Margaret'S Cofe Primary School | Voluntary Controlled School | Good | 0.86 KM |
| Binley Woods Primary School | Community School | Requires improvement | 2.61 KM |
| Knightlow Cofe Primary School | Voluntary Aided School | Outstanding | 3.05 KM |
| Our Lady'S Catholic Primary School, Princethorpe | Voluntary Aided School | Good | 5.60 KM |
| Provost Williams Cofe Primary School | Voluntary Controlled School | Good | 5.75 KM |
Images
Nearby Streets
| Name | Average Price | Average Sqft | Distance |
|---|---|---|---|
| Motte Mews | £ 0 | 0 | 0.00 KM |
| Abbots Walk | £ 131,000 | 0 | 0.00 KM |
| Priory Road | £ 425,000 | 0 | 0.00 KM |
| Hawthorne Close | £ 385,000 | 0 | 0.00 KM |
| Mill Close | £ 235,000 | 0 | 0.00 KM |
Nearby Listings
| Address | Price | Type | Score | Distance |
|---|---|---|---|---|
| Priory Road, Wolston, Coventry | £ 235,000 | BUY | 7 / 10 | 0.00 KM |
| Abbotts Walk, Wolston, Coventry | £ 255,000 | BUY | 6 / 10 | 0.15 KM |
| Abbotts Walk, Wolston | £ 229,950 | BUY | Unknown | 0.17 KM |
| Arderne De Gray Road, Wolston, CV8 | £ 400,000 | BUY | 7 / 10 | 0.22 KM |
| Priory Road, Wolston, CV8 | £ 650,000 | BUY | 6 / 10 | 0.24 KM |
Nearby Properties
| Address | Price | Distance |
|---|---|---|
| 11 Abbotts Walk | £ 125,000 | 0.17 KM |
| 1 Abbotts Walk | £ 128,000 | 0.17 KM |
| 18 Abbotts Walk | £ 120,000 | 0.17 KM |
| 3 Abbotts Walk | £ 113,000 | 0.17 KM |
| 17 Abbotts Walk | £ 193,000 | 0.17 KM |