Guildford Road, Portsmouth, Hampshire, PO1
By Beals
£ 242,000
Reviews
3 out of 5 stars
Beals says ..
No onward chain! Ideal for first-time buyers or investors, this charming 3-bed terraced house features a spacious reception room, modern shower room, and a lovely garden. Conveniently located, this property offers a comfortable and stylish living space. Don't miss out, book a viewing today.
Property Oracle says ..
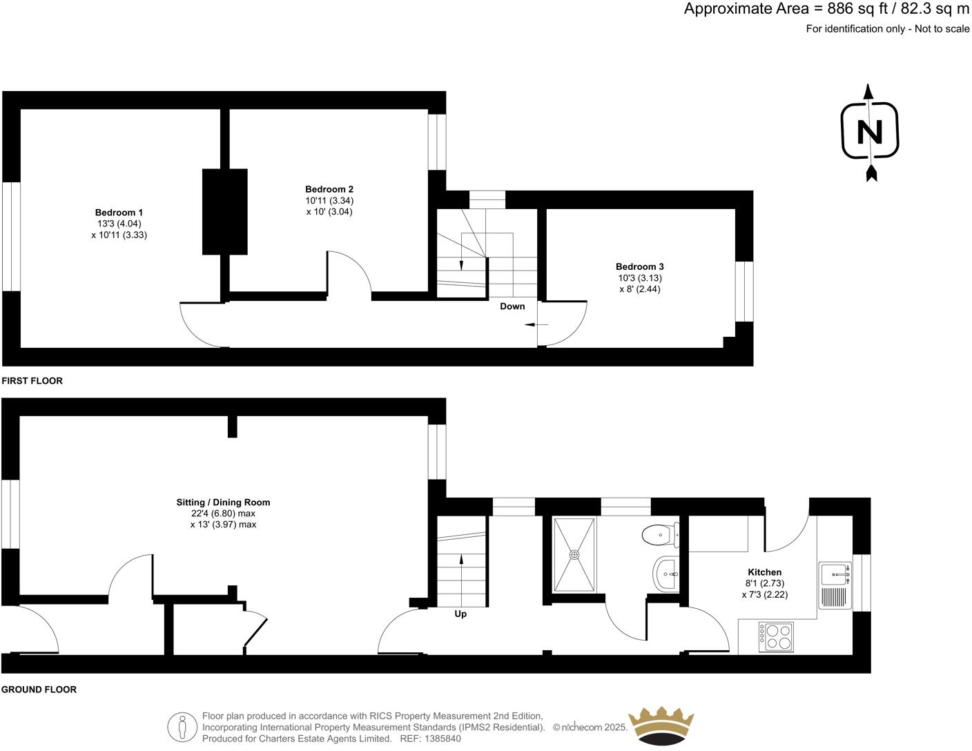
This terraced house on Guildford Road, Fratton, offers three bedrooms and one bathroom, spanning 886 sqft. The property benefits from a modern kitchen and bathroom, suggesting recent updates. While the interior seems well-maintained, the exterior may need some attention. Located in a convenient area of Portsmouth, it’s close to local schools and transportation links, making it suitable for families and commuters. The asking price of £242,000 is reasonable given the size and location, though the lack of a significant garden might deter some buyers.
Therefore, we give this property 6 / 10. *Disclaimer: This is our option and does constitute a recommendation or financial advice. Do your own research. *
- Price
- 6
- Condition
- 7
- Location
- 7
- Land
- 4
- Bedrooms
- 3
- Bathrooms
- 1
- Sqft (est)
- 886.00
The heatmap indicates the level of crime in the area. The color of the heatmap indicates the crime severity and recency.
Metrics Year-on-Year
- Average area value
- 225,874.00 £Increased by 4.56 %
- Est sale value
- 310,986.00 £Increased by 35.00 %
- Average area rental value
- 914.00 £/moDecreased by 25.20 %
- Est letting value
- 886.00 £/moUnchanged by 0.00 %
- Est rental Yield
- 4.86 %Decreased by 28.42 %
- Crime Rate
- 4.00 %Unchanged by 0.00 %
Agent Activity
Beals created the listing.
Nearby Schools
| Name | Type | Ofsted | Distance |
|---|---|---|---|
| The Portsmouth Academy | Academy Sponsor Led | Good | 0.22 KM |
| Madani Academy | Other Independent School | Good | 0.48 KM |
| Manor Infant And Nursery School | Community School | Good | 0.50 KM |
| Penhale Infant School & Nursery | Academy Converter | 0.52 KM | |
| Fratton Children'S Centre | Children's Centre | 0.52 KM |
Images
Nearby Streets
| Name | Average Price | Average Sqft | Distance |
|---|---|---|---|
| Fourth Street | £ 0 | 0 | 0.00 KM |
| Trafalgar Place | £ 0 | 0 | 0.00 KM |
| Proctor Lane | £ 0 | 0 | 0.00 KM |
| Common Street | £ 0 | 0 | 0.00 KM |
| Bowler Court | £ 0 | 0 | 0.00 KM |
Nearby Transport
| Name | NLC | TLC | Distance |
|---|---|---|---|
| Fratton | 5509 | FTN | 0.75 KM |
| Portsmouth And Southsea | 5537 | PMS | 2.00 KM |
| Hilsea | 5539 | HLS | 3.24 KM |
| Portsmouth Harbour | 5540 | PMH | 3.87 KM |
| Cosham | 5896 | CSA | 4.38 KM |
Nearby Listings
| Address | Price | Type | Score | Distance |
|---|---|---|---|---|
| Guildford Road, Portsmouth, Hampshire, PO1 | £ 242,000 | BUY | 6 / 10 | 0.00 KM |
| St. Marys Road, Portsmouth | £ 140,000 | BUY | 6 / 10 | 0.07 KM |
| Guildford Road, Portsmouth | £ 235,000 | BUY | Unknown | 0.08 KM |
| St Marys Road, Portsmouth | £ 117,995 | BUY | Unknown | 0.09 KM |
| Forton Rd, Fratton, Portsmouth, PO1 | £ 220,000 | BUY | 5 / 10 | 0.09 KM |
Nearby Properties
| Address | Price | Distance |
|---|---|---|
| 61 Guildford Road | £ 128,000 | 0.06 KM |
| 49 Guildford Road | £ 146,000 | 0.06 KM |
| 3 Guildford Road | £ 164,700 | 0.06 KM |
| 41 Guildford Road | £ 144,500 | 0.06 KM |
| 11 Guildford Road | £ 141,000 | 0.06 KM |