CA
Maesyglyn, Lower Brynamman, SA18 1SY
By Calow Evans
£ 119,950
Reviews
3 out of 5 stars
Calow Evans says ..
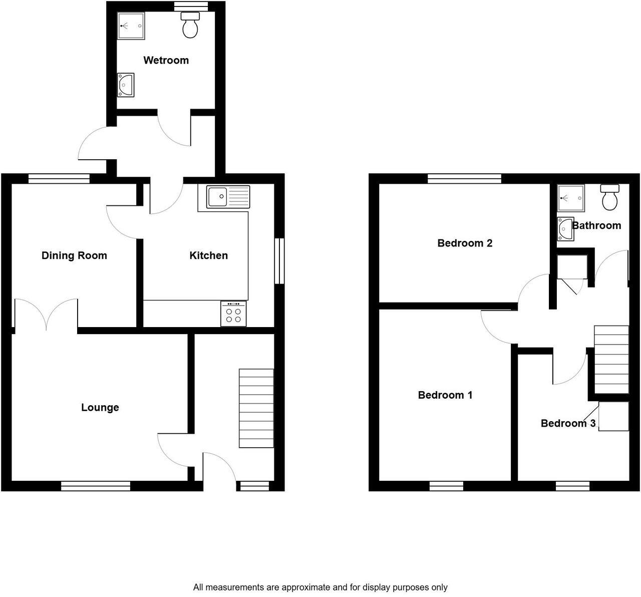
This ideal property for first-time buyers is located in the village of Lower Brynamman, on the edge of the Brecon Beacons National Park. The three-bedroom ex-local authority home features two reception rooms and two wet rooms. It also benefits from oil-fired central heating and double glazing....
Property Oracle says ..
Therefore, we give this property 6 / 10. *Disclaimer: This is our option and does constitute a recommendation or financial advice. Do your own research. *
- Price
- 8
- Condition
- 5
- Location
- 6
- Land
- 7
- Bedrooms
- 3
- Bathrooms
- 2
- Sqft (est)
- 713.80
The heatmap indicates the level of crime in the area. The color of the heatmap indicates the crime severity and recency.
Metrics Year-on-Year
- Average area value
- 406,364.00 £Increased by 51.98 %
- Est sale value
- 234,840.20 £Increased by 29.02 %
- Average area rental value
- 1,294.00 £/moIncreased by 17.32 %
- Est letting value
- 713.80 £/moUnchanged by 0.00 %
- Est rental Yield
- 3.82 %Decreased by 22.83 %
- Crime Rate
- 36.00 %Unchanged by 0.00 %
from 267,381.00 £
from 182,019.00 £
from 1,103.00 £/mo
from 713.80 £/mo
from 4.95 %
from 36.00 %
Agent Activity
Calow Evans created the listing.
Nearby Schools
| Name | Type | Ofsted | Distance |
|---|---|---|---|
| Ygg Gwaun-Cae-Gurwen | Welsh Establishment | 1.26 KM | |
| Brynaman C P School | Welsh Establishment | 2.15 KM | |
| Tairgwaith Primary School | Welsh Establishment | 2.15 KM | |
| Ysgol Y Bedol | Welsh Establishment | 5.16 KM | |
| Yggd Cwmllynfell | Welsh Establishment | 6.08 KM |
Images
Nearby Streets
| Name | Average Price | Average Sqft | Distance |
|---|---|---|---|
| Stryd Cannon | £ 220,000 | 0 | 0.00 KM |
| Amman Valley Cycleway | £ 400,000 | 0 | 0.00 KM |
| Lon Brynneuadd | £ 180,000 | 0 | 0.00 KM |
| Heol Brynamman | £ 175,000 | 0 | 0.00 KM |
| Coronation Road | £ 187,475 | 0 | 0.00 KM |
Nearby Listings
| Address | Price | Type | Score | Distance |
|---|---|---|---|---|
| Maesyglyn, Lower Brynamman, SA18 1SY | £ 119,950 | BUY | 6 / 10 | 0.00 KM |
| Maes Y Glyn, Lower Brynamman, Ammanford, Neath Port Talbot, SA18 | £ 165,000 | BUY | 6 / 10 | 0.01 KM |
| Glyn Road, Lower Brynamman, Ammanford, Carmarthenshire. | £ 200,000 | BUY | 7 / 10 | 0.12 KM |
| Glyn Road, Lower Brynamman, Ammanford, Carmarthenshire. | £ 175,000 | BUY | 6 / 10 | 0.12 KM |
| Glyn Road, Lower Brynamman, Ammanford, SA18 1SS | £ 189,950 | BUY | 7 / 10 | 0.16 KM |
Nearby Properties
| Address | Price | Distance |
|---|---|---|
| 19 Maes Y Glyn | £ 93,000 | 0.01 KM |
| 44 Maes Y Glyn | £ 47,000 | 0.01 KM |
| 30 Maes Y Glyn | £ 68,000 | 0.01 KM |
| 66 Glyn Road | £ 52,000 | 0.11 KM |
| 28 Glyn Road | £ 55,000 | 0.11 KM |