Brunel Crescent, Swindon Town Centre, Wiltshire, SN2
By Homewise
£ 100,500
Reviews
3 out of 5 stars
Homewise says ..
Guide price for a Home for Life Lifetime Lease for OVER 60s tailored to your personal circumstances and requirements. Your price may vary. OVER 60S could benefit from SAVINGS of up to 59% from the market value with a one-off payment for a Lifetime Lease on this property. £10...
Property Oracle says ..
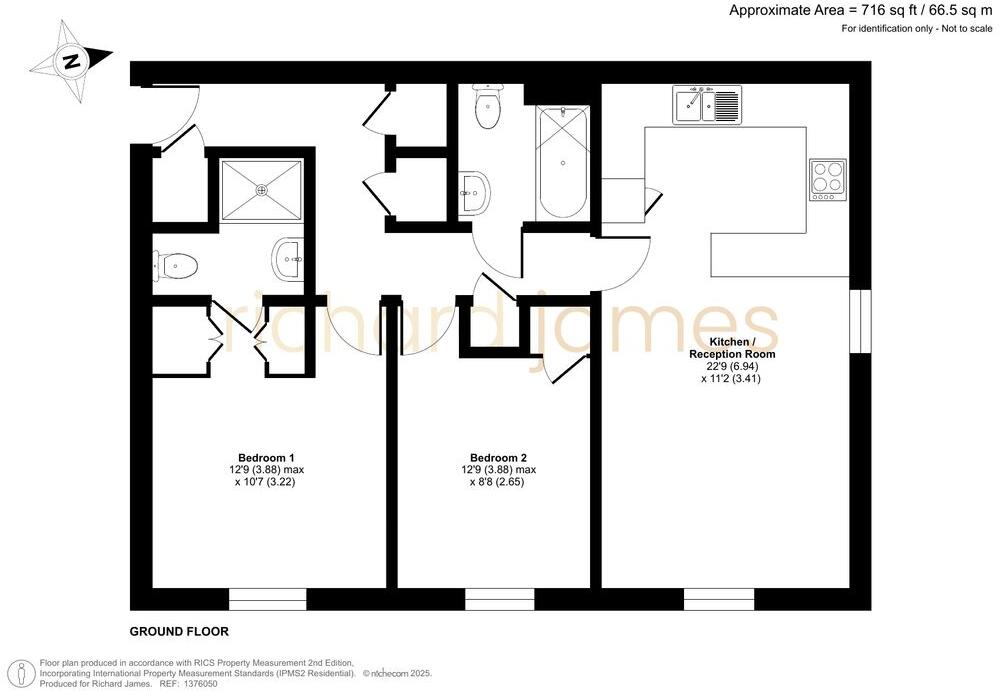
This two-bedroom apartment in Swindon Town Centre offers a blend of convenience and affordability. Its central location provides easy access to transportation, shops, and schools, making it suitable for various lifestyles. While the apartment is in reasonable condition, there’s room for modernization, particularly in the kitchen and bathrooms, which could increase its appeal and value. The absence of a private garden is a drawback, but the communal gardens offer some green space. The price appears competitive, presenting a good opportunity for buyers looking for value in this area. Overall, this property combines a desirable location with potential for improvement, making it an attractive investment.
Therefore, we give this property 6 / 10. *Disclaimer: This is our option and does constitute a recommendation or financial advice. Do your own research. *
- Price
- 8
- Condition
- 6
- Location
- 7
- Land
- 3
- Bedrooms
- 2
- Bathrooms
- 2
- Sqft (est)
- 716.00
The heatmap indicates the level of crime in the area. The color of the heatmap indicates the crime severity and recency.
Metrics Year-on-Year
- Average area value
- 481,967.00 £Increased by 28.07 %
- Est sale value
- 286,400.00 £Decreased by 15.97 %
- Average area rental value
- 1,254.00 £/moIncreased by 10.97 %
- Est letting value
- 716.00 £/moUnchanged by 0.00 %
- Est rental Yield
- 3.12 %Decreased by 13.33 %
- Crime Rate
- 8.00 %Unchanged by 0.00 %
Agent Activity
Homewise created the listing.
Nearby Schools
| Name | Type | Ofsted | Distance |
|---|---|---|---|
| Eotas Swindon | Pupil Referral Unit | Good | 0.56 KM |
| Ferndale Primary School & Nursery | Academy Converter | Good | 0.86 KM |
| Gorse Hill Children'S Centre | Children's Centre | 1.09 KM | |
| St Mary'S Catholic Primary School | Academy Converter | Good | 1.18 KM |
| Gorse Hill Primary School | Academy Converter | Requires improvement | 1.27 KM |
Images
Nearby Streets
| Name | Average Price | Average Sqft | Distance |
|---|---|---|---|
| Great Western Way | £ 0 | 0 | 0.00 KM |
| Saint Mary's Grove | £ 210,000 | 0 | 0.00 KM |
| Corporation Street | £ 0 | 0 | 0.00 KM |
| Wellington Street | £ 60,000 | 0 | 0.00 KM |
| Aylesbury Street | £ 0 | 0 | 0.00 KM |
Nearby Transport
| Name | NLC | TLC | Distance |
|---|---|---|---|
| Swindon (Wilts) | 3333 | SWI | 0.48 KM |
Nearby Listings
| Address | Price | Type | Score | Distance |
|---|---|---|---|---|
| Brunel Crescent, Swindon Town Centre, Wiltshire, SN2 | £ 100,500 | BUY | 6 / 10 | 0.00 KM |
| Brunel Crescent, Swindon, Wiltshire, SN2 | £ 159,950 | BUY | 7 / 10 | 0.00 KM |
| Brunel Crescent, Swindon, Wiltshire | £ 165,000 | BUY | 7 / 10 | 0.00 KM |
| Brunel Crescent, Swindon, Wiltshire, SN2 | £ 155,000 | BUY | 6 / 10 | 0.00 KM |
| Brunel Crescent, Swindon | £ 149,950 | BUY | 5 / 10 | 0.05 KM |
Nearby Properties
| Address | Price | Distance |
|---|---|---|
| 121 Brunel Crescent | £ 160,000 | 0.00 KM |
| 147 Brunel Crescent | £ 160,000 | 0.00 KM |
| 118 Brunel Crescent | £ 159,950 | 0.00 KM |
| 73 Brunel Crescent | £ 150,950 | 0.00 KM |
| 74 Brunel Crescent | £ 160,000 | 0.00 KM |