Grosse Point, Feock, TR3
JA

Grosse Point, Feock, TR3

By Jackie Stanley

£ 1,750,000

Reviews

3 out of 5 stars

Jackie Stanley says ..

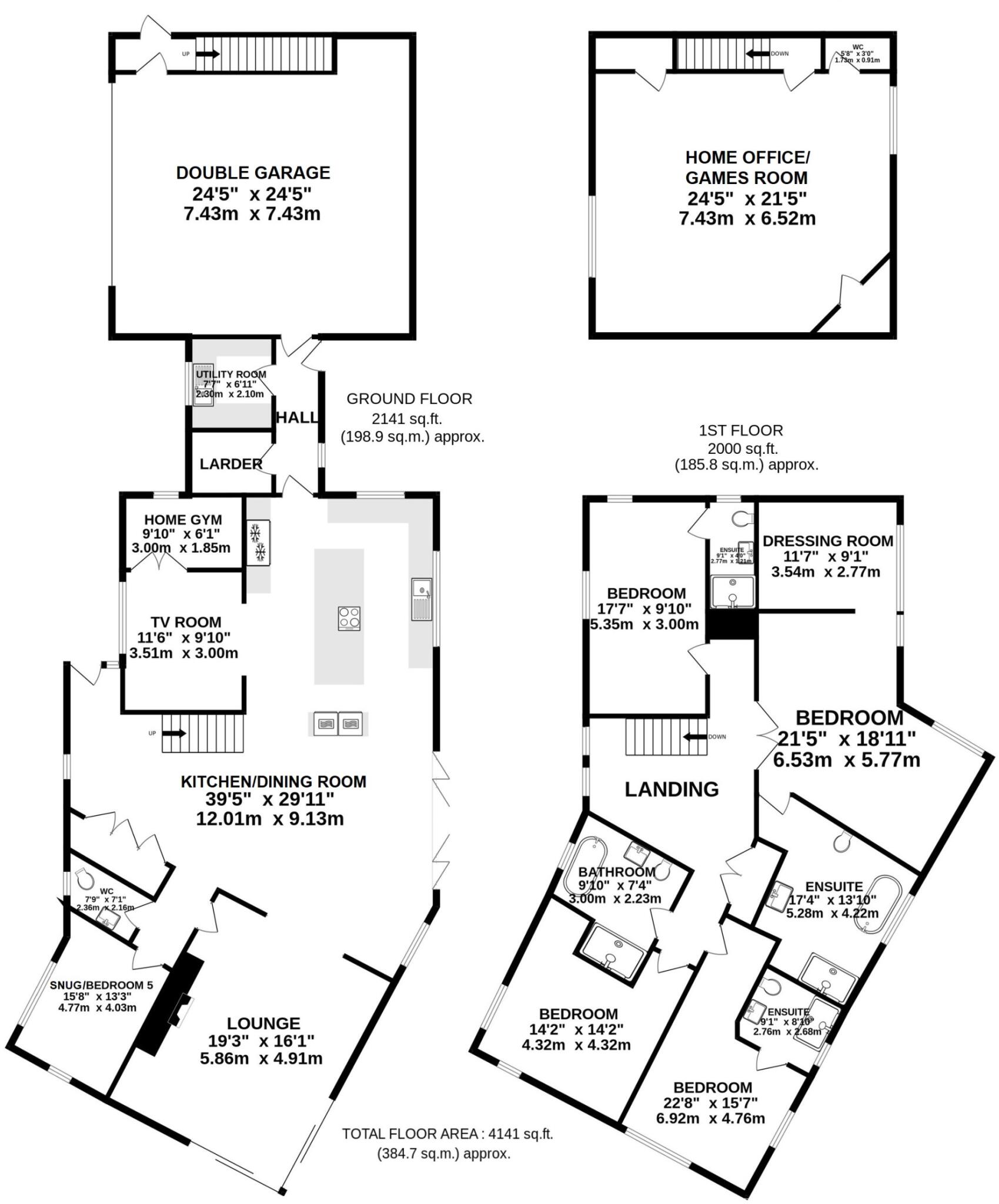
Nestled in the prestigious Feock area of Truro, this extraordinary architect-designed residence offers the ultimate combination of contemporary luxury, versatile living, and outstanding craftsmanship. Completed in 2015 and conceived by renowned architect Lilly Lewarne, Grosse Point sits on a gene...

Property Oracle says ..

This is a substantial detached property located in a sought-after area of Cornwall. The house boasts five bedrooms and four bathrooms, making it suitable for a large family. The interior is modern and well-presented, with a large kitchen and living area. The property also benefits from a large garden and ample parking. Truro is approximately 4.5KM away and there are a number of good schools in the area.

Therefore, we give this property 7 / 10. *Disclaimer: This is our option and does constitute a recommendation or financial advice. Do your own research. *

Price
6
Condition
9
Location
7
Land
8
Bedrooms
5
Bathrooms
4
Sqft (est)
4,885.20

The heatmap indicates the level of crime in the area. The color of the heatmap indicates the crime severity and recency.

Metrics Year-on-Year

Average area value
781,087.00 £
Increased by 32.10 %
from 591,288.00 £
Est sale value
2,501,222.40 £
Increased by 59.01 %
from 1,573,034.40 £
Average area rental value
1,319.00 £/mo
Decreased by 39.24 %
from 2,171.00 £/mo
Est letting value
0.00 £/mo
Decreased by 100.00 %
from 4,885.20 £/mo
Est rental Yield
2.03 %
Decreased by 53.97 %
from 4.41 %
Crime Rate
0.00 %
from 0.00 %

Agent Activity

  • Jackie Stanley created the listing.

Nearby Schools

NameTypeOfstedDistance
Kea Community Primary SchoolCommunity SchoolGood2.10 KM
Truro High SchoolOther Independent School3.75 KM
Devoran SchoolCommunity SchoolGood3.84 KM
Community & Hospital Education Service Ap AcademyAcademy Alternative Provision ConverterOutstanding4.23 KM
Bosvigo SchoolCommunity SchoolGood4.28 KM

Images

Photo 33 Photo 30 Photo 28 Photo 2 Photo 25 Photo 24 Photo 18 Photo 26 Photo 20 Photo 14 Photo 23 Photo 21 Photo 17 Photo 4 Photo 15 Photo 5 Photo 10 Photo 8 Photo 9 Photo 6 Photo 7 Photo 11 Photo 3 Photo 32 Photo 29 Photo 36 Photo 31 Photo 35 Photo 34 Photo 37

Nearby Streets

NameAverage PriceAverage SqftDistance
Millbrook Cottages £ 000.00 KM

Nearby Transport

NameNLCTLCDistance
Truro3540TRU4.50 KM
Perranwell3528PRW5.76 KM
Falmouth Docks3508FAL8.09 KM
Penryn (Cornwall)3525PYN8.14 KM
Falmouth Town3591FMT8.35 KM

Nearby Listings

AddressPriceTypeScoreDistance
Grosse Point, Feock, TR3 £ 1,750,000BUY7 / 100.00 KM
Penelewey, Feock, TR3 £ 995,000BUY7 / 100.09 KM
Penelewey, Feock, TR3 £ 1,150,000BUYUnknown0.09 KM
Penelewey, Feock, TR3 £ 1,150,000BUY8 / 100.10 KM
Penelewey, Feock - Nr. Truro, Cornwall £ 850,000BUY7 / 100.20 KM

Nearby Properties

AddressPriceDistance
My Choice £ 342,5000.15 KM
Pendower £ 304,0000.15 KM
Penvose £ 325,0000.15 KM
Kessenyans £ 326,5000.15 KM
Penverne £ 305,0000.15 KM