Acorn says ..
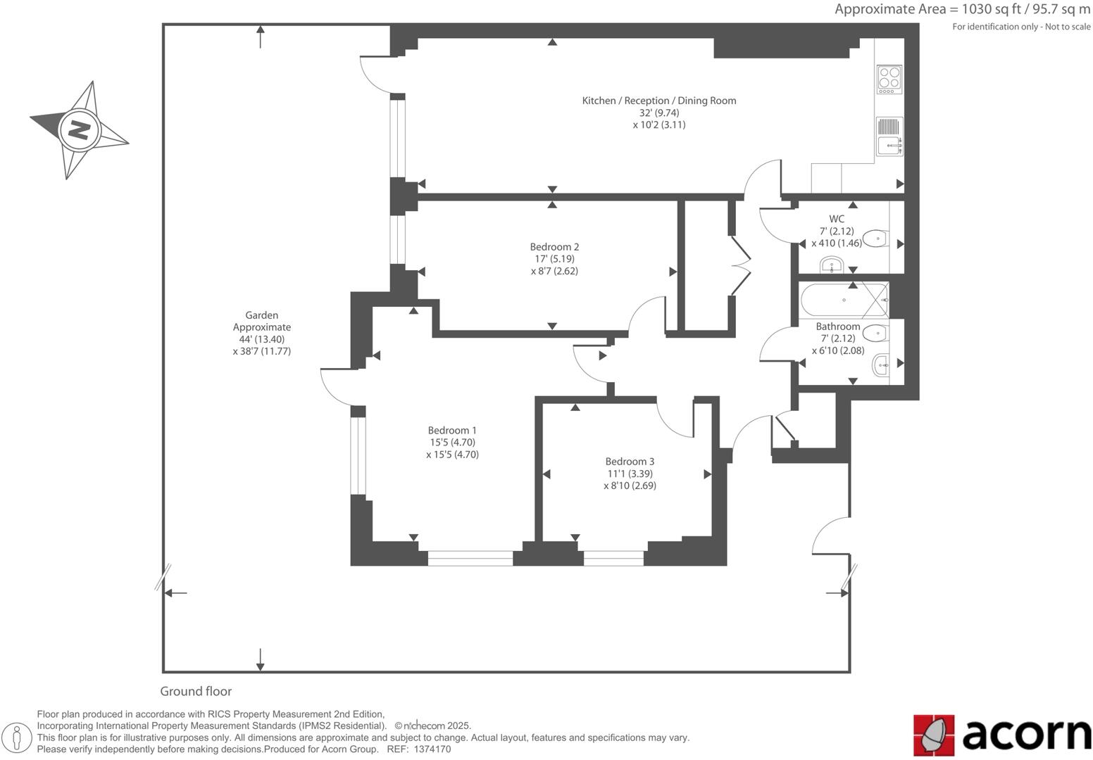
**Guide Price £600,000 - £625,000** Acorn are proud to present this beautiful three bedroom modern well designed apartment in Denmark Hill. Measuring over a 1000 sq ft, this property is sure to attract small families or couples alike. The property boasts its ow...
Property Oracle says ..
This is a 3-bedroom apartment in Champion Hill, Southwark, London. The property is in good condition and features modern interiors. It benefits from proximity to schools, transportation, and green spaces. The apartment includes a patio area, providing private outdoor space. The asking price is slightly above the local average but appears reasonable given the property’s features and location.
Therefore, we give this property 7 / 10. *Disclaimer: This is our option and does constitute a recommendation or financial advice. Do your own research. *
- Price
- 7
- Condition
- 8
- Location
- 7
- Land
- 6
- Bedrooms
- 3
- Bathrooms
- 2
The heatmap indicates the level of crime in the area. The color of the heatmap indicates the crime severity and recency.
Metrics Year-on-Year
- Average area value
- 500,707.00 £Decreased by 15.06 %
- Average area rental value
- 1,757.00 £/moDecreased by 22.97 %
- Est rental Yield
- 4.21 %Decreased by 9.27 %
- Crime Rate
- 3.00 %Unchanged by 0.00 %
Agent Activity
Acorn created the listing.
Nearby Schools
| Name | Type | Ofsted | Distance |
|---|---|---|---|
| Bessemer Grange Primary School | Community School | Good | 0.28 KM |
| Bessemer Grange Primary School & Children'S Centre | Children's Centre | 0.32 KM | |
| The Charter School North Dulwich | Academy Converter | 0.56 KM | |
| The Charter School East Dulwich | Free Schools | Good | 0.69 KM |
| Dog Kennel Hill School | Community School | Good | 0.71 KM |
Images
Nearby Streets
| Name | Average Price | Average Sqft | Distance |
|---|---|---|---|
| Red Post Hill | £ 0 | 0 | 0.00 KM |
| Deepdene Road | £ 0 | 0 | 0.00 KM |
| Edgar Kail Way | £ 375,000 | 0 | 0.00 KM |
| Ruskin Park House | £ 0 | 0 | 0.00 KM |
| Grove Vale | £ 0 | 0 | 0.00 KM |
Nearby Transport
| Name | NLC | TLC | Distance |
|---|---|---|---|
| North Dulwich | 5429 | NDL | 0.74 KM |
| East Dulwich | 5358 | EDW | 0.78 KM |
| Denmark Hill | 5421 | DMK | 0.81 KM |
| Loughborough Junction | 5082 | LGJ | 1.71 KM |
| Herne Hill | 5066 | HNH | 1.84 KM |
Nearby Listings
| Address | Price | Type | Score | Distance |
|---|---|---|---|---|
| Green Dale, London | £ 600,000 | BUY | 7 / 10 | 0.00 KM |
| Green Dale, London, SE5 | £ 425,000 | BUY | 6 / 10 | 0.00 KM |
| Dowson Close, London | £ 300,000 | BUY | 5 / 10 | 0.08 KM |
| Dylways, Camberwell, London, SE5 | £ 450,000 | BUY | Unknown | 0.10 KM |
| Domett Close, London | £ 265,000 | BUY | Unknown | 0.15 KM |
Nearby Properties
| Address | Price | Distance |
|---|---|---|
| 75 Dylways | £ 230,950 | 0.10 KM |
| 71 Dylways | £ 230,000 | 0.10 KM |
| 121 Dylways | £ 272,000 | 0.10 KM |
| 109 Dylways | £ 40,500 | 0.10 KM |
| 77 Dylways | £ 164,950 | 0.10 KM |