Benett Gardens, London
By James Alexander Estate Agents
£ 500,000
Reviews
3 out of 5 stars
James Alexander Estate Agents says ..
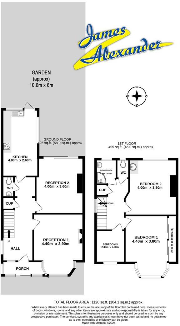
This charming semi detached thre bedroom famiy home is situated in the sought-after area of Benett Gardens, in the centre of Norbury. Benefits include two reception rooms, pretty rear garden and more, Early viewing advised. Council tax band D EPC rating TBC
Property Oracle says ..
This three-bedroom semi-detached house in Benett Gardens, Norbury, offers a convenient location in South London. Its proximity to Norbury station provides good transport links, and several well-regarded primary schools are within walking distance. The property itself is presented in fair condition; while habitable, the kitchen, bathrooms and garden could benefit from some modernisation and upkeep. The garden is present but appears overgrown and in need of landscaping. The listed price of £500,000 seems reasonable considering the location and the local market, although the need for improvements to the property should be taken into consideration. Potential buyers should factor in the cost of renovation works when considering the overall purchase price. The absence of precise square footage data in the nearby listings limits a detailed comparison of price per square foot, which would be helpful in determining precise value.
Therefore, we give this property 6 / 10. *Disclaimer: This is our option and does constitute a recommendation or financial advice. Do your own research. *
- Price
- 7
- Condition
- 6
- Location
- 7
- Land
- 4
- Bedrooms
- 3
- Bathrooms
- 1
- Sqft (est)
- 1,120.52
The heatmap indicates the level of crime in the area. The color of the heatmap indicates the crime severity and recency.
Metrics Year-on-Year
- Average area value
- 1,268,750.00 £Increased by 29.81 %
- Est sale value
- 1,776,024.20 £Increased by 115.35 %
- Average area rental value
- 2,317.00 £/moIncreased by 19.00 %
- Est letting value
- 2,241.04 £/moIncreased by 100.00 %
- Est rental Yield
- 2.19 %Decreased by 8.37 %
- Crime Rate
- 4.00 %Unchanged by 0.00 %
Agent Activity
James Alexander Estate Agents marked this listing as sold.
James Alexander Estate Agents created the listing.
Nearby Schools
| Name | Type | Ofsted | Distance |
|---|---|---|---|
| Norbury Manor Children'S Centre | Children's Centre Linked Site | 0.38 KM | |
| Norbury Manor Primary School | Community School | Good | 0.38 KM |
| Stanford Primary School | Academy Sponsor Led | 0.48 KM | |
| William Morris Primary School | Community School | Good | 0.71 KM |
| Woodmansterne School | Community School | Good | 0.77 KM |
Images
Nearby Streets
| Name | Average Price | Average Sqft | Distance |
|---|---|---|---|
| Turle Road | £ 625,000 | 0 | 0.00 KM |
| Norbury Rise | £ 0 | 0 | 0.00 KM |
| Stanford Road | £ 616,238 | 0 | 0.00 KM |
| Middle Way | £ 600,000 | 0 | 0.00 KM |
| Avenue Road | £ 634,444 | 0 | 0.00 KM |
Nearby Transport
| Name | NLC | TLC | Distance |
|---|---|---|---|
| Norbury | 5428 | NRB | 1.05 KM |
| Streatham Common | 5384 | SRC | 1.35 KM |
| Streatham | 5383 | STE | 2.00 KM |
| Mitcham Eastfields | 5069 | MTC | 2.65 KM |
| Streatham Hill | 5435 | SRH | 3.40 KM |
Nearby Listings
| Address | Price | Type | Score | Distance |
|---|---|---|---|---|
| Benett Gardens, London | £ 500,000 | BUY | 6 / 10 | 0.00 KM |
| Benett Gardens, London | £ 500,000 | BUY | Unknown | 0.07 KM |
| Isham Road, London | £ 400,000 | BUY | Unknown | 0.09 KM |
| Darcy Road, Norbury | £ 500,000 | BUY | Unknown | 0.14 KM |
| Darcy Road, London, SW16 | £ 550,000 | BUY | Unknown | 0.15 KM |
Nearby Properties
| Address | Price | Distance |
|---|---|---|
| 75 Isham Road | £ 250,000 | 0.04 KM |
| 77 Isham Road | £ 250,000 | 0.04 KM |
| 85 Isham Road | £ 465,000 | 0.04 KM |
| 87 Isham Road | £ 285,000 | 0.04 KM |
| 91 Isham Road | £ 129,000 | 0.04 KM |