Silverwood Road, Woolley Grange, Barnsley, S75 5RU
By NestledIn
£ 375,000
Reviews
3 out of 5 stars
NestledIn says ..
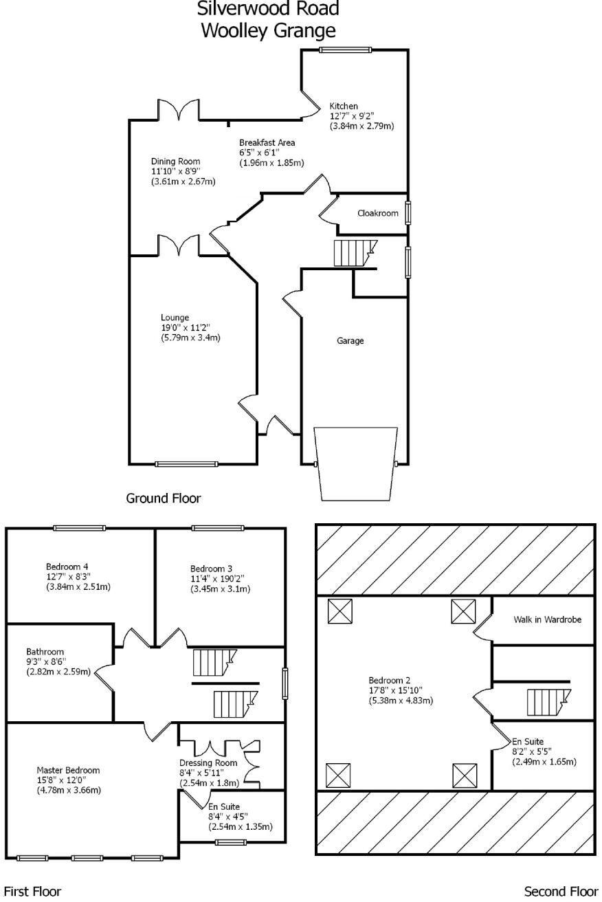
If space is at the top of your wish list, this stunning 4 bedroom home could be exactly what you’ve been searching for! Set across three spacious floors, it offers the ideal layout for modern family life – and it’s located in one of the area’s most sought-after spots.
Property Oracle says ..
Therefore, we give this property 7 / 10. *Disclaimer: This is our option and does constitute a recommendation or financial advice. Do your own research. *
- Price
- 8
- Condition
- 8
- Location
- 7
- Land
- 7
- Bedrooms
- 4
- Bathrooms
- 3
- Sqft (est)
- 1,366.29
The heatmap indicates the level of crime in the area. The color of the heatmap indicates the crime severity and recency.
Metrics Year-on-Year
- Average area value
- 266,869.00 £Decreased by 21.28 %
- Est sale value
- 452,241.99 £Increased by 8.52 %
- Average area rental value
- 1,150.00 £/moIncreased by 29.21 %
- Est letting value
- 1,366.29 £/mo
- Est rental Yield
- 5.17 %Increased by 64.13 %
- Crime Rate
- 15.00 %Unchanged by 0.00 %
from 338,998.00 £
from 416,718.45 £
from 890.00 £/mo
from 0.00 £/mo
from 3.15 %
from 15.00 %
Agent Activity
NestledIn created the listing.
Nearby Schools
| Name | Type | Ofsted | Distance |
|---|---|---|---|
| Darton Primary School | Academy Converter | Good | 1.44 KM |
| Kexborough Primary School | Academy Converter | Good | 2.12 KM |
| Darton Academy | Academy Sponsor Led | 2.17 KM | |
| Wellgate Primary School | Academy Converter | Good | 3.04 KM |
| Dove School | Other Independent Special School | Good | 3.06 KM |
Images
Nearby Streets
| Name | Average Price | Average Sqft | Distance |
|---|---|---|---|
| Top Row | £ 0 | 0 | 0.00 KM |
| Bluebell Road | £ 0 | 0 | 0.00 KM |
| Wentworth Road | £ 0 | 0 | 0.00 KM |
| Moorhouse Lane | £ 0 | 0 | 0.00 KM |
| Meadow Lane | £ 0 | 0 | 0.00 KM |
Nearby Transport
| Name | NLC | TLC | Distance |
|---|---|---|---|
| Darton | 8420 | DRT | 0.71 KM |
| Dodworth | 6781 | DOD | 5.60 KM |
| Silkstone Common | 6782 | SLK | 7.46 KM |
| Barnsley | 6774 | BNY | 7.63 KM |
| Sandal And Agbrigg | 8358 | SNA | 9.51 KM |
Nearby Listings
| Address | Price | Type | Score | Distance |
|---|---|---|---|---|
| Silverwood Road, Woolley Grange, Barnsley, S75 5RU | £ 375,000 | BUY | 7 / 10 | 0.00 KM |
| Silverwood Road, Woolley Grange, Barnsley, S75 5RU | £ 320,000 | BUY | 7 / 10 | 0.00 KM |
| Silverwood Road, Woolley Grange, Barnsley, S75 5RU | £ 400,000 | BUY | 7 / 10 | 0.00 KM |
| Silverwood Road, Woolley Grange | £ 105,000 | BUY | 5 / 10 | 0.00 KM |
| Silverwood Road, Woolley Grange, Barnsley | £ 130,000 | BUY | 6 / 10 | 0.01 KM |
Nearby Properties
| Address | Price | Distance |
|---|---|---|
| 17 Silverwood Road | £ 184,995 | 0.01 KM |
| 27 Silverwood Road | £ 184,000 | 0.01 KM |
| 1 Silverwood Road | £ 270,000 | 0.01 KM |
| 19 Silverwood Road | £ 169,995 | 0.01 KM |
| 31 Silverwood Road | £ 154,000 | 0.01 KM |