EX
School Road, Tilmanstone, Deal, CT14 0JJ
By eXp UK
£ 585,000
Reviews
3 out of 5 stars
eXp UK says ..
This Grade II listed Tilmanstone cottage blends period charm with modern upgrades, offering characterful living, generous gardens, ample parking, and a peaceful rural setting close to Deal, Sandwich, and Canterbury.
Property Oracle says ..
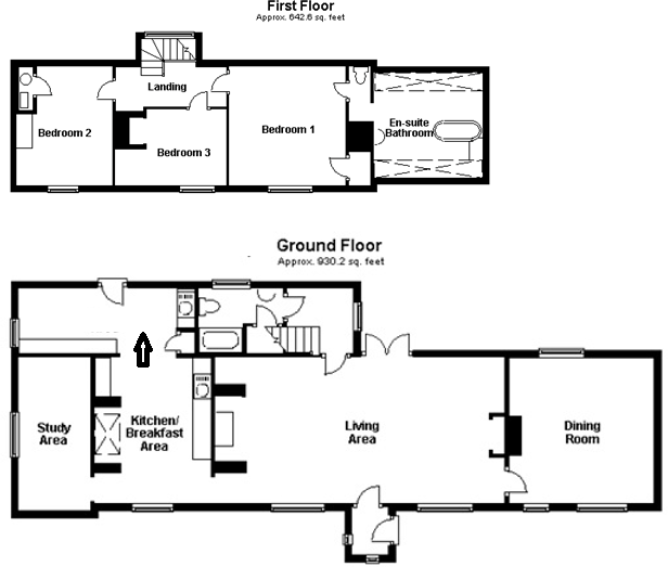
A detached period property on School Road, Tilmanstone, Deal, Kent. The property has been modernised. It has 3 bedrooms, 2 bathrooms and a large garden.
Therefore, we give this property 7 / 10. *Disclaimer: This is our option and does constitute a recommendation or financial advice. Do your own research. *
- Price
- 7
- Condition
- 8
- Location
- 7
- Land
- 8
- Bedrooms
- 3
- Bathrooms
- 2
- Sqft (est)
- 1,572.80
The heatmap indicates the level of crime in the area. The color of the heatmap indicates the crime severity and recency.
Metrics Year-on-Year
- Average area value
- 488,899.00 £Increased by 18.65 %
- Est sale value
- 652,712.00 £Increased by 4.53 %
- Average area rental value
- 1,850.00 £/moIncreased by 36.23 %
- Est letting value
- 1,572.80 £/moUnchanged by 0.00 %
- Est rental Yield
- 4.54 %Increased by 14.94 %
- Crime Rate
- 126.00 %Unchanged by 0.00 %
from 412,055.00 £
from 624,401.60 £
from 1,358.00 £/mo
from 1,572.80 £/mo
from 3.95 %
from 126.00 %
Agent Activity
eXp UK created the listing.
Nearby Schools
| Name | Type | Ofsted | Distance |
|---|---|---|---|
| Northbourne Park School | Other Independent School | 1.86 KM | |
| Northbourne Church Of England Primary School | Academy Converter | 3.42 KM | |
| Woodpecker Court | Special Post 16 Institution | 3.54 KM | |
| Eastry Church Of England Primary School | Voluntary Controlled School | Requires improvement | 3.58 KM |
| The Sunflower Children'S Centre | Children's Centre | 3.62 KM |
Images
Nearby Streets
| Name | Average Price | Average Sqft | Distance |
|---|---|---|---|
| Upper Street | £ 0 | 0 | 0.00 KM |
| St. Marys Grove | £ 0 | 0 | 0.00 KM |
| EE405 | £ 0 | 0 | 0.00 KM |
Nearby Transport
| Name | NLC | TLC | Distance |
|---|---|---|---|
| Shepherds Well | 5186 | SPH | 7.70 KM |
| Kearsney (Kent) | 5038 | KSN | 7.76 KM |
| Martin Mill | 5040 | MTM | 7.82 KM |
| Sandwich | 5026 | SDW | 8.09 KM |
| Snowdown | 5185 | SWO | 8.87 KM |
Nearby Listings
| Address | Price | Type | Score | Distance |
|---|---|---|---|---|
| School Road, Tilmanstone, Deal, CT14 0JJ | £ 585,000 | BUY | 7 / 10 | 0.00 KM |
| Upper Street, Tilmanstone, Deal, Kent, CT14 | £ 375,000 | BUY | 6 / 10 | 0.10 KM |
| St. Andrews Way, Tilmanstone, Deal, Kent, CT14 | £ 400,000 | BUY | 7 / 10 | 0.17 KM |
| St. Andrews Way, Tilmanstone, Deal, Kent, CT14 | £ 425,000 | BUY | Unknown | 0.17 KM |
| Vicarage Lane, Tilmanstone, Deal | £ 525,000 | BUY | Unknown | 0.23 KM |
Nearby Properties
| Address | Price | Distance |
|---|---|---|
| Nurses Cottage | £ 290,000 | 0.14 KM |
| War Memorial Cottages | £ 350,000 | 0.14 KM |
| Fairfields | £ 339,950 | 0.14 KM |
| Ravens House | £ 605,000 | 0.14 KM |
| Dane View | £ 460,000 | 0.40 KM |