RI
Cinnamon Lane, Cinnamon Brow Fearnhead, Warrington
By Ridgeway Residential Estate Agent
£ 295,000
Reviews
3 out of 5 stars
Ridgeway Residential Estate Agent says ..
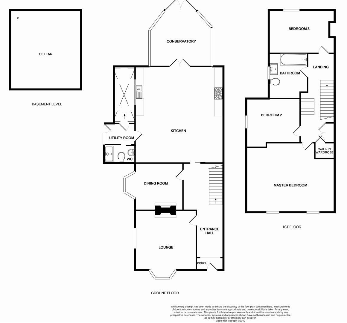
Ridgeway Residential are pleased to offer For Sale this large period semi detached property in a sought after location. Property consists of an entrance hall, large living room, dining room, breakfast kitchen, utility room, ground floor shower room, conservatory, cellar, 3 double bedrooms and bat...
Property Oracle says ..
Therefore, we give this property 6 / 10. *Disclaimer: This is our option and does constitute a recommendation or financial advice. Do your own research. *
- Price
- 7
- Condition
- 5
- Location
- 7
- Land
- 7
- Bedrooms
- 3
- Bathrooms
- 2
- Sqft (est)
- 1,004.00
The heatmap indicates the level of crime in the area. The color of the heatmap indicates the crime severity and recency.
Metrics Year-on-Year
- Average area value
- 411,667.00 £Decreased by 6.93 %
- Est sale value
- 232,928.00 £Decreased by 9.73 %
- Average area rental value
- 1,000.00 £/moDecreased by 15.04 %
- Est letting value
- 0.00 £/mo
- Est rental Yield
- 2.91 %Decreased by 8.78 %
- Crime Rate
- 13.00 %Unchanged by 0.00 %
from 442,301.00 £
from 258,028.00 £
from 1,177.00 £/mo
from 0.00 £/mo
from 3.19 %
from 13.00 %
Agent Activity
Ridgeway Residential Estate Agent created the listing.
Nearby Schools
| Name | Type | Ofsted | Distance |
|---|---|---|---|
| Padgate Academy | Academy Sponsor Led | 0.37 KM | |
| Cinnamon Brow Cofe Primary School | Voluntary Aided School | Good | 0.49 KM |
| Christ Church Cofe Primary School Padgate | Voluntary Aided School | Outstanding | 0.72 KM |
| St Bridget'S Catholic Primary School | Voluntary Aided School | Requires improvement | 0.80 KM |
| Brook Acre Community Primary School | Community School | Good | 1.27 KM |
Images
Nearby Streets
| Name | Average Price | Average Sqft | Distance |
|---|---|---|---|
| Lyndale Avenue | £ 385,000 | 0 | 0.00 KM |
| Kings Road | £ 0 | 0 | 0.00 KM |
| Orchard Street | £ 160,000 | 0 | 0.00 KM |
| Insall Road | £ 0 | 0 | 0.00 KM |
| Arran Close | £ 301,667 | 0 | 0.00 KM |
Nearby Transport
| Name | NLC | TLC | Distance |
|---|---|---|---|
| Padgate | 2387 | PDG | 0.90 KM |
| Birchwood | 2304 | BWD | 3.72 KM |
| Warrington Central | 2390 | WAC | 4.49 KM |
| Warrington Bank Quay | 2384 | WBQ | 5.70 KM |
| Newton-Le-Willows | 2257 | NLW | 7.47 KM |
Nearby Listings
| Address | Price | Type | Score | Distance |
|---|---|---|---|---|
| Cinnamon Lane, Cinnamon Brow Fearnhead, Warrington | £ 295,000 | BUY | 6 / 10 | 0.00 KM |
| Cinnamon Lane, Fearnhead, Warrington, Cheshire, WA2 | £ 200,000 | BUY | 6 / 10 | 0.08 KM |
| Cinnamon Lane, Fearnhead, WA2 | £ 300,000 | BUY | 7 / 10 | 0.10 KM |
| Lyndale Avenue, Fearnhead, WA2 | £ 375,000 | BUY | 7 / 10 | 0.10 KM |
| Bromley Close, Fearnhead, WA2 0AS | £ 219,950 | BUY | Unknown | 0.15 KM |
Nearby Properties
| Address | Price | Distance |
|---|---|---|
| 40 Cinnamon Lane | £ 250,000 | 0.01 KM |
| 34 Cinnamon Lane | £ 177,500 | 0.01 KM |
| 26a Cinnamon Lane | £ 163,500 | 0.01 KM |
| 27 Cinnamon Lane | £ 245,000 | 0.08 KM |
| 5 Cinnamon Lane | £ 383,000 | 0.08 KM |