Northwood Street, Birmingham, B3 1
By Centrick New Homes
£ 305,000
Reviews
3 out of 5 stars
Centrick New Homes says ..
Welcome to The Pressworks a stunning development of 48 apartments located on Northwood Street just a 3 minute walk from St Pauls Square
Property Oracle says ..
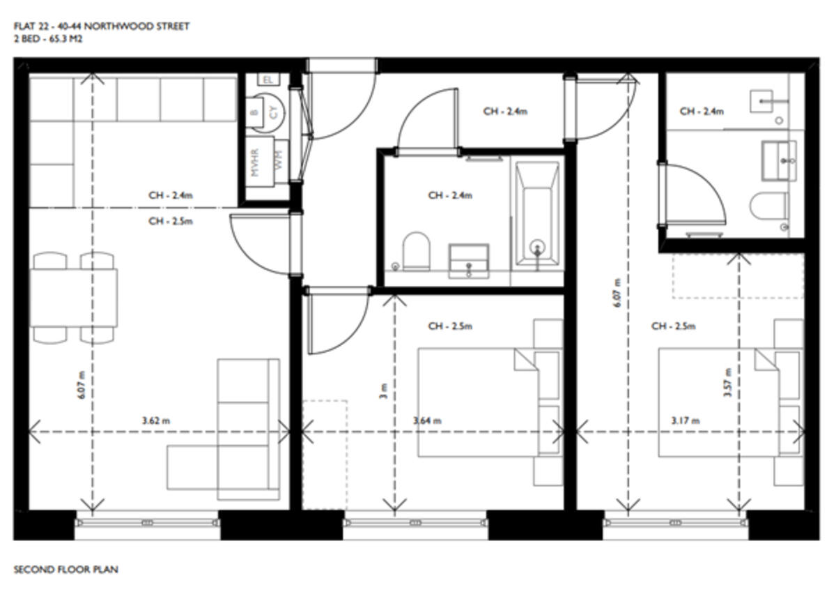
This two-bedroom apartment located on Northwood Street in Birmingham’s Jewellery Quarter offers a modern and stylish living space. The property is part of a new development, The Pressworks, suggesting high-quality construction and finishes. The provided photographs showcase a contemporary interior with a well-appointed bathroom and kitchen. The location is a significant advantage. The Jewellery Quarter is a sought-after area, balancing historical charm with modern amenities and convenient transport links. Proximity to good schools adds to its family-friendly appeal. However, buyers should be aware that the property is an apartment, so the lack of outdoor space may be a consideration for some. The list price seems fair relative to other recently sold properties in the area; however, the limited plot size may slightly overinflate the price per square foot compared to other properties in the same development with more external space. Overall, this property presents a compelling opportunity for buyers seeking modern accommodation in a desirable and well-connected location.
Therefore, we give this property 6 / 10. *Disclaimer: This is our option and does constitute a recommendation or financial advice. Do your own research. *
- Price
- 7
- Condition
- 9
- Location
- 8
- Land
- 1
- Bedrooms
- 2
- Bathrooms
- 2
- Sqft (est)
- 702.88
The heatmap indicates the level of crime in the area. The color of the heatmap indicates the crime severity and recency.
Metrics Year-on-Year
- Average area value
- 223,188.00 £Decreased by 13.36 %
- Est sale value
- 220,704.32 £Decreased by 2.48 %
- Average area rental value
- 1,283.00 £/moIncreased by 2.15 %
- Est letting value
- 702.88 £/moUnchanged by 0.00 %
- Est rental Yield
- 6.90 %Increased by 17.95 %
- Crime Rate
- 3.00 %Unchanged by 0.00 %
Agent Activity
Centrick New Homes created the listing.
Nearby Schools
| Name | Type | Ofsted | Distance |
|---|---|---|---|
| Arc Oakbridge School | Other Independent Special School | Good | 0.35 KM |
| Titan St Georges Academy | Free Schools Alternative Provision | Good | 0.40 KM |
| St George'S Church Of England Academy, Newtown | Academy Sponsor Led | Good | 0.49 KM |
| University College Birmingham | Higher Education Institutions | Good | 0.58 KM |
| Brearley Nursery School | Local Authority Nursery School | Outstanding | 0.80 KM |
Images
Nearby Streets
| Name | Average Price | Average Sqft | Distance |
|---|---|---|---|
| Great Hampton Row | £ 0 | 0 | 0.00 KM |
| Harford Street | £ 0 | 0 | 0.00 KM |
| Queensway | £ 0 | 0 | 0.00 KM |
| Constitution Hill | £ 0 | 0 | 0.00 KM |
| Holland Street | £ 0 | 0 | 0.00 KM |
Nearby Transport
| Name | NLC | TLC | Distance |
|---|---|---|---|
| Jewellery Quarter | 1097 | JEQ | 0.83 KM |
| Birmingham Snow Hill | 1006 | BSW | 0.88 KM |
| Birmingham New Street | 1127 | BHM | 1.22 KM |
| Birmingham Moor Street | 4515 | BMO | 1.75 KM |
| Five Ways | 4503 | FWY | 1.93 KM |
Nearby Listings
| Address | Price | Type | Score | Distance |
|---|---|---|---|---|
| Bradford Street, Birmingham | £ 230,000 | BUY | 6 / 10 | 0.00 KM |
| The Pressworks, 34-44 Northwood Street, Birmingham, B3 | £ 225,000 | BUY | 6 / 10 | 0.04 KM |
| Northwood Street, Birmingham, B3 | £ 295,000 | BUY | 6 / 10 | 0.04 KM |
| Northwood Street, Birmingham, B3 | £ 295,000 | BUY | 6 / 10 | 0.04 KM |
| The Pressworks, Northwood Street, Birmingham, B3 | £ 295,000 | BUY | 5 / 10 | 0.05 KM |
Nearby Properties
| Address | Price | Distance |
|---|---|---|
| 29g Northwood Street | £ 150,000 | 0.04 KM |
| 29f Northwood Street | £ 238,300 | 0.04 KM |
| 27e Northwood Street | £ 155,000 | 0.04 KM |
| 27d Northwood Street | £ 149,500 | 0.04 KM |
| 31a Northwood Street | £ 140,000 | 0.04 KM |