Mapps Estates says ..
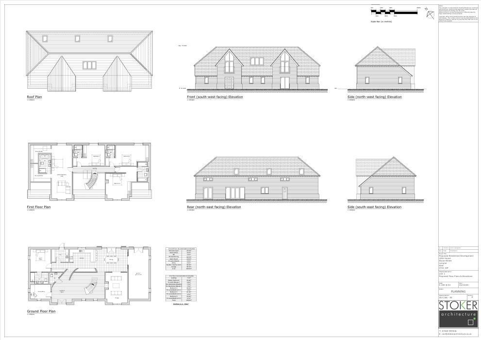
***LAND WITH PLANNING PERMISSION GRANTED FOR THREE EXECUTIVE HOMES *** Mapps Estates are delighted to bring to the market this site in the heart of the semi-rural village of Lympne with planning permission granted for the erection of three five bedroom detached barn style executive homes whic...
Property Oracle says ..
This is a plot of land for sale in Stone Street, Lympne. The location is near Lympne Church Of England Primary School which has a good Ofsted rating. Westenhanger train station is also within a reasonable distance. The average property price in the area is £396,577, with an average price per square foot of £462. Nearby properties are listed between £230,000 and £535,000, while other plots are listed at £900,000 and £1,000,000. Based on the images, this plot of land offers the potential for a modern development.
Therefore, we give this property 6 / 10. *Disclaimer: This is our option and does constitute a recommendation or financial advice. Do your own research. *
- Price
- 5
- Condition
- 0
- Location
- 7
- Land
- 7
- Bedrooms
- 0
- Bathrooms
- 0
The heatmap indicates the level of crime in the area. The color of the heatmap indicates the crime severity and recency.
Metrics Year-on-Year
- Average area value
- 419,722.00 £Increased by 22.20 %
- Average area rental value
- 1,150.00 £/moDecreased by 37.84 %
- Est rental Yield
- 3.29 %Decreased by 49.07 %
- Crime Rate
- 5.00 %Unchanged by 0.00 %
Agent Activity
Mapps Estates created the listing.
Nearby Schools
| Name | Type | Ofsted | Distance |
|---|---|---|---|
| Lympne Church Of England Primary School | Voluntary Controlled School | Good | 0.29 KM |
| Palmarsh Primary School | Community School | Good | 2.88 KM |
| Brockhill Park Performing Arts College | Academy Converter | Good | 4.04 KM |
| Sellindge Primary School | Community School | Outstanding | 4.09 KM |
| St Augustine'S Catholic Primary School | Voluntary Aided School | Good | 4.71 KM |
Images
Nearby Streets
| Name | Average Price | Average Sqft | Distance |
|---|---|---|---|
| (Stone Street) | £ 0 | 0 | 0.00 KM |
| Ashford Road | £ 0 | 0 | 0.00 KM |
| West Hythe Road | £ 0 | 0 | 0.00 KM |
Nearby Transport
| Name | NLC | TLC | Distance |
|---|---|---|---|
| Westenhanger | 5030 | WHA | 2.04 KM |
| Sandling | 5025 | SDG | 4.26 KM |
Nearby Listings
| Address | Price | Type | Score | Distance |
|---|---|---|---|---|
| Stone Street, Lympne | £ 975,000 | BUY | 6 / 10 | 0.00 KM |
| Stone Street, Lympne, Hythe, Kent | £ 400,000 | BUY | Unknown | 0.03 KM |
| Folks Wood Way, Hythe, CT21 | £ 535,000 | BUY | 6 / 10 | 0.12 KM |
| Folks Wood Way, Lympne, CT21 | £ 380,000 | BUY | 6 / 10 | 0.14 KM |
| The Little House, Stone Street, Hythe | £ 899,995 | BUY | 6 / 10 | 0.16 KM |
Nearby Properties
| Address | Price | Distance |
|---|---|---|
| West View | £ 300,000 | 0.04 KM |
| Greenbanks | £ 243,000 | 0.04 KM |
| Merricourt | £ 248,000 | 0.04 KM |
| Dormers | £ 183,000 | 0.04 KM |
| Montreux | £ 282,000 | 0.04 KM |