Stags says ..
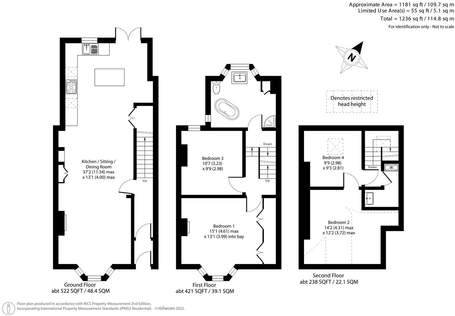
Open day 22nd November 9am to 12pm - By appointments only. A charming and well-presented four-bedroom townhouse in the heart of St Leonard’s, within easy reach of the city centre, excellent schools and the River Exe.
Property Oracle says ..
This is a well-presented, detached property in a sought-after location in Exeter. The property has been modernised and is in good condition. It benefits from having a garden/patio area and is located close to schools and amenities. The listing price appears reasonable given the location, condition, and size of the property.
Therefore, we give this property 7 / 10. *Disclaimer: This is our option and does constitute a recommendation or financial advice. Do your own research. *
- Price
- 7
- Condition
- 8
- Location
- 7
- Land
- 6
- Bedrooms
- 4
- Bathrooms
- 1
- Sqft (est)
- 1,235.70
The heatmap indicates the level of crime in the area. The color of the heatmap indicates the crime severity and recency.
Metrics Year-on-Year
- Average area value
- 521,250.00 £Increased by 29.23 %
- Est sale value
- 748,834.20 £Increased by 68.33 %
- Average area rental value
- 1,512.00 £/moIncreased by 50.45 %
- Est letting value
- 1,235.70 £/mo
- Est rental Yield
- 3.48 %Increased by 16.39 %
- Crime Rate
- 1.00 %Unchanged by 0.00 %
Agent Activity
Stags created the listing.
Nearby Schools
| Name | Type | Ofsted | Distance |
|---|---|---|---|
| Exeter Royal Academy For Deaf Education | Special Post 16 Institution | Requires improvement | 0.15 KM |
| St Leonard'S (Cofe) Primary School (Vc) | Academy Converter | 0.25 KM | |
| The Maynard School | Other Independent School | 0.65 KM | |
| Exeter Central (Flying Start Children'S Centre) | Children's Centre | 0.74 KM | |
| Atkinson Secure Children'S Home | Secure Units | 0.75 KM |
Images
Nearby Streets
| Name | Average Price | Average Sqft | Distance |
|---|---|---|---|
| Haden Walk | £ 0 | 0 | 0.00 KM |
| Pitts Court | £ 0 | 0 | 0.00 KM |
| Dunley Mews | £ 0 | 0 | 0.00 KM |
| Hippisley Road | £ 0 | 0 | 0.00 KM |
| Winsor Avenue | £ 250,000 | 0 | 0.00 KM |
Nearby Transport
| Name | NLC | TLC | Distance |
|---|---|---|---|
| Exeter Central | 5755 | EXC | 1.47 KM |
| St James Park (Exeter) | 5751 | SJP | 1.53 KM |
| Exeter St Thomas | 3414 | EXT | 1.68 KM |
| Exeter St David'S | 3410 | EXD | 2.54 KM |
| Polsloe Bridge | 3422 | POL | 2.85 KM |
Nearby Listings
| Address | Price | Type | Score | Distance |
|---|---|---|---|---|
| Barnardo Road, Exeter | £ 525,000 | BUY | 7 / 10 | 0.00 KM |
| St Leonards, Exeter | £ 495,000 | BUY | 5 / 10 | 0.04 KM |
| Cedars Road, St Leonards, Exeter, EX2 | £ 375,000 | BUY | Unknown | 0.07 KM |
| Barnardo Road, Exeter | £ 550,000 | BUY | 7 / 10 | 0.08 KM |
| Weirfield Road, Exeter , EX2 | £ 399,950 | BUY | 7 / 10 | 0.13 KM |
Nearby Properties
| Address | Price | Distance |
|---|---|---|
| 13 Barnardo Road | £ 250,000 | 0.04 KM |
| 29 Barnardo Road | £ 575,000 | 0.04 KM |
| 11 Barnardo Road | £ 285,000 | 0.04 KM |
| 47 Barnardo Road | £ 450,000 | 0.04 KM |
| 41 Barnardo Road | £ 595,000 | 0.04 KM |