Julie Philpot says ..
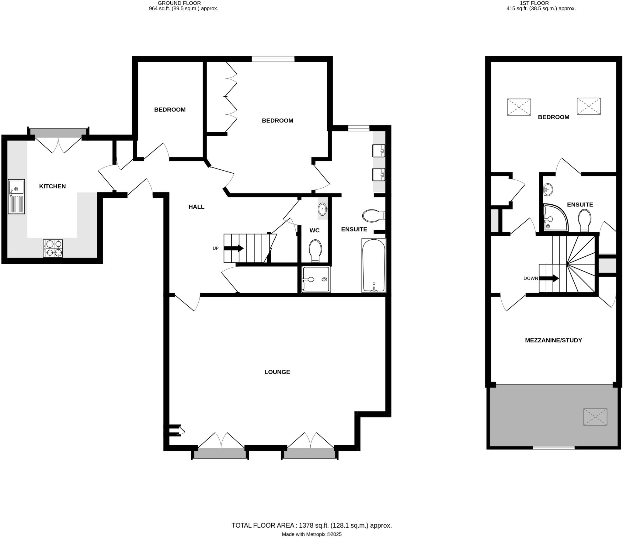
A unique, immaculately presented and extremely spacious three bedroomed duplex apartment which must be viewed in order to be appreciated. This stunning property benefits from a light filled lounge with 'Juliet' balconies and a mezzanine floor above to provide a further living area or home office ...
Property Oracle says ..
Kenilworth is a popular town in Warwickshire, known for its attractive location and good amenities. The property is conveniently located near several schools, including Park Hill Junior School and St Nicholas Cofe Primary School, both rated ‘Good’ by Ofsted. Train connections to major cities are also within reasonable distance. This contributes to a positive location score. Based on the images, the property appears to be in excellent condition. It is modern, well-maintained, and tastefully decorated. There is no visible evidence of wear and tear or the need for repair or renovation. The kitchen and bathrooms are contemporary and updated. The property includes a balcony, which provides some outdoor space. While not a large garden, it still offers a pleasant area for relaxation and enjoyment. Considering the property’s size (1,350 sqft), condition, location, and the relatively small plot size, the list price of £385,000 appears to be slightly above the average price per square foot for the area (£402). However, the superior condition of the property and its modern amenities may justify this price difference. Nearby comparable properties on Fennyland Lane range from £210,000 to £695,000, suggesting a degree of price variation in the area. The lack of sqft data for these properties makes a precise comparison difficult.
Therefore, we give this property 7 / 10. *Disclaimer: This is our option and does constitute a recommendation or financial advice. Do your own research. *
- Price
- 8
- Condition
- 10
- Location
- 9
- Land
- 3
- Bedrooms
- 3
- Bathrooms
- 2
- Sqft (est)
- 1,350.00
- Lot (est)
- 1,378.00
The heatmap indicates the level of crime in the area. The color of the heatmap indicates the crime severity and recency.
Metrics Year-on-Year
- Average area value
- 450,680.00 £Increased by 2.66 %
- Est sale value
- 635,850.00 £Increased by 11.61 %
- Average area rental value
- 1,290.00 £/moIncreased by 8.77 %
- Est letting value
- 1,350.00 £/moUnchanged by 0.00 %
- Est rental Yield
- 3.43 %Increased by 5.86 %
- Crime Rate
- 2.00 %Unchanged by 0.00 %
Agent Activity
Julie Philpot created the listing.
Nearby Schools
| Name | Type | Ofsted | Distance |
|---|---|---|---|
| Crackley Hall School | Other Independent School | 0.15 KM | |
| Park Hill Junior School | Community School | Good | 1.02 KM |
| Kenilworth School And Sixth Form | Academy Converter | 1.29 KM | |
| St Nicholas Cofe Primary School | Voluntary Controlled School | Good | 1.39 KM |
| Thorns Community Infant School | Community School | Good | 1.59 KM |
Images
Nearby Streets
| Name | Average Price | Average Sqft | Distance |
|---|---|---|---|
| Arbourfields Close | £ 0 | 0 | 0.00 KM |
| Stoneleigh Avenue | £ 0 | 0 | 0.00 KM |
| Glendale Avenue | £ 0 | 0 | 0.00 KM |
| Field Close | £ 0 | 0 | 0.00 KM |
| Dalebrook Place | £ 0 | 0 | 0.00 KM |
Nearby Transport
| Name | NLC | TLC | Distance |
|---|---|---|---|
| Kenilworth | 7985 | KNW | 1.59 KM |
| Canley | 1129 | CNL | 5.29 KM |
| Tile Hill | 1035 | THL | 5.53 KM |
| Coventry | 1030 | COV | 7.73 KM |
| Warwick | 4600 | WRW | 7.87 KM |
Nearby Listings
| Address | Price | Type | Score | Distance |
|---|---|---|---|---|
| Fennyland Lane, Kenilworth | £ 385,000 | BUY | 7 / 10 | 0.00 KM |
| Fennyland Lane, Kenilworth, Warwickshire | £ 269,950 | BUY | 5 / 10 | 0.01 KM |
| Fennyland Lane, Kenilworth, Warwickshire | £ 240,000 | BUY | 6 / 10 | 0.01 KM |
| Fennyland Lane, Kenilworth, Warwickshire, CV8 | £ 210,000 | BUY | Unknown | 0.03 KM |
| Fennyland Lane, Kenilworth, Warwickshire, CV8 | £ 260,000 | BUY | Unknown | 0.03 KM |
Nearby Properties
| Address | Price | Distance |
|---|---|---|
| 20 Fennyland Lane | £ 305,000 | 0.00 KM |
| 38 Fennyland Lane | £ 332,000 | 0.00 KM |
| 40 Fennyland Lane | £ 315,000 | 0.00 KM |
| 12 Fennyland Lane | £ 430,000 | 0.00 KM |
| 18 Fennyland Lane | £ 299,950 | 0.00 KM |