ST
Windmill Park, Clacton on Sea
By Stoneridge Estates
£ 325,000
Reviews
3 out of 5 stars
Stoneridge Estates says ..
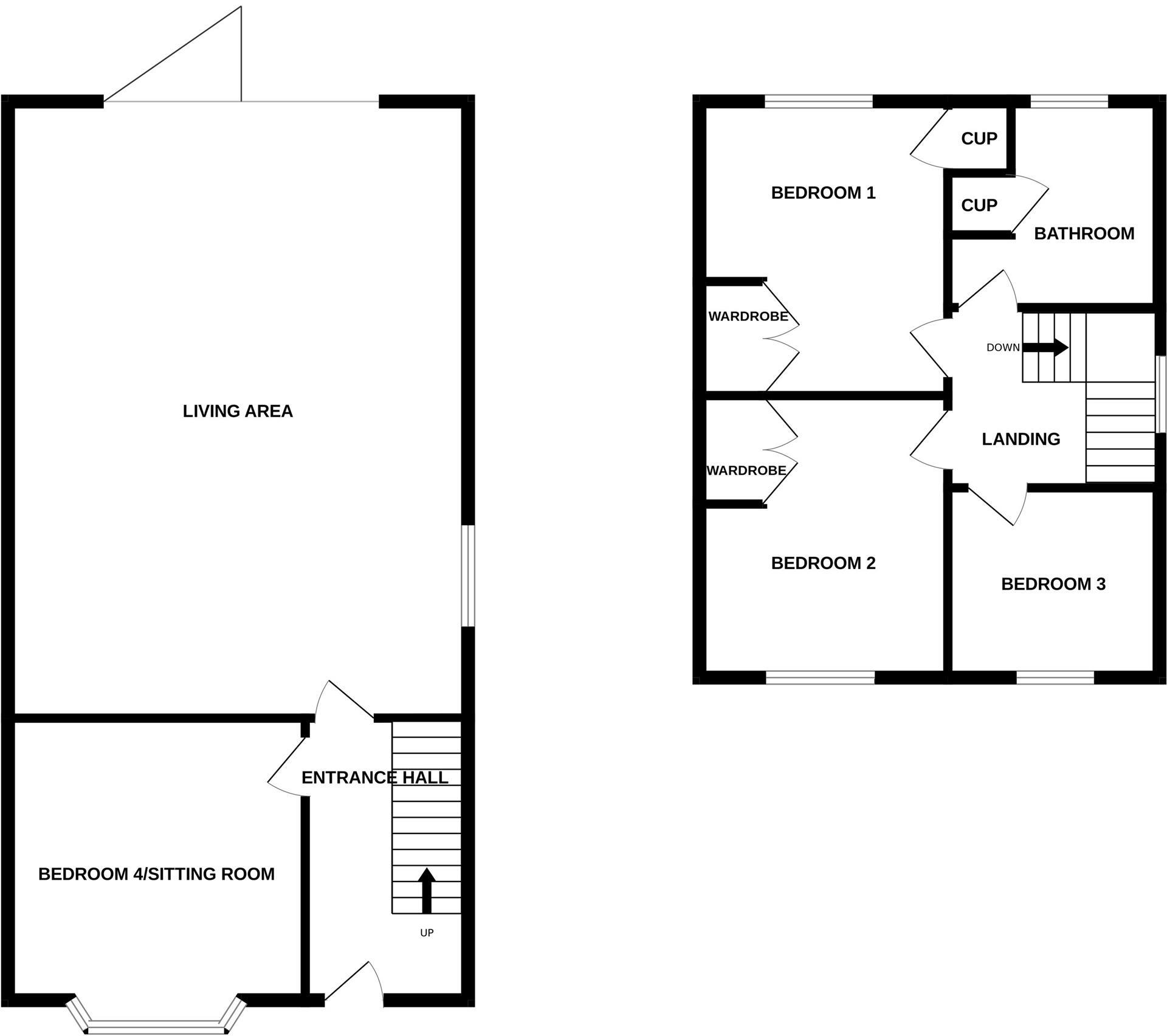
Looking for the dream family home? Look no further than this impressive and tastefully extended three/four bedroom property which in the valuers opinion, has been finished to an exceptionally high standard throughout. The property boasts a 26'2 x 17'3 living area with bi-folding doors to r (cont.)
Property Oracle says ..
Therefore, we give this property 7 / 10. *Disclaimer: This is our option and does constitute a recommendation or financial advice. Do your own research. *
- Price
- 7
- Condition
- 9
- Location
- 8
- Land
- 7
- Bedrooms
- 4
- Bathrooms
- 1
- Sqft (est)
- 883.00
The heatmap indicates the level of crime in the area. The color of the heatmap indicates the crime severity and recency.
Metrics Year-on-Year
- Average area value
- 384,737.00 £Decreased by 1.20 %
- Est sale value
- 359,381.00 £Increased by 15.95 %
- Average area rental value
- 1,963.00 £/moIncreased by 39.81 %
- Est letting value
- 1,766.00 £/moIncreased by 100.00 %
- Est rental Yield
- 6.12 %Increased by 41.34 %
- Crime Rate
- 5.00 %Unchanged by 0.00 %
from 389,410.00 £
from 309,933.00 £
from 1,404.00 £/mo
from 883.00 £/mo
from 4.33 %
from 5.00 %
Agent Activity
Stoneridge Estates created the listing.
Nearby Schools
| Name | Type | Ofsted | Distance |
|---|---|---|---|
| Great Clacton Church Of England (Voluntary Aided) Junior School | Academy Sponsor Led | Good | 0.65 KM |
| Ten2 St. James' Family Hub Delivery Site | Children's Centre Linked Site | 0.72 KM | |
| Burrsville Infant Academy | Academy Sponsor Led | Good | 0.76 KM |
| Clacton County High School | Academy Converter | Good | 0.80 KM |
| White Hall Academy | Academy Sponsor Led | Good | 1.10 KM |
Images
Nearby Streets
| Name | Average Price | Average Sqft | Distance |
|---|---|---|---|
| Church View | £ 0 | 0 | 0.00 KM |
| Olivers Road | £ 0 | 0 | 0.00 KM |
| Hill Road | £ 0 | 0 | 0.00 KM |
| Saint Anns Road | £ 0 | 0 | 0.00 KM |
| Ramsden Close | £ 0 | 0 | 0.00 KM |
Nearby Transport
| Name | NLC | TLC | Distance |
|---|---|---|---|
| Clacton-On-Sea | 6850 | CLT | 0.97 KM |
| Thorpe-Le-Soken | 6857 | TLS | 5.07 KM |
| Weeley | 6859 | WEE | 7.24 KM |
| Kirby Cross | 6862 | KBX | 7.80 KM |
Nearby Listings
| Address | Price | Type | Score | Distance |
|---|---|---|---|---|
| Windmill Park, Clacton on Sea | £ 325,000 | BUY | 7 / 10 | 0.00 KM |
| Windmill Park, Clacton-on-Sea, Essex, CO15 | £ 200,000 | BUY | 7 / 10 | 0.00 KM |
| Windmill Park, Clacton-On-Sea | £ 250,000 | BUY | 7 / 10 | 0.03 KM |
| Windmill Park, Clacton-On-Sea | £ 250,000 | BUY | 7 / 10 | 0.08 KM |
| Windmill Park, Clacton-on-Sea, Essex, CO15 | £ 200,000 | BUY | 6 / 10 | 0.11 KM |
Nearby Properties
| Address | Price | Distance |
|---|---|---|
| 21 Windmill Park | £ 225,000 | 0.00 KM |
| 42 Windmill Park | £ 64,000 | 0.00 KM |
| 23 Windmill Park | £ 133,500 | 0.00 KM |
| 7 Windmill Park | £ 76,000 | 0.00 KM |
| 3 Windmill Park | £ 143,500 | 0.00 KM |