Matthew James says ..
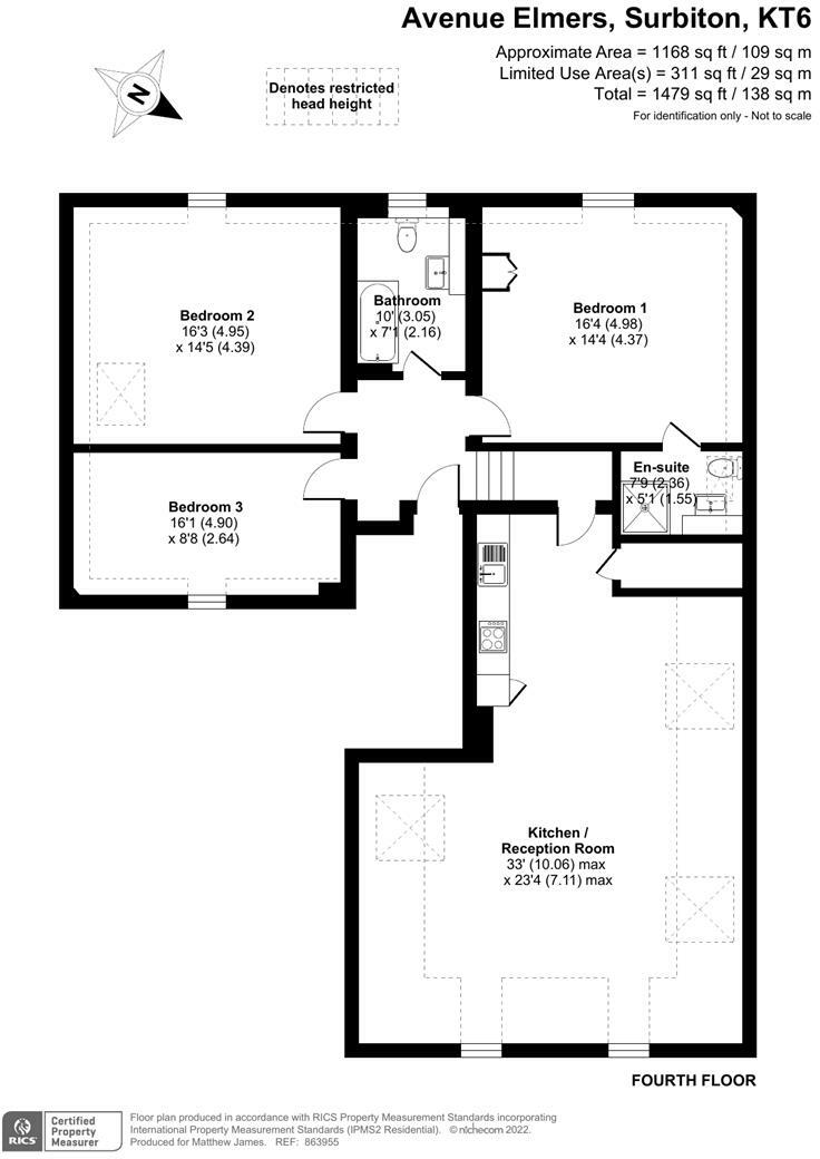
A very spacious three double bedroom, two bathroom penthouse style apartment set on the top floor of a grand detached Victorian house with parking. Located within a short walk of Surbiton mainline station and high street. The many benefits include; An impressive expansive open plan living room wi...
Property Oracle says ..
This three-bedroom, two-bathroom apartment in Surbiton, Kingston Upon Thames, is located in a highly sought-after area with excellent transport links via Surbiton Station. The property, which appears to be a top-floor apartment within a renovated Victorian building, is presented to a high standard. The interior shows a modern, contemporary design with a well-equipped kitchen and sleek bathrooms. The open-plan living space benefits from ample natural light thanks to strategically placed skylights. The spacious bedrooms offer ample living space. However, the lack of access to outdoor space is important to consider. The property’s location near good schools and Surbiton town center further adds to its appeal. While the price of £625,000 is in line with local market value for similar properties, a definitive statement on its value cannot be made without sqft and plot size data for accurate price per sqft analysis. Overall, the property presents a contemporary, well-maintained living space in a convenient and desirable location.
Therefore, we give this property 6 / 10. *Disclaimer: This is our option and does constitute a recommendation or financial advice. Do your own research. *
- Price
- 7
- Condition
- 9
- Location
- 8
- Land
- 1
- Bedrooms
- 3
- Bathrooms
- 2
- Sqft (est)
- 1,479.00
The heatmap indicates the level of crime in the area. The color of the heatmap indicates the crime severity and recency.
Metrics Year-on-Year
- Average area value
- 401,729.00 £Decreased by 10.51 %
- Est sale value
- 763,164.00 £Increased by 7.28 %
- Average area rental value
- 1,630.00 £/moDecreased by 14.30 %
- Est letting value
- 2,958.00 £/moUnchanged by 0.00 %
- Est rental Yield
- 4.87 %Decreased by 4.13 %
- Crime Rate
- 2.00 %Unchanged by 0.00 %
Agent Activity
Matthew James created the listing.
Nearby Schools
| Name | Type | Ofsted | Distance |
|---|---|---|---|
| The Hollyfield School And Sixth Form Centre | Academy Converter | Good | 0.16 KM |
| Richmond And Hillcroft Adult And Community College (Rhacc) | Further Education | Good | 0.46 KM |
| Lime Tree Primary School | Foundation School | Requires improvement | 0.48 KM |
| Surbiton High School | Other Independent School | 0.63 KM | |
| Maple Infants' School | Community School | Good | 0.71 KM |
Images
Nearby Streets
| Name | Average Price | Average Sqft | Distance |
|---|---|---|---|
| Hythe Road | £ 150,000 | 0 | 0.00 KM |
| Glass Place | £ 0 | 0 | 0.00 KM |
| Crummocks Chase | £ 332,500 | 0 | 0.00 KM |
| Bellevue Road | £ 0 | 0 | 0.00 KM |
| Spring Cottages | £ 0 | 0 | 0.00 KM |
Nearby Transport
| Name | NLC | TLC | Distance |
|---|---|---|---|
| Surbiton | 5571 | SUR | 0.57 KM |
| Kingston | 5565 | KNG | 1.87 KM |
| Berrylands | 5581 | BRS | 2.19 KM |
| Hampton Wick | 5589 | HMW | 2.47 KM |
| Norbiton | 5568 | NBT | 2.56 KM |
Nearby Listings
| Address | Price | Type | Score | Distance |
|---|---|---|---|---|
| Avenue Elmers, Surbiton | £ 625,000 | BUY | 6 / 10 | 0.00 KM |
| Avenue Elmers, Surbiton | £ 475,000 | BUY | 5 / 10 | 0.04 KM |
| Avenue Elmers, Surbiton, KT6 | £ 599,950 | BUY | Unknown | 0.04 KM |
| Avenue Elmers, Surbiton | £ 475,000 | BUY | 7 / 10 | 0.05 KM |
| Avenue Elmers, Surbiton, KT6 | £ 500,000 | BUY | 7 / 10 | 0.05 KM |
Nearby Properties
| Address | Price | Distance |
|---|---|---|
| 23 Selsdon Close | £ 410,000 | 0.16 KM |
| 39 Selsdon Close | £ 735,000 | 0.16 KM |
| 3 Selsdon Close | £ 600,000 | 0.16 KM |
| 51 Selsdon Close | £ 685,000 | 0.16 KM |
| 45 Selsdon Close | £ 417,500 | 0.16 KM |